1417x
001782
2022-12-22

Vigas virtuais SJI

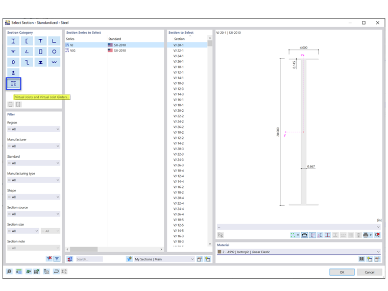
O Steel Joist Institute (SJI) desenvolveu anteriormente tabelas de vigas virtuais para estimar as propriedades de secção para vigas de aço da alma aberta. Estas secções de viga virtual são caracterizadas como vigas equivalentes de banzo largo que se aproximam muito da área da corda da viga, do momento de inércia efetivo e do peso. Estão também disponíveis vigas virtuais nas bases de dados de secções do RFEM e do RSTAB.

Tanto a tabela Virtual Joist (VJ) como a tabela Virtual Joist Girder (VJG) estão localizadas na sua própria categoria na secção Padronizada (Figura 1).

As secções do Virtual Joist podem ser utilizadas como qualquer outro membro no RFEM e no RSTAB. Depois que uma análise é executada, os resultados das barras, como forças internas, tensões, deflexões etc., podem ser visualizados ao longo do comprimento da barra.

Atualmente, não é possível otimizar as secções com base nas tabelas de dimensionamento de trave SJI. O processo de otimização será adicionado no futuro.


Autor

A Eng.ª Cisca é responsável pelas formações para clientes, apoio técnico e desenvolvimento de programas para o mercado norte-americano.



;