1417x
001782
2022-12-22

SJI Virtual Joists

The Steel Joist Institute (SJI) previously developed Virtual Joist tables to estimate the section properties for Open Web Steel Joists. These Virtual Joist sections are characterized as equivalent wide-flange beams which closely approximate the joist chord area, effective moment of inertia, and weight. Virtual Joists are also available in the RFEM and RSTAB cross-section database.

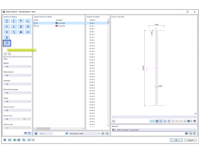
Both the Virtual Joist (VJ) and Virtual Joist Girder (VJG) tables are located in their own category under the Standardized section (Image 1).

The Virtual Joist sections can be utilized like any other member in RFEM and RSTAB. After an analysis is run, member results such as the internal forces, stresses, deflections, and so on, can be viewed along the member length.

The ability to optimize the sections based on SJI joist design tables is currently not possible. The optimization process will be added in the future.


Author

Cisca is responsible for customer training, technical support, and continued program development for the North American market.



;