1417x
001782
22.12.2022

Virtuální ocelové vazníky SJI

Americký institut pro ocelové vazníky (Steel Joist Institute - SJI) nedávno vytvořil tabulky pro virtuální ocelové vazníky, které umožňují stanovovat průřezové charakteristiky ocelových vazníků (Open Web Steel Joist). Tyto virtuální vazníky jsou charakterizovány jako ekvivalentní nosníky s širokou pásnicí, které dobře aproximují oblast pásu vazníku, účinný moment setrvačnosti a tíhu. Virtuální ocelové vazníky jsou k dispozici také v databázi průřezů RFEM a RSTAB.

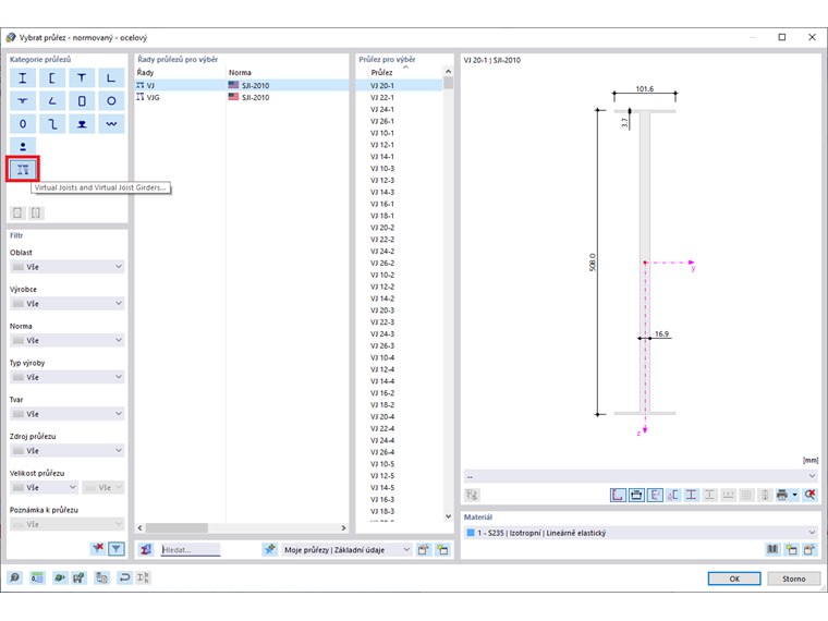
Tabulky pro virtuální ocelové nosníky (Virtual Joist (VJ) a Virtual Joist Girder (VJG)) jsou k dispozici ve své vlastní kategorii v sekci Normované (obrázek 1).

Průřezy virtuálních ocelových vazníků mohou být použity jako každý jiný prut v RFEMu a RSTABu. Po výpočtu je možné po celé délce prutu zobrazit výsledky jako vnitřní síly, napětí, průhyby atd.

Optimalizace průřezů na základě návrhových tabulek nosníků SJI není v současné době možná. V budoucnu bude proces optimalizace přidán.


Autor

Cisca je zodpovědná za školení zákazníků, technickou podporu a další vývoj programů pro severoamerický trh.



;