12811x
001402
2017-02-13

Verifica allo stato limite ultimo delle saldature delle rotaie delle travi di gru secondo EN 1993-6

Se le travi di corsia della gru sono progettate con rotaie in acciaio piatto, la saldatura di queste rotaie è sempre un dettaglio per il progetto. Generalmente è possibile selezionare tra saldature d'angolo continue e intermittenti come fissaggio della rotaia. Questo articolo fornisce una panoramica dei processi di verifica e delle loro caratteristiche specifiche, specialmente quando si utilizza la EN 1993-6.

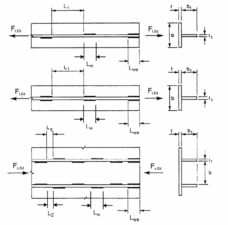
Opzioni di disposizione delle saldature d'angolo della rotaia

Esistono due varianti di collegamenti con saldature d'angolo a tratti. Questi sono mostrati nell'immagine seguente da [2].

Le sezioni di saldatura possono essere disposte su lati opposti o sfalsate. La disposizione sfalsata è svantaggiosa per la progettazione poiché solo una saldatura può essere utilizzata per il trasferimento dei carichi orizzontali. La terza opzione che non è mostrata nell'immagine sopra è, naturalmente, una saldatura a cordone continuo lungo l'intera lunghezza del binario.

Lunghezza efficace sotto carico

La determinazione delle tensioni di saldatura corrispondenti richiede il calcolo delle lunghezze efficaci sotto carico. EN 1993‑6 distingue tra tre opzioni e fornisce le formule corrispondenti per il calcolo di leff nella Tabella 5.1.

In questo caso, leff si riferisce alla parte inferiore dell'ala superiore. Tuttavia, per la verifica della saldatura è determinante la superficie superiore dell'ala superiore. Pertanto, leff viene ridotto di doppio spessore della flangia tf.

Verifica stato limite ultimo

Le sollecitazioni della saldatura dei binari vengono calcolate secondo il Metodo Direzionale specificato in [2]. In questo caso, le tensioni si riferiscono alla superficie bisettrice della saldatura d'angolo. Secondo [2], (NA) Sezione 4.5.2, gli spessori strutturali minimi devono essere rispettati per la saldatura. La norma richiede una saldatura di uno spessore minimo di almeno 3 mm o l'applicazione della seguente formula:

Il carico eccentricamente distribuito della ruota pari a 1/4 della larghezza della testa della rotaia non viene considerato nello stato limite ultimo secondo EN 1993-6. Pertanto, il progetto a causa del carico delle ruote viene sempre eseguito.

Caso 1: Saldatura continua delle rotaie

Per le saldature a filetto intermittenti, a tratto, delle rotaie, è necessario verificare se la lunghezza della saldatura lw è inferiore alla lunghezza caricata calcolata leff. Generalmente, il minimo tra entrambi i valori è determinante per la progettazione.

Caso 2: Saldatura a tratto della rotaia su lati opposti

Caso 3: Saldatura a tratto sfalsata della rotaia

Poiché il carico orizzontale viene applicato solo a una sezione di saldatura nel caso di una disposizione sfalsata delle saldature, il divisore 2 viene omesso in termini di HEd.


Link
Bibliografia


;