12811x
001402
13.2.2017

Posouzení svarů kolejnic jeřábových drah v mezním stavu únosnosti podle EN 1993-6

Pokud je nosník jeřábové dráhy navržen s kolejnicemi z ploché oceli, je třeba při posouzení, respektive při návrhu také vždy uvážit svarové spoje daných kolejnic. Obecně můžeme zvolit buď průběžné anebo přerušované koutové svary. Následující příspěvek má přiblížit postup a zvláštnosti posouzení zejména podle EN 1993-6.

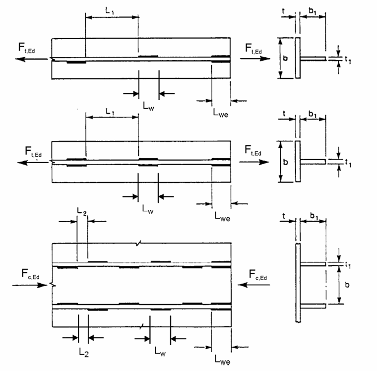
Možnosti uspořádání koutových svarů kolejnic

V případě přerušovaných koutových svarů máme na výběr ze dvou možností. Tyto možnosti jsou znázorněny na následujícím obrázku, který jsme převzali z [2].

V přerušovaných koutových svarech lze uspořádat svary buď naproti sobě anebo střídavě. Jejich střídavé uspořádání má při posouzení tu nevýhodu, že do přenosu zatížení od vodorovných sil lze zapojit pouze jeden svar. Třetí možnost, která není znázorněna na obrázku výše, samozřejmě představuje průběžný koutový svar podél celé kolejnice.

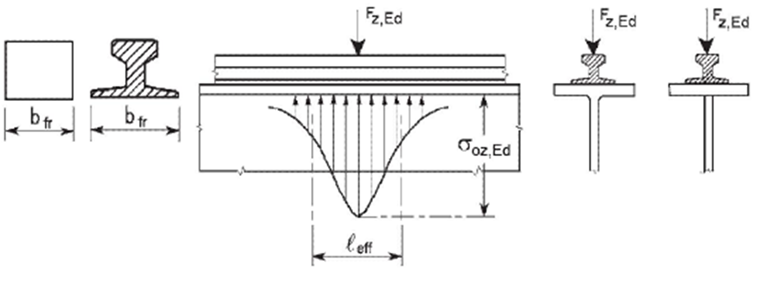
Účinná roznášecí délka

Pro stanovení příslušných napětí ve svarech je třeba vypočítat účinnou roznášecí délku. EN 1993-6 přitom rozlišuje tři možnosti a předkládá tabulku 5.1 s příslušnými vzorci pro výpočet leff.

leff se přitom vztahuje ke spodní hraně horní pásnice. Pro posouzení svarů je ovšem směrodatná horní hrana pásnice. Proto se leff redukuje o dvojnásobek tloušťky pásnice tf.

Posouzení v mezním stavu únosnosti

Napětí ve svarech kolejnic se spočítají metodou uvažující směr namáhání podle [2]. Napětí se přitom vztahují k ploše půlící úhel koutového svaru. V souladu s [2], kap. 4.5.2 je třeba u svaru dodržet minimální účinnou tloušťku, která musí odpovídat alespoň 3 mm nebo musí (podle německé národní přílohy) splňovat následující podmínku:

Excentrické působení kolového zatížení odpovídající 1/4 šířky hlavy kolejnice se v mezním stavu únosnosti podle EN 1993-6 neuvažuje. Při posouzení se tak zohledňuje vždy centrické působení kolových zatížení.

Případ 1: Průběžný svar kolejnic

U přerušovaných koutových svarů kolejnic je třeba prověřit, zda je délka jednotlivého svaru lw menší než vypočítaná roznášecí délka leff. Obecně je z obou délek rozhodující pro posouzení nejmenší hodnota.

Případ 2: Protilehlé svary v přerušovaném kolejnicovém svaru

Případ 3: Střídavé svary v přerušovaném kolejnicovém svaru

Protože vodorovné zatížení může v případě střídavého uspořádání svarů přenášet pouze jeden svar, vypadává u členu HEd dělitel 2.


Odkazy
Reference


;