12811x
001402
2017-02-13

Obliczanie stanu granicznego nośności spoin w przypadku szyn mocowanych do belek podsuwnicowych, zgodnie z normą EN 1993-6

Jeżeli do belek podsuwnicowych montowane są płaskie szyny stalowe, spoiny takich szyn są zawsze przedmiotem szczegółowej analizy. Jako mocowanie szyny można zazwyczaj wybrać spoinę pachwinową ciągłą lub przerywaną. Der folgende Beitrag soll einen Überblick über die Nachweisführungen und deren Besonderheiten geben, speziell bei Verwendung der DIN EN 1993-6.

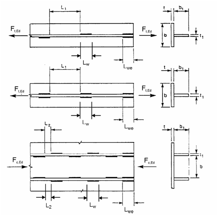
Opcje rozmieszczenia spoin pachwinowych szyny

Istnieją dwa warianty połączeń spoinami pachwinowymi przerywanymi. Są one pokazane na poniższym rysunku z [2].

Przekroje spawane mogą być rozmieszczone po przeciwnych stronach lub naprzemiennie. Układ naprzemienny jest niekorzystny dla obliczeń, ponieważ tylko jedna spoina może być wykorzystana do przeniesienia obciążeń poziomych. Trzecią opcją, której nie pokazano na powyższym rysunku, jest oczywiście ciągła spoina pachwinowa na całej długości szyny.

4 – Efektywna szerokość strefy obciążenia

Określenie odpowiednich naprężeń w spoinie wymaga obliczenia efektywnych długości obciążonych. Norma EN 1993-6 rozróżnia trzy opcje i podaje odpowiednie wzory do obliczania leff w tabeli 5.1.

W tym przypadku leff odnosi się do spodu górnej półki. Jednak dla obliczeń spoin decyduje górna powierzchnia górnej półki. Dlatego wartość leff jest pomniejszona o podwójną grubość pasa tf.

Stan graniczny użytkowalności

Naprężenia spoiny szyny są obliczane zgodnie z metodą kierunkową podaną w [2]. W tym przypadku naprężenia odnoszą się do dwusiecznej powierzchni spoiny pachwinowej. Zgodnie z [2], (NA) sekcja 4.5.2 dla spoiny należy zachować minimalne grubości konstrukcyjne. Norma wymaga spoiny o grubości co najmniej 3 mm lub zastosowania wzoru:

Mimośrodowe obciążenie kołem równe 1/4 szerokości główki szyny nie jest uwzględniane w stanie granicznym nośności zgodnie z EN 1993-6. Dlatego zawsze przeprowadza się obliczenia ze względu na obciążenie kołem.

Przypadek 1 Ciągłe spoiny szynowe

W przypadku przerywanych spoin pachwinowych szyny należy sprawdzić, czy długość spoiny lw jest mniejsza niż obliczona długość spoiny leff. Zasadniczo w obliczeniach określa się minimum z obu wartości.

Przypadek 2 Przerywane spawanie szyny po przeciwnych stronach

Przypadek 3: Przerywane spoiny szynowe

Ponieważ obciążenie poziome jest przykładane do przekroju spoiny tylko w przypadku przestawnego układu spoin, dzielnik 2 jest pomijany dla HEd.


Odnośniki
Odniesienia


;