1839x
004746
01-10-2020

Modificación de la visibilidad definida por el usuario

¿Cómo puedo cambiar una visibilidad definida por el usuario?


Respuesta:

Los objetos se pueden integrar con carácter retroactivo en las visibilidades existentes: Beenden Sie den Sichtbarkeitsmodus über Menü "Ansicht" → "Sichtbarkeit" → "Sichtbarkeitsmodus aufheben" oder die betreffende Schaltfläche. Ahora, seleccione los objetos que desee añadir.

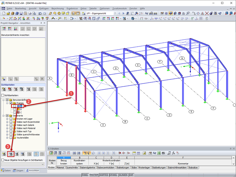
Klicken Sie im Ansichten-Navigator in der Liste "Benutzerdefinierte" die zu ändernde benutzerdefinierte Sichtbarkeit an. Es wird die Schaltfläche zugänglich, mit der die selektieren Objekte in die benutzerdefinierte Sichtbarkeit integriert werden können (Bild 01).

Analog lassen sich mit der Schaltfläche "Selektierte Objekte von selektierter benutzerdefinierten Sichtbarkeit entfernen" selektierte Objekte wieder aus einer benutzerdefinierten Sichtbarkeit entfernen (Bild 02).

Mit der Schaltfläche "Selektierte benutzerdefinierte Sichtbarkeit mit selektierten Objekten neu festlegen" werden die Objekte, die in der markierten Sichtbarkeit des Ansichten-Navigators vorliegen, durch die Selektion im Arbeitsfenster überschrieben (Bild 03). Damit lassen sich bestehende Sichtbarkeiten neu definieren; der Name bleibt erhalten.

Im Video wird zunächst gezeigt, wie weitere Stäbe zur benutzerdefinierten Sichtbarkeit "A" hinzugefügt werden. Danach wird ein Stab aus der benutzerdefinierten Sichtbarkeit "B" entfernt. Abschließend wird die benutzerdefinierte Sichtbarkeit "C" mit den selektierten Objekten neu festgelegt.


Autor

Sonja trabaja en Product Engineering y además presta apoyo en Customer Support. Su enfoque se centra en RSECTION, así como en la construcción en acero y aluminio, donde aporta sus conocimientos de forma específica.



;