11139x
001728
2021-12-23

Verificação ao punçoamento no RFEM 6

A verificação ao punçoamento de acordo com a EN 1992-1-1 deve ser realizada para lajes com uma carga concentrada ou para lajes com uma reação. O nó onde o dimensionamento da resistência ao punçoamento é realizado (ou seja, onde existe um problema de punçoamento) é chamado nó de punçoamento. Nestes nós, a carga concentrada pode ser introduzida por pilares, forças concentradas ou apoios de nós. O final da introdução de carga linear em lajes também é considerado como uma carga concentrada e, portanto, a resistência ao corte nas extremidades de paredes, cantos de paredes e extremidades ou cantos de cargas de linha e apoios de linha também deve ser controlada.

Perímetro de controlo

A verificação ao punçoamento é realizada no perímetro de controlo básico, onde é verificado se a força de corte atuante vEd excede a resistência vRd. De acordo com o capítulo 6.4.2 do EC 2 {%>

As dimensões do pilar assim como das aberturas da laje afectam a geometria do perímetro de controlo e devem ser consideradas até a uma distância de 6 d da superfície de carga. É importante que defina todas as aberturas previamente (ou seja, durante a análise de MEF) para que o programa possa reconhecê-las automaticamente e considerá-las na verificação ao punçoamento, conforme apresentado na Figura 1.

Parâmetros de dimensionamento ao punçoamento no RFEM 6

Assumindo que o módulo Concrete Desidn já foi ativado, a verificação ao punçoamento no RFEM 6 pode ser inicializada através da verificação da caixa de verificação do punçoamento nas propriedades de dimensionamento do nó de punçoamento (Figura 2). É possível selecionar todos os nós onde ocorreu um problema de punçoamento e ativar a verificação ao punçoamento simultaneamente para todos eles. Em alternativa, os nós com punçoamento podem ser selecionados para dimensionamento nos Dados de entrada da tabela Dimensionamento de betão (Figura 3).


Os parâmetros de dimensionamento para o punçoamento de nós selecionados podem ser definidos na configuração do estado limite último para o dimensionamento do betão (Figura 4). Assim, a carga de punçoamento, o fator de incremento de carga β para considerar a distribuição assimétrica da força de corte no perímetro de controlo e o espaçamento mínimo da armadura podem ser definidos no separador Punçoamento da configuração do ELU (Figura 5).


A carga de punçoamento para paredes é a força de corte (suavizada ou não suavizada) sobre o perímetro crítico, enquanto que para os pilares a carga de punçoamento pode ser a força de corte (suavizada ou não suavizada) sobre o perímetro crítico ou uma força única do pilar, a carga, ou apoio nodal.

O fator de incremento de carga de acordo com EN 1992-1-1 {%>

Verificação ao punçoamento no RFEM 6

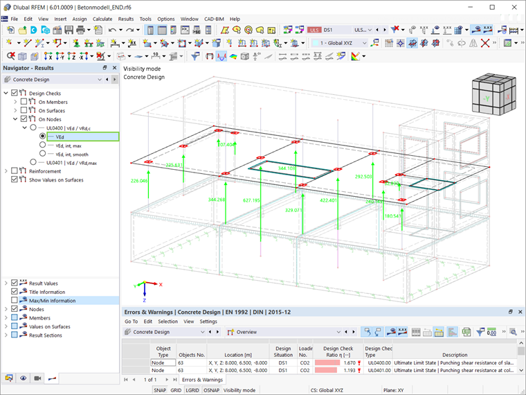
Assumindo que os parâmetros de dimensionamento para o punçoamento foram definidos, o dimensionamento de betão (incluindo punçoamento) pode ser realizado. Primeiro, o dimensionamento pode ser realizado tendo em consideração apenas a armadura longitudinal que já foi aplicada à superfície (Figura 7). Assim que o dimensionamento de betão é realizado considerando apenas esta armadura, as relações de dimensionamento em termos de resistência ao punçoamento para todos os nós de interesse ficam disponíveis tanto em gráficos como em tabelas (Figura 8).


As relações de cálculo nos nós de punçoamento são, de facto, uma comparação entre a resistência ao punçoamento sem armadura de corte vRd,c determinada de acordo com 6.4.4 (1) {%>Ed foi calculada de acordo com o Capítulo 6.4.3 (3), eq. (38). Estas equações, bem como todo o procedimento de cálculo, podem ser encontrados nos detalhes da verificação de dimensionamento apresentados na Figura 9.

O punçoamento sem armadura de punçoamento adicional é cumprido se vEd ≤ vRd,c ; caso contrário, tem de ser definida uma armadura adicional. No último caso, é possível definir uma armadura longitudinal adicional no lado tracionado da laje.

Para a laje neste exemplo, isso será feito definindo uma armadura longitudinal adicional no lado superior, como apresentado na Figura 10. A armadura definida pode ser atribuída a um nó e, em seguida, pode ser facilmente copiada para todos os nós de punçoamento através da função comum "copiar" (Figura 11). A armadura atribuída desta forma será então considerada automaticamente para a determinação da capacidade de corte.


Mais uma vez, os resultados estão disponíveis graficamente e na tabela Dimensionamento de betão. Se a verificação ao punçoamento sem armadura de punçoamento adicional ainda não for cumprida, o utilizador pode aumentar a armadura longitudinal aplicando a relação de armadura longitudinal máxima permitida ρ. No entanto, se a verificação ao punçoamento não for possível sem armadura de punçoamento (vRd,c ≤ vEd ), a resistência máxima ao punçoamento vRd,max é calculada e a verificação é realizada automaticamente.

A quantidade de armadura necessária em termos de punçoamento pode ser apresentada no separador Resultados do navegador (Figura 12). Se o utilizador também estiver interessado na carga de punçoamento utilizada para o cálculo, esta pode ser apresentada através do separador Resultados do navegador, conforme apresentado na Figura 13.


Considerações finais

A verificação ao punçoamento no RFEM 6 está incluída no módulo Dimensionamento de betão e pode ser inicializada através da verificação da caixa de verificação ao punçoamento na janela de edição dos nós de punçoamento. Através da ativação das propriedades de dimensionamento, é possível definir os parâmetros de dimensionamento do punçoamento, tais como a carga de punçoamento, o fator de incremento de carga β e o espaçamento mínimo de armadura a serem definidos na configuração do estado limite último para o dimensionamento do betão.

O dimensionamento de betão pode ser realizado com base na armadura longitudinal existente para os outros tipos de dimensionamento. Se a verificação ao punçoamento sem armadura de punçoamento adicional não for cumprida (vRd,c ≤ vEd ), pode ser atribuída uma armadura longitudinal adicional no lado tracionado da laje. Desta forma, a resistência máxima ao punçoamento vRd,máx é calculada e a verificação é realizada automaticamente.


Autor

A Eng.ª Kirova é responsável pela criação de artigos técnicos e presta apoio técnico aos clientes da Dlubal.

Ligações
Referências


;