10925x
001728
2021-12-23

RFEM 6 中的冲切设计

对于集中荷载或反力作用的楼板,应按照 EN 1992-1-1 进行冲切设计。 进行抗冲切承载力设计的节点(即存在冲切问题的节点)称为冲切节点。 在这些节点上的集中荷载可以通过柱、集中力或节点支座来引入。 板件上的线荷载引入末端也被认为是集中荷载,因此在墙末端、墙角以及线荷载和线支座的末端或拐角处的抗剪承载力也应进行控制。

临界截面

在基本临界截面进行冲切验算,检查作用的剪力 vEd是否超过承载力 vRd 。 根据欧洲规范 EC 2 第 6.4.2 章{%! [SCHOOL.INSTITUTION]

柱子和板洞口的尺寸影响临界截面,所以在距荷载作用面 6 d 处的范围内都要加以考虑。 重要的是事先定义所有洞口(在进行FEM分析时),以便程序可以自动识别它们,并在进行冲切设计时考虑它们,如图1所示。

RFEM 6 中的冲切设计参数

假设已经激活了 混凝土设计 模块,那么可以通过在冲切节点设计属性中勾选 冲切设计来初始化 RFEM 6 中的抗冲切设计(图 2)。 可以选择所有出现冲切问题的节点,并同时激活它们的冲切设计。 或者,在混凝土设计的输入数据表格中选择冲切节点(图 3)


所选节点的抗冲切设计参数可以在混凝土设计的承载能力极限状态配置中定义(图 4)。 冲切荷载、考虑控制截面剪力非对称分布的荷载增量系数 β 和最小钢筋间距都可以在承载能力极限状态配置的冲切选项卡中设置(图 5)。


对于墙,冲切荷载可以是临界截面上的剪力(平滑或未平滑),或节点支座。

EN 1992-1-1 中规定的荷载增量系数{%! 请#Refer [1]]] 也可以由扇形模型确定或用户定义。

在 RFEM 6 中进行冲切验算

如果已经定义了冲切设计参数,那么就可以进行混凝土设计(包括冲切设计)。 第一种方法可以只考虑已经布置在面上的纵向钢筋(图 7)。 如果进行了仅考虑该钢筋的混凝土设计,那么所有相关节点的抗冲切承载力设计利用率都会以图形和表格的形式显示(图 8)。


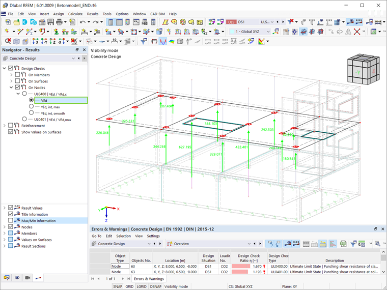
冲切节点上的设计利用率实际上是根据 6.4.4 (1) 确定的不配置抗剪钢筋的冲切抗剪承载力 vRd,c [1] —— 根据章节 6.4.3(3) 计算的最大剪应力 vEd (38). 在图 9 所示的设计验算详情中可以找到这些公式以及整个计算过程。

满足冲切要求不需附加冲切钢筋,如果 vEd ≤ vRd,c ;否则需定义附加钢筋。 在后一种情况下,可以在板的受拉侧定义额外的纵向钢筋。

对于本例中的楼板,如图10所示,将通过在顶部定义额外的纵向钢筋来完成。 可以将定义的钢筋分配给一个节点,然后使用公共的“复制”功能可以很容易地将其复制到所有冲切节点(图 11)。 在确定抗剪承载力时自动考虑这样分配的钢筋。


计算结果将以图形方式和“混凝土设计”表格形式输出。 如果不满足附加冲切钢筋的要求仍然不能满足冲切设计要求,用户可以通过增加最大容许纵向钢筋配筋率 ρ 来增加纵向钢筋。 然而,如果在没有冲切钢筋的情况下冲切设计是不可能的(vRd,c ≤ vEd ),那么会计算最大受冲切承载力 vRd,max并且自动进行设计验算。

在导航器结果选项卡中可以显示根据冲切所需的钢筋数量(图12)。 如果用户对计算中使用的冲切荷载感兴趣,可以在导航器中选择结果选项卡查看该荷载,如图 13 所示。


结束语

RFEM 6 中的抗冲切设计模块包含在混凝土设计模块中,可以通过勾选编辑窗口中冲切节点的抗冲切设计复选框进行初始化。 点击设计属性后,可以在混凝土设计的“承载能力极限状态配置”中定义抗冲切设计参数,例如冲切荷载、荷载增量系数 β 和最小钢筋间距。

进行混凝土设计时,可以使用其他设计类型中的纵向钢筋进行。 如果不满足附加冲切钢筋的冲切设计不满足 (vRd,c ≤ vEd ),则可以在板的受拉侧分配附加纵向钢筋。 程序会自动计算最大受冲切承载力 vRd,max ,并进行验算。


作者

Kirove 女士的职责是撰写技术文章并为 Dlubal 软件的客户提供技术支持。

链接
参考


;