11139x
001728
23.12.2021

Posouzení na protlačení v programu RFEM 6

Posouzení na protlačení se má podle EN 1992-1-1 provést u desek se soustředěným zatížením nebo reakcí. Uzel, kde se provádí posouzení na únosnost ve smyku při protlačení (tj. v případě problému s protlačením), se označuje jako uzel protlačení. Soustředěné zatížení v těchto uzlech lze zadat pomocí sloupů, osamělé síly nebo uzlových podpor. Koncový bod lineárního zatížení na deskách se také považuje za soustředěné zatížení, a proto by měla být kontrolována smyková únosnost také na koncích a v rozích stěn a na koncích nebo v rozích liniových zatížení a liniových podpor.

Kontrolovaný obvod

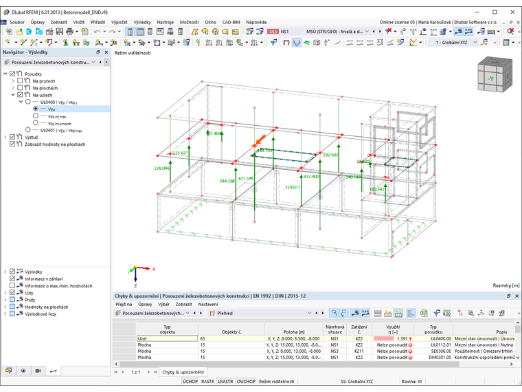
Posouzení na protlačení se provádí v základním kontrolovaném obvodu a ověřuje se, zda působící posouvající síla vEd nepřekračuje únosnost vRd. Podle kapitoly 6.4.2 normy EC 2 [1] je kontrolovaný obvod u desek ve vzdálenosti dvojnásobku účinné výšky (d) desky od bodu působení zatížení.

Rozměry sloupu a otvory v deskách mají vliv na geometrii kontrolovaného obvodu a je třeba je zohlednit až do vzdálenosti 6 d od zatěžované plochy. Je důležité definovat všechny otvory předem (tzn. již pro analýzu MKP), program je pak automaticky rozpozná a zohlední při posouzení protlačení, jak je znázorněno na obrázku 1.

Parametry posouzení na protlačení v programu RFEM 6

Za předpokladu, že addon Posouzení železobetonových konstrukcí byl již aktivován, lze posouzení na protlačení v programu RFEM 6 inicializovat zaškrtnutím políčka Posouzení na protlačení ve vlastnostech posouzení uzlu protlačení (obrázek 2). Můžeme tak vybrat všechny uzly, v nichž nastává problém s protlačením, a současně zde pro ně aktivovat posouzení. Alternativně lze uzly s protlačením vybrat pro posouzení v tabulce Vstupní údaje v tabulce Posouzení železobetonových konstrukcí (obrázek 3).


Parametry posouzení na protlačení pro vybrané uzly lze zadat v Konfiguraci mezního stavu únosnosti pro posouzení železobetonových konstrukcí (obrázek 4). V záložce Protlačení konfigurace mezního stavu únosnosti tak lze nastavit zatížení pro protlačení, součinitel přírůstku zatížení β pro zohlednění asymetrického rozdělení smykové síly v kontrolovaném obvodu a minimální vzdálenost výztuže (obrázek 5).


Zatížení pro protlačení u stěn je smyková síla (vyhlazená nebo nevyhlazená) podél kontrolovaného obvodu, zatímco u sloupů může být zatížení pro protlačení buď posouvající síla (vyhlazená nebo nevyhlazená) podél kontrolovaného obvodu nebo osamělá síla od sloupu, zatížení nebo uzlové podpory.

Součinitel přírůstku zatížení podle EN 1992-1-1 [1] lze odhadnout na základě plně plastického rozdělení smyku, jak je znázorněno na obrázku 6, nebo pomocí konstantních součinitelů. Lze ho určit také sektorovou metodou nebo ho může zadat sám uživatel.

Posouzení na protlačení v programu RFEM 6

Když jsou zadány parametry posouzení na protlačení, lze posouzení železobetonové konstrukce (včetně protlačení) spustit. Nejprve může být posouzení provedeno tak, že se zohlední pouze podélná výztuž, která již byla na ploše vytvořena (obrázek 7). Po posouzení betonu se zohledněním pouze této výztuže se zobrazí graficky i v tabulkách využití pro únosnost ve smyku při protlačení pro všechny zadané uzly protlačení (obrázek 8).


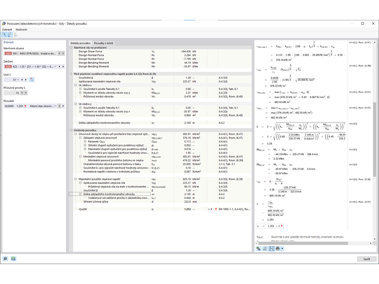
Využití v uzlech protlačení jsou ve skutečnosti porovnáním únosnosti ve smyku při protlačení vRd,c bez smykové výztuže stanovené podle 6.4.4 (1) [1] a použité maximální smykové napětí vEd vypočítané podle kapitoly 6.4.3 (3), rovnice (38). Tyto rovnice, stejně jako celý postup výpočtu, najdete v detailech posudku znázorněném na obrázku 9.

Posouzení na protlačení bez přídavné výztuže proti protlačení je splněno, pokud vEd ≤ vRd,c; v opačném případě je třeba definovat přídavnou výztuž. V takovém případě je možné definovat přídavnou podélnou výztuž na tažené straně desky.

U desky v tomto příkladu se to provede zadáním přídavné podélné výztuže na horní straně podle obrázku 10. Zadanou výztuž lze přiřadit k jednomu uzlu a poté ji snadno zkopírovat pro všechny uzly protlačení pomocí běžné funkce „Kopírovat“ (obrázek 11). Takto přiřazená výztuž se pak automaticky zohlední při výpočtu smykové únosnosti.


Výsledky jsou opět k dispozici jak graficky, tak v tabulce Posouzení železobetonových konstrukcí. Pokud posouzení na protlačení bez přídavné výztuže proti protlačení není stále splněno, může uživatel zvýšit podélnou výztuž použitím maximálního přípustného stupně podélného vyztužení ρ. Pokud je ovšem posouzení na protlačení (vRd,c≤ vEd) nemožné bez výztuže proti protlačení, vypočítá se maximální únosnost ve smyku při protlačení vRd,max a automaticky se provede posouzení.

Množství nutné výztuže z hlediska protlačení lze zobrazit v záložce Výsledky v navigátoru (obrázek 12). Pokud uživatele zajímá také zatížení pro protlačení použité pro výpočet, lze ho zobrazit v záložce Výsledky v navigátoru, jak je znázorněno na obrázku 13.


Závěrečné poznámky

Posouzení na protlačení v programu RFEM 6 je obsaženo v addonu Posouzení železobetonových konstrukcí a lze ho inicializovat zaškrtnutím políčka Posouzení na protlačení v dialogu Upravit uzly protlačení. Aktivace vlastností posudku umožní definovat parametry posouzení na protlačení, jako je zatížení pro protlačení, součinitel přírůstku zatížení β a minimální vzdálenost výztuže v konfiguraci mezního stavu únosnosti pro posouzení železobetonových konstrukcí.

Posouzení betonu je možné provést s podélnou výztuží navrženou pro ostatní typy posouzení. Pokud není posouzení na protlačení bez přídavné výztuže proti protlačení splněno (vRd,c ≤ vEd ), je možné přiřadit přídavnou podélnou výztuž na tažené straně desky. Tímto způsobem se spočítá maximální únosnost ve smyku při protlačení vRd,max a automaticky se provede posouzení.


Autor

Ing. Kirova je ve společnosti Dlubal zodpovědná za tvorbu odborných článků a poskytuje technickou podporu zákazníkům.

Odkazy
Reference


;