11139x
001728
2021-12-23

Verifica a taglio-punzonamento in RFEM 6

La verifica a taglio-punzonamento, in linea con la EN 1992-1-1, dovrebbe essere eseguita per solette con carico o reazione concentrata. Il nodo in cui viene eseguita la verifica della resistenza a taglio-punzonamento (ovvero, dove c'è un problema di punzonamento) è chiamato nodo di taglio a punzonamento. Il carico concentrato in questi nodi può essere introdotto da colonne, forza concentrata o vincoli esterni nodali. Anche l'estremità dell'introduzione del carico lineare sulle solette è considerata un carico concentrato e, pertanto, è necessario controllare anche la resistenza a taglio alle estremità delle pareti, agli angoli delle pareti e alle estremità o agli angoli dei carichi delle linee e dei vincoli esterni delle linee.

Perimetro di controllo

La verifica a taglio-punzonamento viene eseguita nel perimetro di controllo di base, dove si verifica se la forza di taglio agente vEd supera la resistenza vRd. Secondo il capitolo 6.4.2 di EC 2 [1], il perimetro di controllo per le solette si trova a una distanza doppia dell'altezza efficace (d) della soletta dal punto di applicazione del carico.

Le dimensioni della colonna e le aperture della soletta influenzano la geometria del perimetro di controllo e dovrebbero essere considerate fino alla distanza di 6 d della superficie di carico. È importante definire tutte le aperture in anticipo (cioè durante l'analisi FEM), in modo che il programma possa riconoscerle automaticamente e tenerne conto per la verifica a punzonamento, come mostrato nell'immagine 1.

Parametri della verifica a punzonamento in RFEM 6

Supponendo che l'add-on Verifica calcestruzzo sia già stato attivato, la verifica a taglio-punzonamento in RFEM 6 può essere inizializzata selezionando la casella Verifica a punzonamento nelle proprietà di progetto del nodo di punzonamento (Figura 2). È possibile selezionare tutti i nodi in cui si è verificato un problema di punzonamento e attivare il progetto di punzonamento contemporaneamente per tutti loro. In alternativa, i nodi con punzonamento possono essere selezionati per la verifica nei Dati di input della tabella Verifica calcestruzzo (Immagine 3).


I parametri di verifica a punzonamento per i nodi selezionati possono essere definiti nella configurazione ultima per la verifica del calcestruzzo (Figura 4). Pertanto, il carico di punzonamento, il coefficiente di incremento del carico β per considerare la distribuzione asimmetrica della forza di taglio nel perimetro di controllo e la spaziatura minima dell'armatura possono essere impostati nella scheda Punzonamento della configurazione ultima (Figura 5).


Il carico di punzonamento per le pareti è la forza di taglio (livellata o non livellata) sul perimetro critico, mentre per le colonne, il carico di punzonamento può essere la forza di taglio (livellata o non livellata) sul perimetro critico o una singola forza dalla colonna, carico, o vincolo esterno del nodo.

Il coefficiente di incremento del carico secondo EN 1992-1-1 [1] può essere stimato considerando la distribuzione a taglio completamente plastico come mostrato nell'immagine 6, o mediante coefficienti costanti. Può anche essere determinato da un modello di settore o definito dall'utente.

Verifica a taglio-punzonamento in RFEM 6

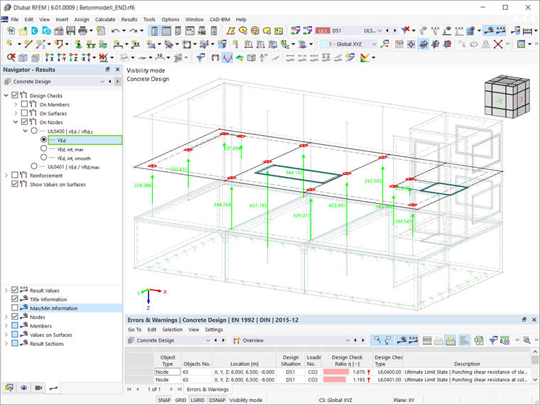
Supponendo che i parametri di verifica a punzonamento siano stati definiti, è possibile eseguire la verifica del calcestruzzo (incluso il punzonamento). Innanzitutto, la verifica può essere eseguita tenendo conto solo dell'armatura longitudinale, che è già stata fornita alla superficie (Figura 7). Una volta che la verifica del calcestruzzo è stata eseguita considerando solo questa armatura, i rapporti di progetto in termini di resistenza a taglio-punzonamento per tutti i nodi di interesse sono disponibili sia graficamente che nelle tabelle (Figura 8).


I rapporti di progetto sui nodi di punzonamento sono, infatti, un confronto tra la resistenza a taglio-punzonamento senza armatura a taglio vRd,c determinata secondo 6.4.4 (1) [1], e la tensione tangenziale massima applicata vEd calcolata in linea con il Capitolo 6.4.3 (3), Eq. (38). Queste equazioni, così come l'intera procedura di calcolo, possono essere trovate nei dettagli della verifica mostrati nell'immagine 9.

Il taglio a punzonamento senza armatura a punzonamento aggiuntiva è soddisfatto se vEd ≤ vRd,c ; in caso contrario, è necessario definire un'armatura aggiuntiva. In quest'ultimo caso, è possibile definire un'armatura longitudinale aggiuntiva sul lato teso della soletta.

Per la soletta in questo esempio, ciò sarà fatto definendo un'armatura longitudinale aggiuntiva sul lato superiore, come mostrato nell'immagine 10. L'armatura definita può essere assegnata a un nodo, quindi può essere facilmente copiata su tutti i nodi di punzonamento utilizzando la funzione comune "copia" (Figura 11). L'armatura assegnata in questo modo sarà quindi considerata automaticamente per la determinazione della capacità di taglio.


Ancora una volta, i risultati sono disponibili sia graficamente che nella tabella Verifica calcestruzzo. Se la verifica a taglio-punzonamento senza armatura a punzonamento aggiuntiva non è ancora soddisfatta, l'utente può aumentare l'armatura longitudinale applicando il rapporto di armatura longitudinale massimo consentito ρ. Tuttavia, se la verifica a taglio-punzonamento è impossibile senza armatura a punzonamento (vRd,c ≤ vEd ), viene calcolata la resistenza massima a taglio-punzonamento vRd,max e la verifica viene eseguita automaticamente.

La quantità di armatura richiesta in termini di punzonamento può essere visualizzata tramite la scheda Risultati del navigatore (Figura 12). Se l'utente è interessato anche al carico di punzonamento utilizzato per il calcolo, può essere visualizzato tramite la scheda Risultati del navigatore come mostrato nell'immagine 13.


Osservazioni finali

La verifica a taglio-punzonamento in RFEM 6 è inclusa nell'add-on Verifica calcestruzzo e può essere inizializzata selezionando la casella Verifica a punzonamento nella finestra di modifica dei nodi di punzonamento. L'attivazione delle proprietà di progetto consentirà di definire i parametri di progetto a punzonamento come il carico di punzonamento, il coefficiente di incremento del carico β e la spaziatura minima dell'armatura nella configurazione ultima per la verifica del calcestruzzo.

La verifica del calcestruzzo può essere eseguita sulla base dell'armatura longitudinale prevista per gli altri tipi di verifica. Se la verifica a taglio-punzonamento senza armatura a punzonamento aggiuntiva non è soddisfatta (vRd,c ≤ vEd ), è possibile assegnare un'armatura longitudinale aggiuntiva sul lato teso della soletta. In questo modo, viene calcolata la massima resistenza a taglio-punzonamento vRd,max e la verifica viene eseguita automaticamente.


Autore

La signora Kirova è responsabile della creazione di articoli tecnici e fornisce supporto tecnico ai clienti Dlubal.

Link
Bibliografia


;