Community
    Inicie sesión en su cuenta

    Regístrese en el extranet de Dlubal para aprovechar al máximo el software y tener acceso exclusivo a sus datos personales.

    Crear cuenta
    Al iniciar sesión, acepta las Condiciones de uso y venta de Dlubal. Consulte nuestro Aviso de privacidad y nuestro Aviso de cookies.
    0
    Tienda en línea
    Contacte al equipo de ventas
    Idioma
    • Deutsch
    • English
    • Français
    • Español
    • Português
    • Italiano
    • Česky
    • Polski
    • Pусский
    • 中文(简体)
    • Sectores
      • Estructuras de hormigón armado
      • Estructuras de hormigón pretensado
      • Estructuras de acero
      • Estructuras de madera
      • Estructuras de fábrica
      • Estructuras ligeras y de aluminio
      • Edificios
      • Estructuras industriales
      • Tuberías
      • Estructuras de puentes
      • Grúas y caminos de rodadura para grúas
      • Torres y mástiles
      • Estructuras de vidrio
      • Estructuras con membranas tensadas
      • Estructuras tensadas y de cables
      • Estructuras laminadas y tipo sándwich
      • Estructuras temporales
      • Estructuras de andamios y estanterías
      • Estructuras costa afuera
      • Silos y tanques de almacenamiento
      • Instalaciones de energías renovables
      • Estructuras solares y sistemas de montaje
      • Construcción naval y cuerpos flotantes
      • Estructuras de transportadoras
      • Estructuras de perforación
      • Piscinas y parques acuáticos
      • Estructuras de contenedores
      • Cimentaciones con pilotes perforados
      • Estructuras de escaleras
      • Centrales eléctricas
      • Ingeniería hidráulica de acero
      • Génie mécanique
      • Estructuras neumáticas
      Áreas de aplicación
      • Ingeniería estructural
      • Software de cálculo por elementos finitos (MEF)
      • Simulación de viento y generación de cargas de viento
      • Análisis de tensiones
      • Análisis no lineal
      • Análisis de estabilidad
      • Análisis no lineal de pandeo
      • Análisis de torsión de alabeo
      • Análisis dinámico y sísmico
      • Análisis dinámico no lineal
      • Análisis con el método del empuje incremental ("pushover")
      • Búsqueda de forma y patrones de corte
      • Uniones de acero
      • Planificación orientada al BIM
      • Secciones conformadas en frío
      • Interacción suelo-estructura
      • Análisis de estructuras de fachadas
      • Cimentaciones e ingeniería de cimentación
      • Fases de construcción
      • Protección contra incendios
      Normas
      • Eurocódigos (EC)
      • Normas alemanas (DIN)
      • Normas británicas (BS EN, BS)
      • Normativa Italiana (NTC)
      • Normas estadounidenses
      • Normas canadienses (CSA)
      • Normas australianas (AS)
      • Normas suizas (SIA)
      • Normas chinas (GB, HK)
      • Normas de India (IS)
      • Normas mexicanas (RCDF, CFE Sismo 15)
      • Normas rusas (SP)
      • Normas sudafricanas (SANS)
      • Normas brasileñas (NBR)
      Servicios en línea
      • Icono del menú superior de herramienta de geo-zona Mapas de carga de nieve, velocidad del viento y carga sísmica
      • Icono de cálculo en la nube Cálculos en la nube
      • Icono de wiki sobre análisis estructural Wiki de análisis de estructuras
      • Propiedades de la sección de iconos de secciones de acero y madera Propiedades de secciones transversales de perfiles de acero
      Cálculo estructural para sistemas solares

      Dlubal Software te ayuda a crear y verificar cualquier sistema de montaje solar. Trabaja de manera eficiente con estructuras de acero, aluminio y concreto en un solo entorno.

      Explorar herramientas
      Estructuras solares Estructuras solares | Versión móvil
      API de Dlubal

      El nuevo servicio API de Dlubal (gRPC) te proporciona una interfaz flexible para el software de análisis estructural basado en Python y C#, con acceso directo a toda la gama de productos de Dlubal.

      Comenzar con API
      Fondo para el banner de menú principal de la API Fondo para el banner de menú principal de la API
    • Icono que representa RFEM 6, una aplicación de software de análisis de elementos finitos. RFEM 6 El único software de análisis por elementos finitos que necesita para sus proyectos

      RFEM 6 forma la base de la familia de programas modulares y se utiliza para la definición de estructuras, materiales y cargas para estructuras de placas, superficies, láminas y barras, así como para elementos sólidos y de contacto.

      Más información
      Icono de cambio de módulo Complementos
      • Análisis adicionales
      • Análisis dinámico
      • Soluciones especiales
      • Cálculo y dimensionamiento
      • Uniones
      Icono de RSTAB 9 sin límites RSTAB 9 Software de estructuras de barras icónico

      RSTAB 9 es un software potente de análisis y dimensionamiento en 3D de estructuras de vigas, pórticos o cerchas, que refleja el estado de la técnica actual y ayuda a los ingenieros y consultores de estructuras a cumplir con los requisitos de la ingeniería de estructuras moderna.

      Más información
      Icono de cambio de módulo Complementos
      • Análisis adicionales para RSTAB 9
      • Análisis dinámico
      • Soluciones especiales
      • Cálculo
      Icono de RSECTION 1 sin límites RSECTION 1 Propiedades de secciones transversales definidas por el usuario

      RSECTION apoya a los ingenieros estructurales determinando las propiedades de secciones para una amplia variedad de secciones transversales y permite un análisis de tensiones posterior.

      Más información
      Icono de RWIND 3 sin límites RWIND 3 Software de CFD para túneles de viento digital

      RWIND 3 es un túnel de viento digital para la simulación de flujos de viento alrededor de cualquier geometría de edificio o estructura y para el cálculo de las cargas de viento sobre sus superficies.

      Más información
      Ícono de API API de Dlubal Su puerta de entrada a la modelación paramétrica y automatización

      El nuevo servicio API de Dlubal (gRPC) le ofrece una interfaz flexible para el software de estática basado en Python y C#, con acceso directo a toda la gama de productos de Dlubal. Benefíciese de una integración fluida y potente en su software Dlubal, ideal para la modelización paramétrica y tareas de optimización complejas.

      Explorar API
      Documentación de API Documentación de API
      • Índice
      • Primeros pasos
      • Aplicaciones
      • Objetos del modelo
      • Suscripciones y precios
      • Ejemplos
      AEF para conexiones de acero

      Diseñe y analice las conexiones de acero utilizando CBFEM, conforme a EN 1993‑1‑8 y AISC 360, totalmente integrado en RFEM 6 para flujos de trabajo estructurales más rápidos y precisos.

      Saber más
      Conexiones de acero Conexiones de acero
      Herramienta de Zona Geográfica

      El servicio en línea de Dlubal proporciona mapas de zonas para la determinación rápida de cargas de nieve, velocidades del viento y datos sísmicos.

      Zonas de carga
      Herramienta de visualización de la zona geográfica que muestra mapas de nieve, viento y sismicidad con ilustraciones para evaluaciones de cargas ambientales. Ilustración de mapas de geo-zonas de nieve, viento y sismicidad en una versión móvil que muestra varias regiones y datos.
      Productos anteriores
    • Soporte
      • Preguntas frecuentes (FAQ)
      • Base de conocimientos
      • Características de los productos
      • Licencias
      • Formular una pregunta particular
      • Nuestro equipo de soporte
      • Enviar característica o idea del programa
      • Preguntas frecuentes sobre licencias y autorizaciones
      • Informar de algún problema o error en el programa
      • Actualizaciones del programa
      • Problemas del programa
      • Fórmulas | ¡Las matemáticas son divertidas!
      Formación
      • Primeros pasos con RFEM
      • Primeros pasos con RSTAB
      • Formación en línea
      • Formación en Dlubal
      • Cursos de formación individuales
      • Vídeos
      • Vídeos de aprendizaje en línea
      • Webinarios - Aprenda en línea
      • Cursos en línea
      Servicio
      • Soporte técnico y servicio gratuitos
      • Extranet | Mi cuenta
      • Contrato de servicio
      • Herramienta de zonas geográficas para la determinación de cargas
      • Actualizaciones y nuevas versiones
      • Versiones anteriores de los programas
      Ventas
      • Tienda en línea
      • Nuestro equipo de ventas
      • Contactar con nuestro equipo de ventas
      • Solicitar demostración de producto en línea
      • ¿Por qué Dlubal Software?
      Asistente de soporte de IA
      • Mia, su asistente de inteligencia artificial las 24 horas
      • Descubra su asistente personal de IA
      Soporte técnico y servicio gratuitos

      ¿Necesitas ayuda? Accede a opciones de soporte gratuitas que incluyen asistencia de IA 24/7, soporte por correo electrónico y seminarios web.

      Ver más
      Soporte técnico y servicio gratuitos Soporte técnico y servicio gratuitos
      Encuentra respuestas rápidamente

      Encuentra respuestas rápidas a preguntas comunes sobre Dlubal Software. Busca o filtra cientos de preguntas frecuentes para resolver problemas en poco tiempo.

      Ver FAQ
      Preguntas frecuentes (FAQ) Preguntas frecuentes | Versión móvil
    • Novedades
      • Noticias actuales
      • Nuevas características de productos
      • Suscribirse al boletín de noticias
      • Nuevos programas
      • Blog de Dlubal
      Formación
      • Cursos de formación en línea
      • Formación individual
      Eventos
      • Resumen de eventos
      • Ferias y congresos
      • Webinarios
      Domina la ingeniería con seminarios web

      Únete a los líderes de la industria y explora soluciones en ingeniería estructural y software. ¡Mejora tus habilidades con nuestras sesiones en vivo!

      Ver seminarios web siguientes
      3D FEA Software RFEM 6 | First Steps Imagen de menú de banner | Seminarios web de noticias | Versión para móviles
      Desbloquea el poder de la innovación

      Descubre herramientas de vanguardia y mejoras diseñadas para impulsar tu flujo de trabajo de ingeniería.

      Explorar nuevas funciones
      Explore New Features Imagen del Banner de Menú | Novedades_CaracterísticasDelProducto | Versión Móvil
    • Descargar versión completa

      ¿Quiere probar las capacidades de los programas de Dlubal Software? ¡Tienes la oportunidad! Con la versión completa gratuita de 90 días, puede probar todos nuestros programas completamente y sin compromiso.

      Comenzar ahora con la versión de prueba
      Zona gratuita de Dlubal

      En la zona gratuita de Dlubal puede acceder a webinarios, artículos y versiones de prueba del software, todo de manera gratuita y en un solo lugar.

      Más información
      Ejemplos
      • Modelos de análisis estructural para descargar
      • Enviar modelo de análisis estructural
      • Ejemplos introductorios y tutoriales
      • Ejemplos de verificación
      • Vista general de imágenes
      Documentos
      • Manuales en línea
      • Manuales
      • Folletos, catálogos y certificados
      Referencias
      • Proyectos de clientes
      • ¿Por qué enviar su proyecto?
      • ¿Cómo presentar un proyecto de cliente?
      • Enviar un proyecto de cliente
      Modelos gratis para descargar

      Explora miles de modelos estructurales listos para usar. Descárgalos, adáptalos y úsalos como plantillas para acelerar tu proceso de diseño.

      Descubrir modelos
      Modelos de análisis estructural para descargar Modelos gratuitos para descargar | Versión móvil
      Espacio libre de Dlubal

      Obtén ayuda experta siempre que la necesites. Disfruta de asistencia gratuita de IA, soporte por correo electrónico, webinars en vivo y servicios premium para usuarios del Contrato de Servicio Pro.

      Obtener soporte
      Soporte técnico y servicio gratuitos Soporte técnico y servicio gratuitos | Versión móvil
    • Aprendizaje electrónico
      • RFEM 6 para principiantes
      • RFEM 6 para estudiantes
      • Programación con RFEM 6 y Python
      • RFEM 6 con Rhino y Grasshopper
      • RFEM 5 para principiantes
      • Modelado con RFEM 5
      • Lecciones de análisis de estructuras para estudiantes
      • Vídeo tutoriales cortos para los programas de Dlubal
      • Los mejores consejos y trucos en RFEM
      • Grabaciones de cursos en línea
      • Webinarios celebrados y grabados
      Estudiantes y universidades
      • Software de análisis estructural gratuito para estudiantes
      • Solicitar o renovar licencia de estudiante gratuita
      • Solicitud de licencia para profesores gratuita
      • Enviar tesis
      • ¿Por qué enviar tu tesis?
      • Tesis de graduación con el software de análisis estructural de Dlubal
      • Software de análisis de estructuras gratuito para universidades técnicas
      • Solicitar paquete para universidades técnicas
      • Curso introductorio gratuito en su universidad
      • Solicitar fecha de un curso
      Plataforma de conocimientos
      • Primeros pasos con RFEM
      • Vídeos
      • Manuales en línea
      • Wiki de ingeniería de estructuras
      • Base de datos de conocimientos
      • Preguntas frecuentes (FAQ)
      Infoentretenimiento
      • Pódcast
      • Blog de Dlubal
      • Introducción al análisis y diseño de estructuras
      Primeros pasos con RFEM 6

      Da tus primeros pasos con RFEM 6 y descubre lo rápido que puedes modelar y calcular. Personaliza con complementos para aún más posibilidades.

      Comenzar
      3D FEA Software RFEM 6 | First Steps Imagen de menú de banner | Seminarios web de noticias | Versión para móviles
      Software de análisis de estructuras gratuita para estudiantes

      Miles de estudiantes en todo el mundo ya se benefician del software de Dlubal. Disfruta de acceso gratuito, formación y soporte experto durante tus estudios.

      Obtener licencia gratuita
      Software de análisis de estructuras gratuito para estudiantes Software de análisis de estructuras gratis para estudiantes
    • Acerca de la empresa
      • Historia y hechos
      • Filosofía de la empresa
      • ¿Por qué Dlubal Software?
      • Comparación de productos
      • Política de calidad
      • Nuestro equipo
      Contacto
      • Oficinas de Dlubal en todo el mundo
      • Distribuidores autorizados de Dlubal
      Referencias
      • Opiniones de clientes
      • Proyectos de clientes
      • Casos de aplicación
      • ¿Por qué enviar su proyecto de cliente?
      • Ejemplos de verificación
      • Su reseña
      • Participación en proyectos de investigación
      Nuestros clientes

      Presentamos a los clientes que realizan sus proyectos con Dlubal Software. Descubra cómo nuestros clientes en todo el mundo implantan soluciones innovadoras en la construcción e ingeniería utilizando herramientas avanzadas para análisis estáticos y dinámicos.

      Ver clientes
      Éxito en la construcción juntos

      Descubra cómo los ingenieros líderes de todo el mundo confían en nuestras soluciones para elevar sus proyectos con nosotros.

      Ver nuestros clientes
      See Our Customers Imagen de banner de menú | Empresa_NuestrosClientes_Móvil
      Conozca a los expertos

      Nuestros ingenieros dedicados están aquí para ayudarte con la modelación, el diseño y los desafíos técnicos, en cualquier momento y lugar.

      Conectar con el soporte técnico
      Our Team Imagen de banner de menú | Empresa_Nuestro equipo | Versión móvil
    • Carrera
      • Empleos
      • Equipos
      • Blog del personal
      • Información
      Empleos
      • Todas las ofertas de trabajo
      • Desarrollo de productos
      • Soporte al cliente
      • Ventas
      • Marketing
      • Desarrollo de software
      • Administración
      • Estudiantes en prácticas
      • Otros
      Equipos
      • Desarrollo de productos
      • Atención al cliente
      • Ventas
      • Marketing
      • Desarrollo de software
      • Administración
      Por qué elegir Dlubal
      • Cultura empresarial
      • Beneficios para empleados
      Construya su futuro con nosotros

      Revela cómo nuestro equipo da forma al futuro de la ingeniería. Experimenta la innovación, el crecimiento y desafíos emocionantes.

      Carrera en Dlubal Imagen en banner de menú en la móvil | Carrera en Dlubal
      Encuentra el trabajo de tus sueños

      Únete a un líder mundial en software de ingeniería y lleva tu carrera a nuevos niveles.

      Explore las vacantes disponibles
      All Open Positions Imagen de banner de menú | Puestos vacantes para móvil
    • Tienda en línea
    Productos principales
    Icono que representa RFEM 6, una aplicación de software de análisis de elementos finitos.
    RFEM 6
    Icono de RSTAB 9 sin límites
    RSTAB 9
    Icono de RWIND 3 sin límites
    RWIND 3
    Icono de RSECTION 1 sin límites
    RSECTION
    Servicios en línea
    Icono de herramienta Geo-Zone
    Herramienta Geo-Zone Tool
    Propiedades de sección
    Propiedades de sección
    Ícono de API
    API
    Icono de cálculo en la nube
    Cálculo en la nube
    Modelos descargables
    Modelos para descargar
    Icono de la comunidad de Dlubal
    Comunidad de Dlubal
    Icono de artículos de la base de datos de conocimientos
    Base de datos de conocimiento
    Seminarios web en línea
    Seminarios web
    Inicie sesión en su cuenta

    Regístrese en el extranet de Dlubal para aprovechar al máximo el software y tener acceso exclusivo a sus datos personales.

    Iniciar sesión Crear cuenta
    Prueba gratuita de 90 días
    Inicie sesión en su cuenta

    Regístrese en el extranet de Dlubal para aprovechar al máximo el software y tener acceso exclusivo a sus datos personales.

    Iniciar sesión Crear cuenta
    • Productos
    • Análisis de estructuras de barras
    • Complementos para RSTAB 9
    • Cálculo y dimensionamiento
    • Cimentaciones de hormigón
    Icono de RSTAB 9 | Dlubal Software Cimentaciones de hormigón
    Manuales en línea
    • Manual en línea de RFEM 6 | Cimentaciones de hormigón
    • Manual en línea de RSTAB 9
    }
    calculator icon
    Precios
    Complemento Cimentaciones de hormigón para RSTAB 9
    • Cimentación de hormigón
    • Armadura
    • Estructuras de hormigón

    Complemento Cimentaciones de hormigón para RSTAB 9

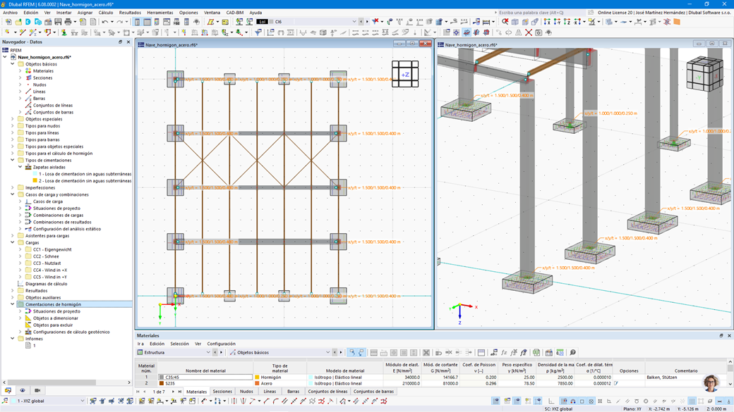
    El complemento de cimentaciones de hormigón para RSTAB 9 le permite diseñar zapatas de cimentación armadas y no armadas, así como cimentaciones de bloque y zapata corrida. Para las cimentaciones de bloque y zapata corrida, puede considerar superficies internas lisas o rugosas.

    El complemento ofrece una entrada intuitiva, visualización de alta calidad, cálculos conformes al Eurocódigo y opciones de control detalladas. Le permite un diseño rápido y eficiente de cimentaciones.

    Complemento de cimentaciones de hormigón | Imagen del control deslizante

    Nuevo complemento Cimientos de hormigón para RSTAB 9

    ¡Le presentamos: su solución todo en uno para el diseño completo de cimentaciones! El potente complemento Cimientos de Hormigón le ayuda en el diseño de losas de cimentación tanto armadas como no armadas, así como en cimientos de zapata y cimientos corridos. Está completamente integrado en RSTAB 9. Esto permite que el complemento asuma automáticamente los esfuerzos internos determinados en RSTAB y los actualice ante cambios en el modelo general.

    El complemento está diseñado para la eficiencia y realiza todas las verificaciones relevantes como punzonamiento, deslizamiento, etc.

    Ya sea en la edificación, en proyectos industriales o en la investigación, con RSTAB 9 y el complemento Cimientos de Hormigón podrá optimizar sus flujos de trabajo, ahorrar tiempo y obtener resultados precisos y confiables.

    Cimentación de hormigón modelada como bloque paramétrico en RFEM 6
    Cimentación de hormigón como bloque paramétrico

    ¡Amplíe su análisis estructural con el diseño de cimentaciones!

    Imagen de cimentación de hormigón con detalle de armadura visible para una mejor distribución de cargas

    ¡Desbloquee todo el potencial de su diseño de cimentaciones!

    • Cálculo de losas de cimentación de hormigón armado o en masa, así como de cimentaciones en bloque
    • Representación gráfica con renderizado
    • Cálculos geotécnicos según el Eurocódigo 7 (cálculo de fallo del terreno, cálculo por deslizamiento, así como el cálculo del estado de equilibrio, estado límite de levantamiento, carga altamente excéntrica y carga altamente excéntrica en el núcleo)
    • Salida de resultados en gráficos y tablas de la cantidad de armadura necesaria
    • Cálculo de hormigón armado según el Eurocódigo 2 (cálculo de flexión, punzonamiento y armaduras mínimas)
    • Comprobaciones detalladas del estado límite último y de servicio y detalles constructivos
    • Resultados de comprobaciones de diseño con fórmulas → ¡no hay ninguna caja negra, sino transparencia y trazabilidad!
    Descubrir características principales

    Descubra las potentes funciones del complemento RSTAB-9 que simplifican el dimensionamiento y la comprobación de los cimientos, garantizando la máxima seguridad y rendimiento.

    • Cimentaciones para estructuras híbridas

      Ya sea una columna de acero, hormigón, madera, etc., la cimentación se puede definir bajo cualquier material. También es posible definir cimentaciones bajo columnas de componentes de superficies.

    • Regulación exhaustiva del Eurocódigo

      Asegúrese de que sus diseños cumplan con las normas Eurocode 2 y 7, con pruebas detalladas de hormigón y geotécnicas, incluyendo punción, estabilidad de posición, etc.

    • Configuración de acordonamiento adaptable

      Ajuste los parámetros de dimensionamiento para cumplir con requisitos específicos del proyecto, ofreciendo así flexibilidad y un mayor control sobre los resultados de dimensionamiento y la verificación.

    • Integración completa en RSTAB 9

      El funcionamiento sin problemas dentro de RSTAB 9 hace que el software de terceros sea innecesario, reduciendo así errores y ahorrando tiempo. El complemento detecta automáticamente las dimensiones del objeto a soportar.

    Estructura de acero detallada sobre cimientos de hormigón macizos con elementos de conexión precisos
    Ilustración de cimentaciones de hormigón precisas y verificaciones geotécnicas de detalle según Eurocódigo 2 y 7
    Imagen de un pabellón de hormigón con cimientos de hormigón armado robustos en un contexto de construcción
    Estructura de acero detallada sobre cimientos de hormigón macizos con elementos de conexión precisos
    Icono de opiniones de clientes

    ¡Escuche lo que dicen nuestros clientes sobre los productos de Dlubal!

    Icono de soporte

    ¡Experimente Dlubal en vivo y organice una demostración del producto en línea!

    Icono de descarga

    Pruebe la versión completa de forma gratuita durante 90 días

    Enfoque

    • Creación de la estructura completa
    • Creación y asignación de una nueva cimentación a un apoyo de nodo
    • Definición de los datos de entrada en la interfaz de usuario intuitiva (RSTAB le ofrece la visualización gráfica instantánea de la topología)
    • Verificación de las configuraciones deseadas para el dimensionamiento (RSTAB le proporciona configuraciones comunes como estándar)
    • Inicio del cálculo
    • Evaluación de los resultados gráficamente, en tablas y en detalle
    • Impresión de tablas de resultados, gráficos (opcionalmente con armadura, impresión múltiple) y fórmulas de verificación (con referencia a las ecuaciones en la norma) en el informe de impresión
    Modelo de cálculo de RFEM 6 con cimentaciones de hormigón digitalizadas
    Interface de RSTAB 9 con un modelo de una estructura de pórtico de hormigón armado con cimentaciones
    Sus ventajas
    Pabellón de hormigón armado con cimentaciones de hormigón integradas y elementos estructurales detallados
    1. Una solución todo en uno

    Funciona a la perfección dentro del entorno de RFEM 6, por lo que no se requieren programas externos.

    Barra de hormigón con cimentación de hormigón armado para determinar la cantidad de armadura
    1. 2. Cálculo de armadura eficiente

    Determine fácilmente la cantidad exacta de armadura que necesita para sus cimentaciones.

    Interfaz para realizar verificaciones geotécnicas según Eurocódigo 7 a través de un complemento
    1. 3. Cálculo geotécnico integrado

    Realice las comprobaciones de diseño geotécnico requeridas según el Eurocódigo 7 en el complemento.

    Informe detallado con resultados visuales y numéricos del análisis de cimentaciones de hormigón
    1. 4. Resultados completos y claros

    Obtenga resultados detallados y comprensibles con una salida visual y numérica clara para una documentación completa.

    Tienda en línea

    ¡Configure su paquete de programas personalizado y descubra todos los precios en línea!

    • Familia de RFEM 6
    • Familia de RSTAB 9
    Ir a la tienda en línea

    Calcule su precio

    840,00 USD
    Importe total 840,00 USD
    Software de cálculo de estructuras y diseño
    Dlubal Software GmbH

    Am Zellweg 2
    93464 Tiefenbach
    Alemania

    Contáctenos
    +34 960 13 67 00 (hablamos español) [email protected]
    Soluciones
    • Estructuras de hormigón armado
    • Estructuras de acero
    • Estructuras de madera
    • Uniones de acero
    Productos
    • RFEM 6
    • RSTAB 9
    • RSECTION 1
    • RWIND 3
    Soporte
    • Preguntas frecuentes (FAQ)
    • Formular una pregunta particular
    • Mapas de carga de nieve, velocidad del viento y carga sísmica
    • Contactar con nuestro equipo de ventas
    Novedades
    • Suscribirse al boletín de noticias
    • Noticias actuales
    • Resumen de eventos
    • Cursos de formación en línea
    Recursos
    • Versión completa de prueba gratis
    • Enviar un proyecto de cliente
    • Proyectos de clientes
    • Manuales en línea
    Unirse a Dlubal
    Comunidad de Dlubal YouTube Facebook X LinkedIn Pinterest TikTok Instagram
    © 2001-2026 Dlubal Software GmbH | Todos los derechos reservados
    Nota legal
    Acerca de la empresa
    Mapa del sitio
    Idioma
    • Deutsch
    • English
    • Français
    • Español
    • Português
    • Italiano
    • Česky
    • Polski
    • Pусский
    • 中文(简体)