Community
    Bei Ihrem Konto anmelden

    Registrieren Sie sich für das Dlubal-Extranet, um die Software optimal zu nutzen und exklusiven Zugang zu Ihren persönlichen Daten zu erhalten.

    Konto erstellen
    Mit der Anmeldung erklären Sie sich mit den Nutzungs- und Kaufbestimmungen von Dlubal einverstanden. Bitte beachten Sie unsere Datenschutzerklärung und unseren Cookie-Hinweis.
    0
    Webshop
    Vertriebsteam kontaktieren
    Sprache
    • Deutsch
    • English
    • Français
    • Español
    • Português
    • Italiano
    • Česky
    • Polski
    • Pусский
    • 中文(简体)
    • Branchen
      • Stahlbetonbau
      • Spannbetonbau
      • Stahlbau
      • Holzbau
      • Mauerwerksbau
      • Aluminium- und Leichtbau
      • Gebäude
      • Industriebauten und Anlagenbau
      • Rohrleitungen
      • Brückenbau
      • Krane und Kranbahnen
      • Türme und Masten
      • Glasbau
      • Membranbau und Textilbau
      • Seil- und Seilnetzstrukturen
      • Laminat- und Sandwichtragwerke
      • Fliegende Bauten
      • Gerüst- und Regalbau
      • Offshore-Strukturen
      • Silos und Speicherbehälter
      • Erneuerbare-Energien-Anlagen
      • Solaranlagen & Montagesysteme
      • Schiffbau und Schwimmkörper
      • Fördertechnik
      • Bohrtechnik
      • Schwimmbäder, Spaßbäder und Freibäder
      • Containerbau
      • Bohrpfahlgründungen
      • Treppenkonstruktionen
      • Kraftwerksanlagen
      • Stahlwasserbau
      • Maschinenbau
      • Pneumatische Tragwerke
      Anwendungsbereiche
      • Tragwerksplanung
      • Finite-Elemente-Berechnungen (FEM)
      • Windsimulation & Windlastgenerierung
      • Spannungsberechnungen
      • Nichtlineare Berechnungen
      • Stabilitätsanalysen
      • Nichtlineare Beulanalysen
      • Wölbkrafttorsionsanalysen
      • Dynamische und seismische Analysen
      • Nichtlineare Dynamik
      • Pushover-Analysen
      • Formfindung und Zuschnitt
      • Stahlanschlüsse
      • BIM-orientierte Planung
      • Kaltgeformte Profile
      • Boden-Bauwerk-Interaktion
      • Fassadenstatik
      • Fundamente und Grundbau
      • Bauzustände
      • Brandschutz
      Normen
      • Eurocodes (EC)
      • Deutsche Normen (DIN)
      • Britische Normen (BS EN, BS)
      • Italienische Normen (NTC)
      • US-Normen
      • Kanadische Normen (CSA)
      • Australische Normen (AS)
      • Schweizer Normen (SIA)
      • Chinesische Normen (GB, HK)
      • Indische Normen (IS)
      • Mexikanische Normen (RCDF, CFE Sismo 15)
      • Russische Normen (SP)
      • Südafrikanische Normen (SANS)
      • Brasilianische Normen (NBR)
      Online-Dienste
      • Symbol für das Geo-Zonen-Tool im oberen Menü Schneelastzonen, Windzonen und Erdbebenzonen
      • Symbol für Cloud-Berechnung Cloud-Berechnungen
      • Symbol für Statik-Wiki Statik-Wiki
      • Symbol für Querschnittswerte von Stahl- und Holzprofilen Querschnittswerte von Stahlprofilen und Querschnitten
      Tragwerksplanung für Solaranlagen

      Dlubal Software unterstützt Sie bei der Erstellung und Überprüfung beliebiger Solar-Montagesysteme. Arbeiten Sie effizient mit Stahl-, Aluminium- und Betonkonstruktionen in einer einzigen Umgebung.

      Tools erkunden
      Solaranlagen Solaranlagen | Mobile Version
      Dlubal API

      Der neue Dlubal API-Dienst (gRPC) bietet Ihnen eine flexible Schnittstelle zur Statiksoftware auf Basis von Python und C# mit direktem Zugriff auf die gesamte Dlubal-Produktpalette.

      Einstieg mit API
      Hintergrund für die Hauptmenü-Banner-API Hintergrund für die Hauptmenü-Banner-API
    • Symbol für RFEM 6, eine Softwareanwendung zur Finite-Elemente-Analyse. RFEM 6 Die einzige FEA-Software, die Sie für Ihre Projekte brauchen

      RFEM 6 bildet die Basis der modularen Programmfamilie und dient zur Definition von Strukturen, Materialien und Einwirkungen für Platten-, Scheiben-, Schalen- und Stabtragwerke sowie für Volumen- und Kontaktelemente.

      Weitere Infos
      Add-On-Schaltersymbol Add-Ons
      • Zusätzliche Analysen
      • Dynamische Analysen
      • Sonderlösungen
      • Bemessung
      • Anschlüsse
      RSTAB 9-Symbol ohne Ränder RSTAB 9 Das ikonische Stabwerksprogramm

      Mit RSTAB 9 steht dem anspruchsvollen Tragwerksplaner eine 3D-Stabwerkssoftware zur Verfügung, die den Anforderungen im modernen Ingenieurbau gerecht wird und die den aktuellen Stand der Technik widerspiegelt.

      Weitere Infos
      Add-On-Schaltersymbol Add-Ons
      • Zusätzliche Analysen
      • Dynamische Analysen
      • Sonderlösungen
      • Bemessung
      RSECTION 1-Symbol ohne Ränder RSECTION 1 Benutzerdefinierte Querschnittsberechnungen

      RSECTION unterstützt Tragwerksplaner, indem es Profilkennwerte für unterschiedlichste Querschnitte ermittelt und eine anschließende Spannungsanalyse ermöglicht.

      Weitere Infos
      RWIND 3-Symbol ohne Ränder RWIND 3 CFD-Software für digitale Windkanäle

      RWIND 3 ist ein digitaler Windkanal zur Simulation von Windströmungen um beliebige Gebäudegeometrien und zur Berechnung der Windlasten auf deren Oberflächen.

      Weitere Infos
      API-Symbol Dlubal API Ihr Tor zur parametrischen Modellierung und Automatisierung

      Der neue Dlubal API-Service (gRPC) bietet Ihnen eine flexible Schnittstelle zur Statiksoftware auf Basis von Python und C#, mit direktem Zugriff auf die gesamte Dlubal-Produktpalette. Profitieren Sie von einer nahtlosen und leistungsstarken Integration in Ihre Dlubal-Software – ideal für parametrische Modellierung und komplexe Optimierungsaufgaben.

      API entdecken
      API-Dokumentation API Dokumentation
      • Index
      • Erste Schritte
      • Anwendungen
      • Modellobjekte
      • Abos & Preise
      • Beispiele
      FEM für Stahlverbindungen

      Entwerfen und analysieren Sie Stahlverbindungen mit CBFEM gemäß EN 1993-1-8 und AISC 360, vollständig integriert in RFEM 6 für schnellere und genauere Arbeitsabläufe in der Tragwerksplanung.

      Mehr erfahren
      Stahlverbindungen Stahlverbindungen
      Geo-Zonen-Tool

      Der Dlubal-Online-Dienst stellt Zonenpläne für die schnelle Ermittlung von Schneelasten, Windgeschwindigkeiten und seismischen Daten bereit.

      Lastzonen prüfen
      Geo-Zonen-Tool mit visueller Darstellung von Schnee-, Wind- und Erdbebenkarten mit Illustrationen für Umweltlastbewertungen. Illustration von Schnee-, Wind- und seismischen Geo-Zonen-Karten in einer mobilen Version, die verschiedene Regionen und Daten zeigt.
      Überholte Produkte
    • Support
      • Häufig gestellte Fragen (FAQs)
      • Knowledge Base
      • Produkt-Features
      • Lizenzierung
      • Individuelle Frage stellen
      • Unser Team für den Support
      • Gewünschte Funktion oder Idee einreichen
      • Problemlösungen zur Lizenzierung & Autorisierung
      • Problem oder Fehler melden
      • Programmaktualisierungen
      • Programmprobleme
      • Formeln | Mathematik macht Spaß!
      Schulungen
      • Erste Schritte mit RFEM
      • Erste Schritte mit RSTAB
      • Online Schulungen
      • Ausbildung in Dlubal
      • Individualschulungen
      • Videos
      • E-Learning-Videos
      • Webinare - online informieren und lernen
      • Online Kurse
      Service
      • Kostenloser Support / Service
      • Extranet | Mein Konto
      • Projektsupport
      • Servicevertrag
      • Geo-Zonen-Tool für Lastermittlung
      • Updates und Upgrades
      • Ältere Programmversionen
      Verkauf
      • Webshop
      • Unser Team für den Verkauf
      • Vertriebsteam kontaktieren
      • Online-Produktdemo vereinbaren
      • Warum Dlubal software
      KI Support Assistentin
      • Mia – Ihre KI-Assistentin rund um die Uhr
      • Entdecken Sie Ihre persönliche KI-Assistentin
      Kostenloser Support und Service

      Brauchen Sie Hilfe? Nutzen Sie unsere kostenlosen Support-Optionen, darunter KI-Unterstützung rund um die Uhr, E-Mail-Support und Webinare.

      Mehr erfahren
      Kostenloser Support und Service Kostenloser Support und Service
      Schnell Antworten finden

      Finden Sie schnelle Antworten auf häufig gestellte Fragen zu Dlubal Software. Durchsuchen oder filtern Sie Hunderte von FAQs, um Probleme im Handumdrehen zu lösen.

      FAQ anzeigen
      Häufig gestellte Fragen (FAQ) FAQ | Mobile Version
    • Neuigkeiten
      • Aktuelle Nachrichten
      • Neue Produkt-Features
      • Newsletter abonnieren
      • Neue Programme
      • Dlubal Blog
      Schulungen
      • Online-Schulungen
      • Individualschulungen
      Events
      • Veranstaltungsübersicht
      • Messen/Seminare
      • Webinare
      Meistern Sie das Ingenieurwesen mit Webinaren

      Schließen Sie sich Branchenführern an und entdecken Sie Lösungen im Bereich Tragwerksplanung und Software. Erweitern Sie Ihre Kenntnisse mit unseren Live-Veranstaltungen!

      Nächste Webinare anzeigen
      3D FEA Software RFEM 6 | First Steps Banner-Bild in Menü | News-Webinare | Mobile Version
      Entfesseln Sie die Kraft der Innovation

      Entdecken Sie innovative Tools und Verbesserungen, die Ihren technischen Arbeitsablauf optimieren.

      Neue Features entdecken
      Neue Features entdecken Menü-Bannerbild | News_ProductFeatures | Mobile Version
    • Vollversion herunterladen

      Möchtest du die Leistungsfähigkeit der Dlubal Software Programme ausprobieren? Du hast die Möglichkeit! Mit der kostenlosen 90-Tage-Vollversion kannst du alle unsere Programme vollständig testen.

      Jetzt Testversion starten
      Dlubal Gratisbereich

      Im Dlubal-Gratisbereich erhältst du Zugang zu Webinaren, Artikeln und Testmöglichkeiten der Software – alles kostenfrei und übersichtlich an einem Ort vereint.

      Weitere Infos
      Beispiele
      • Statikmodelle zum Herunterladen
      • Statikmodell einreichen
      • Einführungs- und Übungsbeispiele
      • Verifikationsbeispiele
      • Bilderübersicht
      Dokumente
      • Online-Handbücher
      • Handbücher
      • Prospekte, Broschüren und Zertifikate
      Referenzen
      • Kundenprojekte
      • Warum Kundenprojekt einreichen?
      • Wie Kundenprojekt einreichen?
      • Kundenprojekt einreichen
      Kostenlose Modelle zum Download

      Entdecken Sie Tausende gebrauchsfertige Strukturmodelle. Um Ihren Bemessungsprozess zu beschleunigen, können Sie diese herunterladen, anpassen und als Vorlagen verwenden.

      Modelle entdecken
      Statikmodelle zum Herunterladen Kostenlose Modelle zum Download - Mobile Version
      Kostenfreie Zone von Dlubal Software

      Sie können sich jederzeit fachkundig helfen lassen. Als Benutzer von Service Contract Pro profitieren Sie von kostenloser KI-Unterstützung, E-Mail-Support, Live-Webinaren und Premium-Diensten.

      Support erhalten
      Kostenloser Support & Service Kostenloser Support & Service | Mobile Version
    • E-Learning
      • RFEM 6 für Einsteiger
      • RFEM 6 für Studenten
      • Programmieren mit RFEM 6 und Python
      • RFEM 6 mit Rhino & Grasshopper
      • RFEM 5 für Einsteiger
      • Modellieren mit RFEM 5
      • Statik-Lernvideos für Studenten
      • Schnelle Tutorials für die Dlubal-Programme
      • Die besten Tipps und Tricks in RFEM
      • Aufzeichnungnen zu Dlubal-Online-Schulungen
      • Aufgezeichnete Dlubal-Webinare
      Studenten und Schulen
      • Statiksoftware für Studenten kostenlos
      • Kostenlose Studentenversion anfordern bzw. verlängern
      • Antrag auf kostenlose Version für Lehrkräfte
      • Abschlussarbeit einreichen
      • Warum Abschlussarbeit einreichen?
      • Abschlussarbeiten mit Dlubal-Statiksoftware
      • Statiksoftware für Hochschulen kostenlos
      • Schulpaket anfordern
      • Gratis-Einführungsschulung für Hochschulen
      • Schulungstermin anfordern
      Knowledge Platform
      • Erste Schritte mit RFEM
      • Videos
      • Online-Handbücher
      • Statik-Wiki
      • Knowledge Base
      • Häufig gestellte Fragen (FAQs)
      Infotainment
      • Podcast
      • Dlubal Blog
      • Einführung in die Tragwerksplanung
      Erste Schritte mit RFEM 6

      Machen Sie Ihre ersten Schritte mit RFEM 6 und entdecken Sie, wie schnell Sie Modelle erstellen und Berechnungen durchführen können. Passen Sie das Programm mit Add-Ons an, um noch mehr Funktionen zu nutzen.

      Erste Schritte
      3D FEA Software RFEM 6 | First Steps Banner-Bild in Menü | News-Webinare | Mobile Version
      Statiksoftware für Studenten gratis

      Tausende Studenten weltweit profitieren bereits von Dlubal Software. Genießen Sie während Ihres gesamten Studiums kostenlosen Zugang, Schulungen und kompetenten Support.

      Kostenlose Lizenz erhalten
      Statiksoftware für Studenten gratis Statiksoftware für Studenten gratis
    • Über uns
      • Historie und Zahlen
      • Firmenphilosophie
      • Warum Dlubal Software?
      • Produktvergleich
      • Qualitätspolitik
      • Unser Team
      Kontakt
      • Dlubal-Standorte weltweit
      • Autorisierte Dlubal-Reseller
      Referenzen
      • Kundenrezensionen
      • Kundenprojekte
      • Erfolgsgeschichten
      • Warum Kundenprojekt einreichen?
      • Verifikationsbeispiele
      • Ihre Rezension
      • Beteiligung an Forschungsprojekten
      Unsere Kunden

      Wir präsentieren unsere Kunden, die ihre Projekte mit Dlubal Software realisieren. Erfahren Sie, wie unsere Kunden weltweit innovative Lösungen im Bauwesen und Ingenieurwesen mithilfe fortschrittlicher Werkzeuge für statische und dynamische Analysen umsetzen.

      Unsere Kunden ansehen
      Gemeinsam Erfolg schaffen

      Entdecken Sie, wie führende Ingenieure weltweit auf unsere Lösungen vertrauen, um ihre Projekte gemeinsam mit uns voranzubringen.

      Unsere Kunden
      Unsere Kunden Menü-Bannerbild | Company_OurCustomers_Mobile
      Treffen Sie die Experten

      Unsere engagierten Ingenieure stehen Ihnen jederzeit und überall bei der Modellierung, Bemessung und bei technischen Herausforderungen zur Seite.

      Mit dem Support in Verbindung treten
      Unser Team Menü-Bannerbild | Unternehmen_Über-uns | Mobile Version
    • Karriere
      • Jobs
      • Teams
      • Mitarbeiter-Blog
      • Einblicke
      Jobs
      • Alle Offene Stellen
      • Produktentwicklung
      • Kundensupport
      • Vertrieb
      • Marketing
      • Softwareentwicklung
      • Administration
      • Praktikanten
      • Andere
      Teams
      • Produktentwicklung
      • Kundenservice
      • Vertrieb
      • Marketing
      • Softwareentwicklung
      • Administration
      Warum zu Dlubal?
      • Unternehmenskultur
      • Mitarbeitervorteile
      Gestalten Sie Ihre Zukunft mit uns

      Entdecken Sie, wie unser Team die Zukunft des Ingenieurwesens gestaltet. Erleben Sie Innovation, Wachstum und spannende Herausforderungen.

      Karriere bei Dlubal Menü-Bannerbild | Karriere bei Dlubal - Mobilversion
      Finden Sie Ihren Traumjob

      Werden Sie Teil eines weltweit führenden Anbieters von Ingenieursoftware und bringen Sie Ihre Karriere auf ein neues Niveau.

      Offene Stellen entdecken
      Alle offenen Stellen Menü-Bannerbild | Offene Stellen - Mobilversion
    • Webshop
    Hauptprodukte
    Symbol für RFEM 6, eine Softwareanwendung zur Finite-Elemente-Analyse.
    RFEM 6
    RSTAB 9-Symbol ohne Ränder
    RSTAB 9
    RWIND 3-Symbol ohne Ränder
    RWIND 3
    RSECTION 1-Symbol ohne Ränder
    RSECTION
    Online-Dienste
    Symbol für Geo-Zonen-Tool
    Geo-Zonen-Tool
    Querschnittswerte
    Querschnittswerte
    API-Symbol
    API
    Symbol für Cloud-Berechnung
    Cloud-Berechnung
    Herunterladbare Modelle
    Herunterladbare Modelle
    Symbol für Dlubal Community
    Dlubal Community
    Symbol für Knowledge Base-Artikel
    Knowledge Base
    Online-Webinare
    Webinare
    Bei Ihrem Konto anmelden

    Registrieren Sie sich für das Dlubal-Extranet, um die Software optimal zu nutzen und exklusiven Zugang zu Ihren persönlichen Daten zu erhalten.

    Anmelden Konto erstellen
    90 Tage kostenlos testen
    Bei Ihrem Konto anmelden

    Registrieren Sie sich für das Dlubal-Extranet, um die Software optimal zu nutzen und exklusiven Zugang zu Ihren persönlichen Daten zu erhalten.

    Anmelden Konto erstellen
    • Produkte
    • Stabwerksanalyse
    • Add-Ons für RSTAB 9
    • Bemessung
    • Betonfundamente
    RSTAB 9-Symbol | Dlubal Software Betonfundamente
    Online-Handbücher
    • Online-Handbücher RFEM 6 | Betonfundamente
    • Online-Handbuch RSTAB 9
    }
    calculator icon
    Preise
    Add-On Betonfundamente für RSTAB 9
    • Betonfundament
    • Bewehrung
    • Betonkonstruktionen

    Add-On Betonfundamente für RSTAB 9

    Das Add-On Betonfundamente für RSTAB 9 ermöglicht Ihnen die Bemessung von bewehrten und unbewehrten Fundamentplatten, Köcher- sowie Blockfundamenten. Für die Köcher- und Blockfundamente können Sie glatte oder raue Köcherinnenseiten berücksichtigen.

    Das Add-On bietet eine intuitive Eingabe, hochwertige Visualisierung, Eurocode-konforme Berechnungen sowie detaillierte Kontrollmöglichkeiten. Es erlaubt Ihnen eine schnelle und effiziente Auslegung von Fundamenten.

    Add-On Betonfundamente aktiviert werden | Schiebereglerbild

    Neues Add-On Betonfundamente für RSTAB 9

    Wir stellen vor: Ihre All-in-One-Lösung für lückenlose Fundamentbemessung! Das leistungsstarke Add-On Betonfundamente unterstützt Sie bei der Bemessung von sowohl bewehrten und unbewehrten Fundamentplatten als auch Köcher- und Blockfundamenten. Es ist vollständig in RSTAB 9 integriert. Dadurch übernimmt das Add-On automatisch die in RSTAB ermittelten Schnittgrößen und aktualisiert diese bei Änderungen am Gesamtmodell.

    Das Add-On ist auf Effizienz ausgelegt und führt sämtliche relevanten Nachweise wie Durchstanzen, Gleiten usw.

    Ob im Hochbau, bei Industrieprojekten oder der Forschung - mit RSTAB 9 und dem Add-On Betonfundamente lassen sich Ihre Arbeitsabläufe rationalisieren, Zeit sparen und präzise und zuverlässige Ergebnisse erzielen.

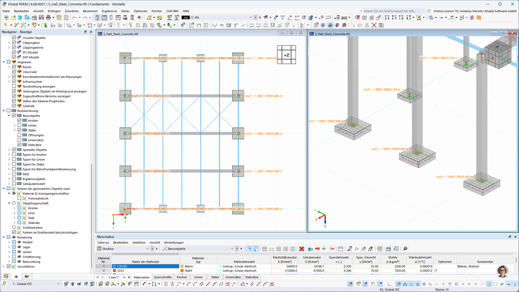
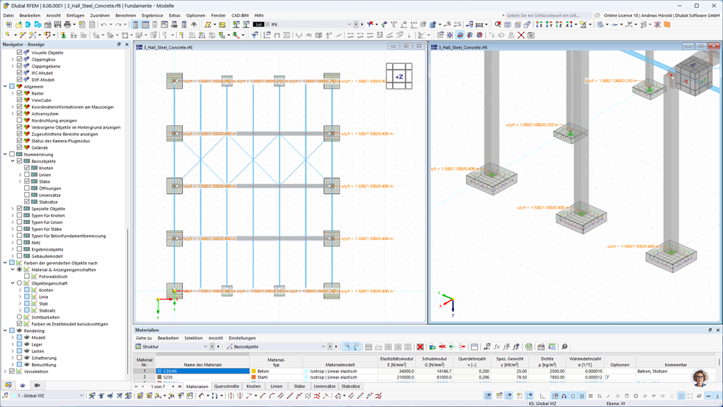
    Betonfundament modelliert als parametrischer Block in RFEM 6
    Betonfundament als parametrischer Block

    Erweitern Sie Ihre Statik um die Bemessung von Fundamenten!

    Bild eines Betonfundaments mit sichtbaren Bewehrungsdetails zur besseren Lastverteilung.

    Schöpfen Sie das volle Potenzial Ihrer Fundamentbemessung aus!

    • Bemessung von bewehrten und unbewehrten Fundamentplatten sowie Köcher- und Blockfundamenten
    • Grafische Darstellung mit Rendering
    • Geotechnische Nachweise nach Eurocode 7 (Grundbruchnachweis, Gleitnachweis sowie Nachweise der Lagesicherheit, gegen Aufschwimmen, stark exzentrischer Belastung, Fundamentverdrehung)
    • Grafische und tabellarische Ausgabe der erforderlichen Bewehrungsmengen
    • Stahlbetonnachweise nach Eurocode 2 (Biegebemessung, Durchstanzen, Mindestbewehrungen)
    • Detaillierte Nachweisführung in den Grenzzuständen der Tragfähigkeit, Gebrauchstauglichkeit und für konstruktive Details
    • Ausgabe von Nachweisen mit Formeln -> keine Black-Box, sondern Transparenz und Nachvollziehbarkeit!
    Entdecken Sie die wichtigsten Funktionen

    Entdecken Sie die leistungsstarken Funktionen des RSTAB-9-Add-Ons, welche die Bemessung und Nachweisführung von Fundamenten vereinfachen und maximale Sicherheit und Leistung gewährleisten.

    • Fundamente für Mischkonstruktionen

      Egal ob eine Stahl-, Beton-, Holzstütze usw., das Fundament kann unter sämtlichen Materialien definiert werden. Auch Fundamente unter Stützen aus Flächenkomponenten sind möglich.

    • Umfassende Eurocode-Normung

      Stellen Sie sicher, dass Ihre Entwürfe die Normen Eurocode 2 und 7 erfüllen, mit detaillierten Beton- und geotechnischen Nachweisen, einschließlich Durchstanzen, Lagesicherheit usw.

    • Anpassbare Bemessungseinstellungen

      Passen Sie die Bemessungsparameter an, um spezifische Projektanforderungen zu erfüllen, und bieten Sie so Flexibilität und eine größere Kontrolle über die Bemessungsergebnisse und Nachweise.

    • Vollständige Integration in RSTAB 9

      Der nahtlose Betrieb innerhalb von RSTAB 9 macht Software von Drittanbietern überflüssig, wodurch Fehler reduziert und Zeit gespart werden. Das Add-On erkennt automatisch die Abmessungen des zu unterstützenden Objektes.

    Detaillierte Stahlkonstruktion, auf massiven Betonfundamenten ruht, mit präzisen Verbindungselementen.
    Illustration von präzisen Betonfundamenten und geotechnischen Detailnachweisen gemäß Eurocode 2 und 7
    Bild einer Stahlbetonhalle mit robusten Stahlbetonfundamenten in einem baulichen Kontext.
    Detaillierte Stahlkonstruktion, auf massiven Betonfundamenten ruht, mit präzisen Verbindungselementen.
    Symbol für Kundenrezensionen

    Erfahren Sie, was unsere Kunden über Dlubal-Produkte sagen!

    Symbol für Kundensupport

    Erleben Sie Dlubal live und vereinbaren Sie eine Online-Produktdemo!

    Symbol für Download

    Testen Sie die Vollversion 90 Tage lang kostenfrei

    Vorgehensweise

    • Erstellung der Gesamtstruktur
    • Anlegen und Zuweisen eines neuen Fundamentes zu einem Knotenlager
    • Definition der Eingabedaten in der intuitiven Benutzeroberfläche (RSTAB bietet ihnen die sofortige grafische Visualisierung der Topologie)
    • Prüfen der gewünschten Konfigurationen für die Bemessung (RSTAB hält für Sie dazu gängige Einstellungen als Standard bereit)
    • Start der Berechnung
    • Auswertung der Ergebnisse grafisch, tabellarisch sowie in den Details
    • Druck von Ergebnistabellen, Grafiken (optional mit Bewehrung, Mehrfachdruck) und Nachweisformeln (mit Verweis auf Gleichungen in der Norm) in das Ausdruckprotokoll
    Digital modellierte Betonfundamente im RFEM 6 Berechnungsmodell
    RSTAB 9 Schnittstelle mit einem Modell einer Stahlbetonrahmenkonstruktion mit Fundamenten
    Ihre Vorteile
    Eine Stahlbetonhalle mit integrierten Betonfundamenten und detaillierten Strukturelementen.
    1. All-in-One-Lösung

    Funktioniert nahtlos innerhalb der RFEM-6-Umgebung, sodass keine externen Programme erforderlich sind.

    Betonstab gepaart mit einem bewehrten Fundament zur genauen Ermittlung der Bewehrungsmenge
    2. Effiziente Bewehrungsauslegung

    Ermitteln Sie ganz einfach die exakte Bewehrungsmenge, die Sie für Ihre Fundamente benötigen.

    Schnittstelle zur Durchführung von geotechnischen Nachweisen nach Eurocode 7 mittels Add-On
    3. Integrierte geotechnische Nachweise

    Führen Sie die erforderlichen geotechnischen Nachweise nach Eurocode 7 im Add-On durch.

    Detailliertes Ausdruckprotokoll mit visuellen und numerischen Ergebnissen für die Analyse von Betonfundamenten.
    4. Umfassende und übersichtliche Ausgabe

    Erhalten Sie detaillierte, nachvollziehbare Ergebnisse mit klaren visuellen und numerischen Ausgaben für eine lückenlose Dokumentation.

    Webshop

    Konfigurieren Sie Ihr individuelles Programmpaket und erfahren Sie alle Preise online!

    • RFEM-6-Familie
    • RSTAB-9-Familie
    Gehen Sie zum Webshop

    Berechnen Sie Ihren Preis

    840,00 USD
    Gesamtbetrag 840,00 USD
    Statik-Software für Statiker und Tragwerksplaner
    Dlubal Software GmbH

    Am Zellweg 2
    93464 Tiefenbach
    Deutschland

    Dlubal-Standorte
    Kontakt
    +49 9673 9203-0 [email protected]
    Lösungen
    • Stahlbetonbau
    • Stahlbau
    • Holzbau
    • Stahlanschlüsse
    Produkte
    • RFEM 6
    • RSTAB 9
    • RSECTION 1
    • RWIND 3
    Support
    • Häufig gestellte Fragen (FAQs)
    • Individuelle Frage stellen
    • Schneelastzonen, Windzonen und Erdbebenzonen
    • Vertriebsteam kontaktieren
    News
    • Newsletter abonnieren
    • Aktuelle Nachrichten
    • Veranstaltungsübersicht
    • Online-Schulungen
    Ressourcen
    • Vollversion zum Testen herunterladen
    • Kundenprojekt einreichen
    • Kundenprojekte
    • Online-Handbücher
    Werde auch Du Teil des Dlubal-Teams
    Dlubal Community YouTube Facebook Twitter LinkedIn Pinterest TikTok Instagram
    © 2001-2026 Dlubal Software GmbH | Alle Rechte vorbehalten
    Rechtliche Hinweise
    Über uns
    Sitemap
    Sprache
    • Deutsch
    • English
    • Français
    • Español
    • Português
    • Italiano
    • Česky
    • Polski
    • Pусский
    • 中文(简体)