15498x
001375
2016-12-12

Progettazione delle travi parete in RFEM

Quando si analizzano i componenti strutturali delle strutture in cemento armato, è spesso necessario progettare travi profonde. Questi sono utilizzati principalmente per architravi di porte e finestre, travi verticali e verticali, il collegamento tra solette a due livelli e sistemi di telai. Se sono visualizzate come superfici in RFEM, la valutazione dei risultati dell'armatura richiede ulteriori passaggi.

Sfondo

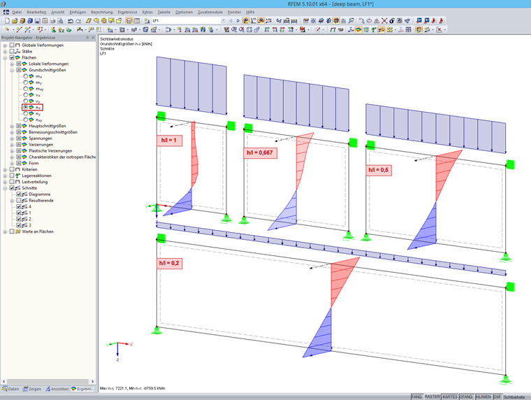
Il calcolo delle forze interne viene eseguito considerando il comportamento elastico del materiale. Eine Scheibe trägt ihre Biegung mit einem nichtlinearen Verlauf der Normalkraft ab. Dieser Verlauf ist je nach Verhältnis von Höhe (h) zu Länge (l) unterschiedlich ausgeprägt.

Desto kleiner h/l ist, desto mehr nähert sich der Verlauf einer Geraden an. Wird mit diesen Schnittgrößen eine Flächen-Bemessung durchgeführt, ergibt dies einen Verlauf der erforderlichen Längsbewehrung, der dem Zugkeil entspricht.

Diese Anordnung der Bewehrung ist jedoch nicht korrekt, da die Betonbemessung von einem gerissenen Zustand ausgeht. Die Dehnung der Bewehrung am unteren Rand könnte längst überschritten sein, während die oberen Bewehrungslagen nichts davon mitbekommen.
Generell gibt es in RFEM zwei Möglichkeiten für die Bemessung:

1. Auswertung anhand von Schnitten

2. Bemessung mithilfe eines Ergebnisstabes

Auswertung anhand von Schnitten

Diese Option sollte immer bei einem Verhältnis von h/l > 0,5 angewandt werden. Nach der Berechnung der erforderlichen Bewehrung mit dem Zusatzmodul RF-BETON Flächen, wird ein vertikaler Schnitt an den maßgebenden Stellen eingefügt.
Bei der Auswertung der Querkraftbewehrung ist der Maximalwert der vertikalen Bewehrung, zum Beispiel aus as,2,-z und as,2,+z, zu verwenden und ungeschwächt bis zur Trägeroberkante beidseitig einzulegen.
Für die Biegebewehrung kann im Dialogfenster des Schnittes in den Detaileinstellungen die Ergebnisinterpretation aktiviert werden. Aus beiden horizontalen Bewehrungen, zum Beispiel für as,1,-z und as,1,+z, müssen die Summengebildet werden. Die ermittelte Gesamt-Längsbewehrung ist konzentriert am unteren Querschnittsrand einzulegen.

Nach [1] sind folgende Punkte bei der Auswertung von elastischen Scheibenberechnungen zu befolgen:

  • Konzentrierte Anordnung der Feldbewehrung am unteren Rand
  • Die Feldbewehrung ist über die gesamte Länge zu verlegen und für eine Kraft von 80 % an den Auflagern zu verankern.
  • Bei Mehrfeldträgern sind gerade Bewehrungsstäbe mit entsprechender Übergreifungslänge anzuordnen.
  • Bei Mehrfeldträgern ist die Hälfte der Stützbewehrung über die gesamte Stützweite anzuordnen. Der Rest ist beidseitig bis zu einer Länge von L/3 über den Lagerrand ohne zusätzliche Verankerungslänge hinauszuführen.
  • Unten angreifende Lasten inklusive des Eigengewichts, die zwischen einem gedachten Halbkreis mit dem Radius 0,5 L (L < H) angreifen, sind komplett durch eine Aufhängebewehrung abzutragen. Die Aufhängebewehrung ist auf einer Höhe L < H zu führen.

Bemessung mithilfe eines Ergebnisstabes

Diese Möglichkeit darf erst ab einem Verhältnis von h/l < 0,5 angewandt werden, da sonst der Hebelarm zu günstig angenommen wird. Für die Ergebnisauswertung und Bemessung wird ein horizontaler Ergebnisstab im Schwerpunkt der Fläche eingefügt. Es wird ein Rechteckquerschnitt mit den Abmessungen des wandartigen Trägers definiert. In den Detaileinstellungen des Ergebnisstabes sollte dann nur die entsprechende Fläche gewählt werden. Im Zusatzmodul RF-BETON Stäbe kann nun eine Stabbemessung am Ergebnisstab mit den aufintegrierten Schnittgrößen des wandartigen Trägers durchgeführt werden.

Interpretation und Zusammenfassung

Beide Ergebnisse können je nach Geometrie und Belastung stark voneinander abweichen. Die Hauptursache liegt in der unterschiedlichen Annahme der Hebelarme in der Bemessung. Bei der Flächenbemessung ergibt sich ein kleinerer Hebelarm in der Dehnungsverteilung und somit resultiert daraus eine größere erforderliche Bewehrung.
Die Vorgehensweise mit dem Ergebnisstab erspart das Anlegen von mehreren Schnitten und die manuelle Ermittlung der Biegebewehrung. Zudem wird dabei die Bewehrung korrekt angeordnet.

Letteratura

[1] Rombach G.: Anwendung der Finite-Elemente-Methode im Betonbau. Berlino: Wilhelm Ernst & Sohn, 2010


Autore

Il Sig. Fröhlich fornisce supporto tecnico ai nostri clienti ed è responsabile dello sviluppo nel settore delle strutture in cemento armato.

Link
Download


;