901x
004599
06-08-2020

Análisis de tensiones en SHAPE-THIN

¿Cómo puedo calcular las tensiones en SHAPE-THIN?


Respuesta:

Si desea calcular tensiones en SHAPE-THIN, es necesario crear al menos un caso de carga. Ein neuer Lastfall kann angelegt werden über:

  • Menü "Einfügen" → "Belastung" → "Neuer Lastfall"
  • Kontextmenü des Navigatoreintrags "Lastfälle"
  • Eingabe in Tabelle "2.1 Lastfälle"

Des Weiteren müssen Schnittgrößen definiert werden. Schnittgrößen können eingegeben werden über:

  • Menü "Einfügen" → "Belastung" → "3.1 Schnittgrößen" → "Dialog"
  • Eingabe in Tabelle "3.1 Schnittgrößen"
  • Import der Stabschnittgrößen aus RSTAB oder RFEM in Tabelle "3.1 Schnittgrößen"

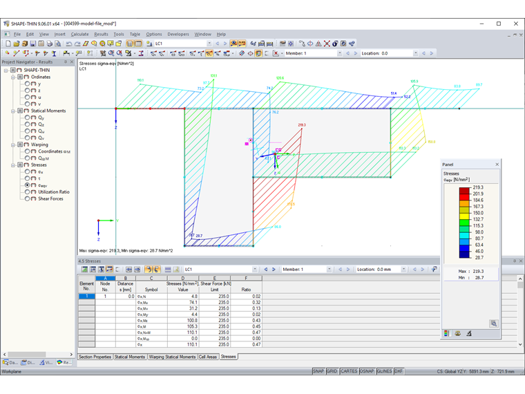
Nach der Berechnung können die Spannungen grafisch und tabellarisch ausgegeben werden (siehe Bild). Dies wird auch im Video gezeigt.


Autor

Sra. von Bloh proporciona soporte técnico a nuestros clientes y es responsable del desarrollo del programa SHAPE-THIN, así como de las estructuras de acero y aluminio.

Descargas


;