899x
004599
6.8.2020

Analýza napětí v programu SHAPE-THIN

Jak je možné spočítat napětí v programu SHAPE-THIN?


Odpověď:

Pokud chceme v programu SHAPE-THIN spočítat napětí, je nutné nejdříve vytvořit alespoň jeden zatěžovací stav. Nový zatěžovací stav je možné vytvořit pomocí:

  • nabídky "Vložit" → "Zatížení" → "Nový zatěžovací stav",
  • místní nabídky položky navigátoru "Zatěžovací stavy",
  • zadáním v tabulce "2.1 Zatěžovací stavy".

Kromě toho je třeba definovat vnitřní síly. Vnitřní síly je možné zadat pomocí:

  • nabídky "Vložit" → "Zatížení" → "3.1 Vnitřní síly" → "Dialog",
  • zadáním v tabulce "3.1 Vnitřní síly",
  • importem vnitřních sil z programu RSTAB nebo RFEM do Tabulky "3.1 Vnitřní síly".

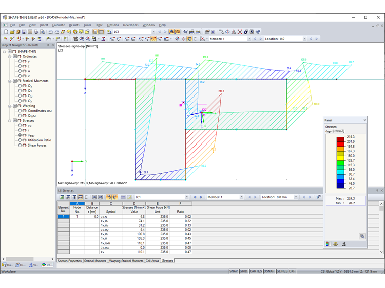
Po výpočtu lze napětí zobrazit graficky a v tabulkách (viz obrázek). Na postup je možné se podívat v připojeném videu.


Autor

Ing. von Bloh zajišťuje technickou podporu zákazníkům a je zodpovědná za vývoj programu RSECTION a addonů pro ocelové a hliníkové konstrukce.

Stahování


;