899x
004599
06.08.2020

Analyse des contraintes dans SHAPE-THIN

Comment calculer les contraintes dans SHAPE-THIN ?


Réponse:

Si vous souhaitez calculer les contraintes dans SHAPE-THIN, vous devez créer au moins un cas de charge. Vous pouvez créer un nouveau cas de charge à l'aide de :

  • Menu « Insérer » → « Charges » → « Nouveau cas de charge »
  • Menu contextuel de l'entrée « Cas de charge » du navigateur
  • Entrée dans le tableau « 2.1 Cas de charge »

De plus, il est nécessaire de définir les efforts internes. Vous pouvez entrer les efforts internes à l'aide de :

  • Menu « Inserer » → « Charges » → « 3.1 Efforts internes » → « Boîte de dialogue »
  • Entrée dans le tableau « 3.1 Efforts internes »
  • Importation des efforts internes de RFEM ou RSTAB dans le tableau « 3.1 Efforts internes »

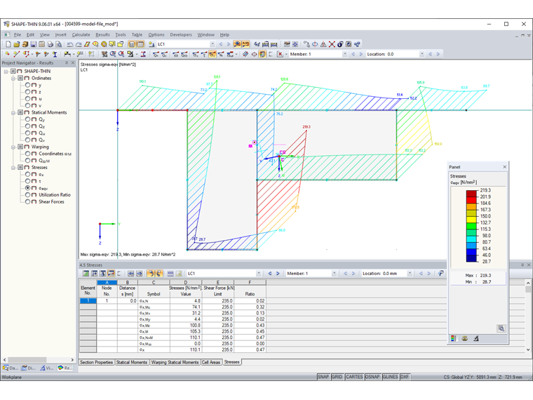
Après le calcul, vous pouvez afficher les contraintes graphiquement et sous forme de tableau (voir la figure ci-contre). Cette opération est expliquée dans la vidéo.


Auteur

Mme von Bloh fournit une assistance technique à nos utilisateurs et est également responsable du développement du programme SHAPE-THIN et de la construction en acier et en aluminium.

Téléchargements


;