899x
004599
2020-08-06

Stress Analysis in SHAPE-THIN

How can I calculate stresses in SHAPE‑THIN?


Answer:

If you want to calculate stresses in SHAPE‑THIN, it is necessary to create at least one load case. You can create a new load case using:

  • Menu "Insert" → "Loads" → "New Load Case"
  • Shortcut menu of the "Load Cases" entry in the navigator
  • Entry in Table "2.1 Load Cases"

Furthermore, it is necessary to define internal forces. You can enter the internal forces using:

  • Menu "Insert" → "Loads" → "3.1 Internal Forces" → "Dialog Box"
  • Entry in Table "3.1 Internal Forces"
  • Import of internal forces from RFEM or RSTAB in Table "3.1 Internal Forces"

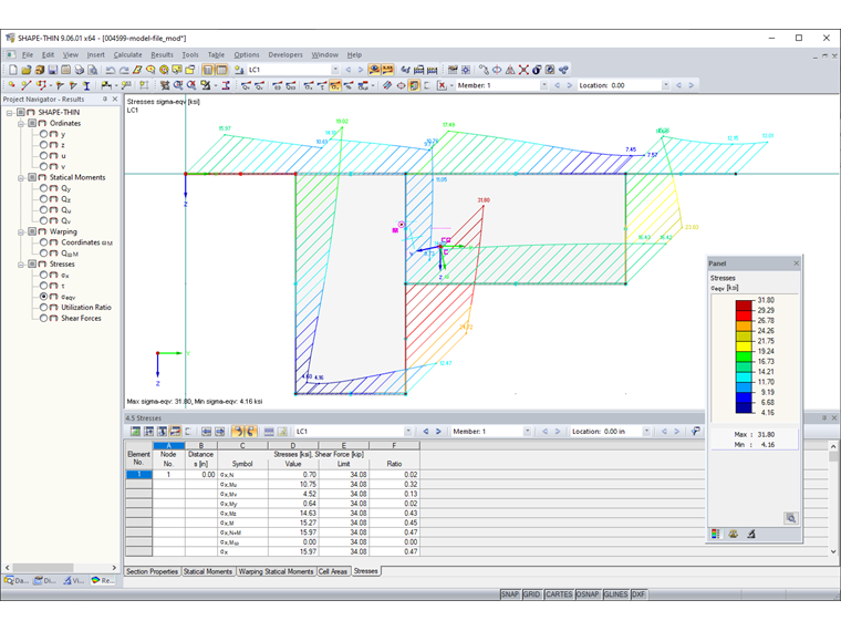
After the calculation, you can display the stresses graphically and in tables (see the image). This is also shown in the video.


Author

Ms. von Bloh provides technical support for our customers and is responsible for the development of the SHAPE‑THIN program as well as steel and aluminum structures.

Downloads


;