455x
002974
2025-05-28

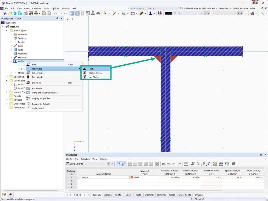
Definizione della sezione con saldature a cordoni d'angolo

Nel programma per sezioni RSECTION, hai la possibilità di definire saldature (saldature d'angolo, saldature d'angolo esterne, saldature di sovrapposizione) per sezioni a parete sottile. È possibile calcolare le tensioni delle saldature per queste.



;