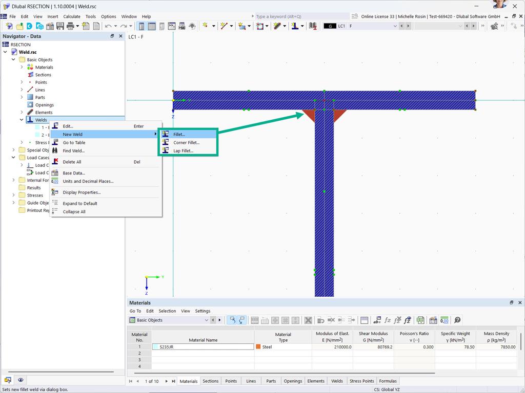
V programu průřezů RSECTION máte možnost definovat svary (koutové svary, rohové koutové svary, přesahové koutové svary) pro tenkostěnné průřezy. Pro tyto svary lze vypočítat napětí ve svarech.
Zadání průřezu se svary
;
Zaregistrujte se do extranetu Dlubal, abyste získali většinu softwaru a měli exkluzivní přístup k vašim osobním údajům.
Zaregistrujte se do extranetu Dlubal, abyste získali většinu softwaru a měli exkluzivní přístup k vašim osobním údajům.
Zaregistrujte se do extranetu Dlubal, abyste získali většinu softwaru a měli exkluzivní přístup k vašim osobním údajům.
V programu průřezů RSECTION máte možnost definovat svary (koutové svary, rohové koutové svary, přesahové koutové svary) pro tenkostěnné průřezy. Pro tyto svary lze vypočítat napětí ve svarech.