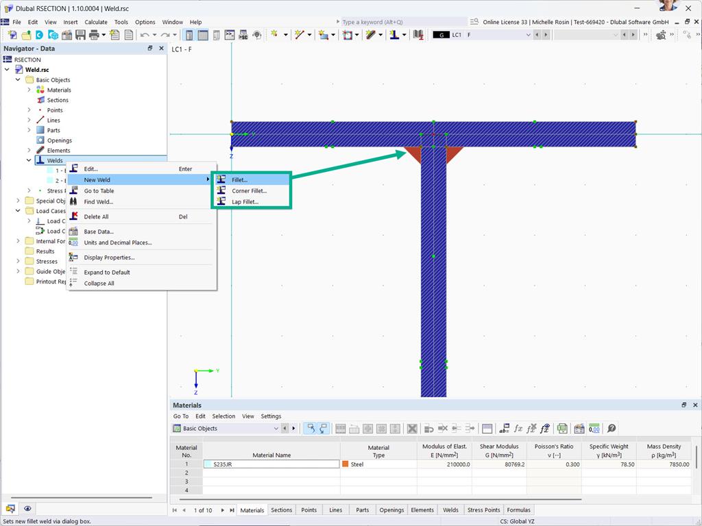
In the RSECTION cross-section program, you can define welds (fillet welds, corner fillet welds, lap fillet welds) for thin-walled cross-sections. Weld stresses can be calculated for these welds.
Cross-Section Definition with Welds
;
Sign up for the Dlubal Extranet to get most of the software and have exclusive access to your personal data.
Sign up for the Dlubal Extranet to get most of the software and have exclusive access to your personal data.
Sign up for the Dlubal Extranet to get most of the software and have exclusive access to your personal data.
In the RSECTION cross-section program, you can define welds (fillet welds, corner fillet welds, lap fillet welds) for thin-walled cross-sections. Weld stresses can be calculated for these welds.