1963x
002517
26.2.2019

Stanovení účinných průřezových charakteristik podle EC 3 nebo EC 9 v programu SHAPE-THIN

Jak mohu pomocí programu SHAPE-THIN stanovit účinné průřezové charakteristiky podle EC 3 nebo EC 9?


Odpověď:

V základních údajích průřezu aktivujte možnost "c/t-části a účinné průřezové charakteristiky". Kliknutím na tlačítko "Parametry výpočtu" otevřete dialog se stejným názvem. V druhé záložce definujte požadovanou normu (viz Obrázek 01).

Poté je nutné zadat prvky průřezu. C/t-části se obvykle vytvářejí automaticky z geometrických podmínek, ale lze je také vytvořit uživatelsky v Tabulce 1.7 Části průřezu pro klasifikaci nebo v příslušném dialogu (viz Obrázek 02).

V tabulce 2.1 Zatěžovací stavy (viz Obrázek 03) nebo v dialogu "Upravit zatěžovací stavy a kombinace" je možné zadat vnitřní síly v tabulce 3.1 resp. v dialogu "Upravit místo X" (viz Obrázek 04).


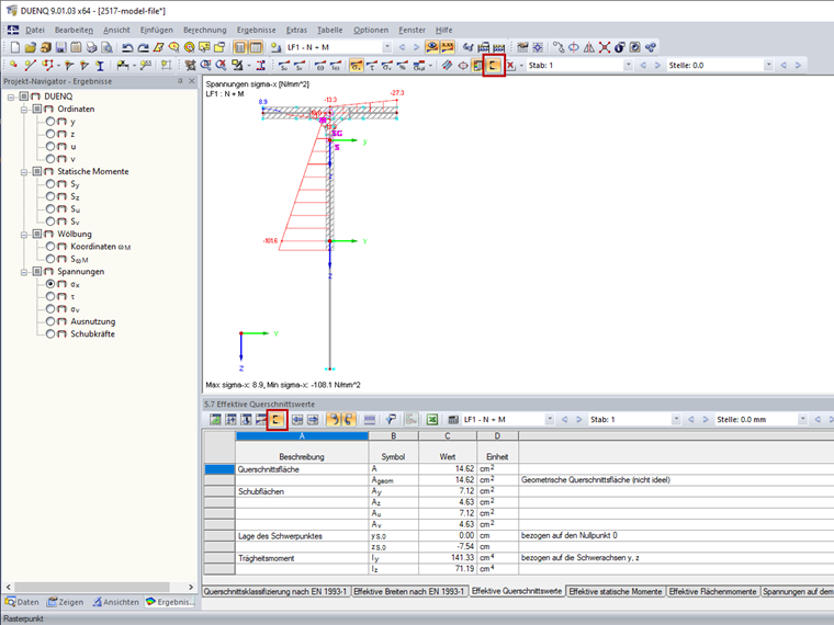
Po výpočtu jsou výsledky účinného průřezu k dispozici po kliknutí na tlačítko "Účinné části" (obrázek 5).


Autor

Ing. von Bloh zajišťuje technickou podporu zákazníkům a je zodpovědná za vývoj programu RSECTION a addonů pro ocelové a hliníkové konstrukce.

Stahování


;