1963x
002517
2019-02-26

Determinazione delle proprietà della sezione trasversale efficace secondo EC 3 o EC 9 in SHAPE‑THIN

Come posso determinare le proprietà efficaci della sezione trasversale secondo EC 3 o EC 9 con SHAPE‑THIN?


Risposta:

Attivare l'opzione "Parti c/t e proprietà della sezione trasversale efficace" nei Dati generali della sezione trasversale. Quindi, fare clic sul pulsante "Parametri di calcolo" per aprire la finestra di dialogo con lo stesso nome. Nella seconda scheda, è possibile specificare la norma desiderata (Figura 01).

Quindi, è necessario inserire gli elementi della sezione trasversale. Le parti c/t sono generalmente generate automaticamente dalle condizioni geometriche; tuttavia, possono essere create come definite dall'utente nella Tabella 1.7 Parti della sezione trasversale per la classificazione o nella finestra di dialogo corrispondente.

Quindi, definisci un caso di carico nella Tabella 2.1 Casi di carico (Figura 03) o nella finestra di dialogo "Modifica casi e combinazioni di carico" e le forze interne nella Tabella 3.1 o nella finestra di dialogo "Modifica posizione x" (Figura 04).


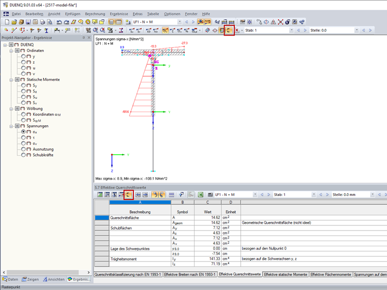
Dopo il calcolo, i risultati della sezione trasversale efficace sono disponibili quando si fa clic sul pulsante "Parti efficaci" (Figura 5).


Autore

La signora von Bloh fornisce supporto tecnico per i nostri clienti ed è responsabile dello sviluppo del programma SHAPE‑THIN e delle strutture in acciaio e alluminio.

Download


;