1963x
002517
26-02-2019

Determinación de las propiedades de la sección eficaz según EC 3 o EC 9 en SHAPE-THIN

¿Cómo puedo determinar las propiedades de la sección eficaz según EC 3 o EC 9 con SHAPE-THIN?


Respuesta:

Active la opción "Partes c/t y propiedades de la sección eficaz" en los Datos generales de la sección. Über die Schaltfläche "Berechnungsparameter" können Sie dann den gleichnamigen Dialog aufrufen. Im zweiten Register legen Sie die gewünschte Norm fest (Bild 1).

Es sind dann die Elemente des Querschnitts einzugeben. Die c/t-Teile werden in der Regel automatisch aus den Geometriebedingungen erzeugt, können aber auch benutzerdefiniert in Tabelle 1.7 Querschnittsteile für Klassifizierung oder dem entsprechenden Dialog angelegt werden (Bild 2).

In Tabelle 2.1 Lastfälle (Bild 3) bzw. im Dialog "Lastfälle und Kombinationen bearbeiten" ist dann ein Lastfall und in Tabelle 3.1 bzw. im Dialog "X-Stelle bearbeiten" sind dann die Schnittgrößen zu definieren (Bild 4).


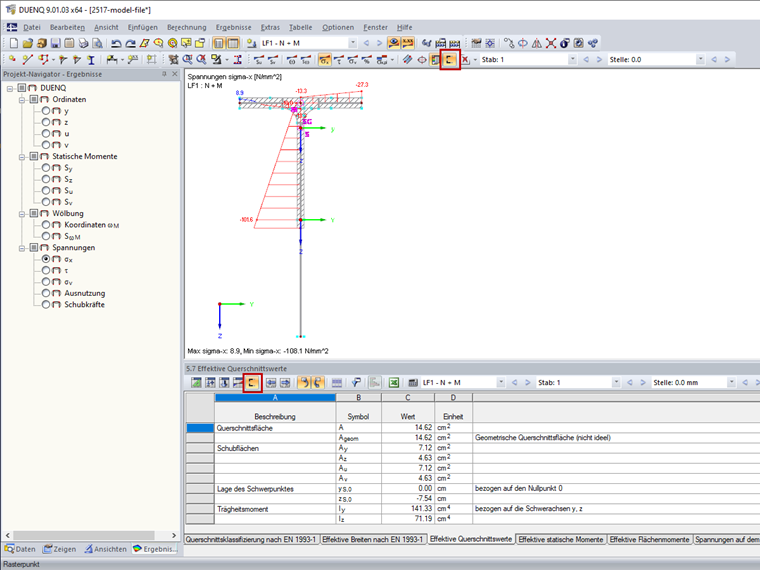
Die Ergebnisse des wirksamen Querschnitts sind nach der Berechnung mit der Schaltfläche Effektive Breiten zugänglich (Bild 5).


Autor

Sra. von Bloh proporciona soporte técnico a nuestros clientes y es responsable del desarrollo del programa SHAPE-THIN, así como de las estructuras de acero y aluminio.

Descargas


;