1963x
002517
26. Februar 2019

Ermittlung der wirksamen Querschnittswerte nach EC 3 oder EC 9 in DUENQ

Wie kann ich mit DUENQ die wirksamen Querschnittswerte nach EC 3 oder EC 9 ermitteln?


Antwort:

Aktivieren Sie in den Basisangaben des Querschnitts die Option "c/t-Teile und wirksame Querschnittswerte". Über die Schaltfläche "Berechnungsparameter" können Sie dann den gleichnamigen Dialog aufrufen. Im zweiten Register legen Sie die gewünschte Norm fest (Bild 1).

Es sind dann die Elemente des Querschnitts einzugeben. Die c/t-Teile werden in der Regel automatisch aus den Geometriebedingungen erzeugt, können aber auch benutzerdefiniert in Tabelle 1.7 Querschnittsteile für Klassifizierung oder dem entsprechenden Dialog angelegt werden (Bild 2).

In Tabelle 2.1 Lastfälle (Bild 3) bzw. im Dialog "Lastfälle und Kombinationen bearbeiten" ist dann ein Lastfall und in Tabelle 3.1 bzw. im Dialog "X-Stelle bearbeiten" sind dann die Schnittgrößen zu definieren (Bild 4).


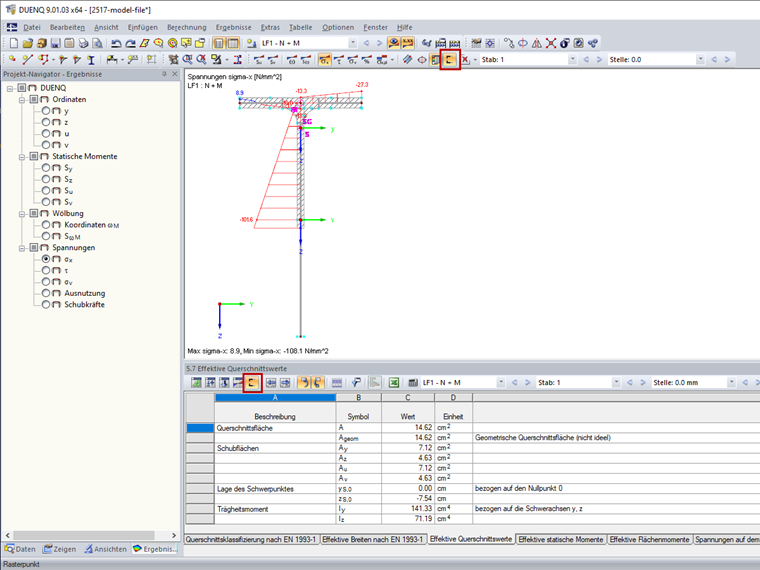
Die Ergebnisse des wirksamen Querschnitts sind nach der Berechnung mit der Schaltfläche Effektive Breiten zugänglich (Bild 5).


Autor

Frau von Bloh bietet im Kundensupport Hilfestellung für unsere Anwender und ist zudem für die Entwicklung des Programms RSECTION sowie für den Stahl- und Aluminiumbau zuständig.

Downloads


;