1180x
004514
2020-07-14

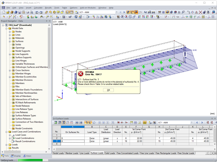
Errore nr. 10417 per il carico superficiale

Dopo aver avviato il calcolo, il programma fornisce l'errore nr. 10417 per il carico della superficie 3. Cosa posso fare?


Risposta:

Il problema è che l'entità del carico sulla superficie 4 è definita dai nodi (11,15,16) situati sulla superficie 2. Program tyto uzly hledá v ploše č. 4 a tam je nenachází, výsledkem je chybové hlášení. Uzly definující velikost zatížení je třeba změnit (viz video).


Autore

Ing. Martinec si occupa del servizio clienti e delle licenze per studenti nell'ufficio ceco.



;