1180x
004514
14. Juli 2020

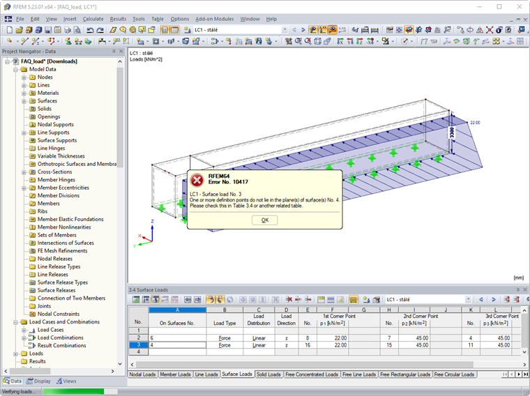
Fehler Nr. 10417 bei der Flächenlast

Nach dem Start der Berechnung gibt das Programm die Fehlermeldung Nr. 10417 für Flächenlast 3 aus. Was kann ich tun?


Antwort:

Das Problem besteht darin, dass die Größe der Last auf Fläche Nr. 4 durch die Knoten (11,15,16) definiert wird, die sich auf Fläche Nr. 2 befinden. Das Programm sucht nach diesen Knoten in Fläche Nr. 4 und findet sie dort nicht, was zu der Fehlermeldung führt. Es ist daher notwendig, die Knoten zu ändern, die die Lastgröße definieren (siehe Video).


Autor

Herr Martinec arbeitet am Standort in Tschechien und ist zuständig für den Kundenservice und die Studentenlizenzen.



;