2574x
000614
2018-07-09

Torre tra gli alberi di Lipno, Repubblica Ceca

Nell'estate del 2012 è stato inaugurato a Lipno il primo sentiero sopraelevato della Repubblica Ceca. Alla passerella lunga 675 m si collega la torre panoramica.

Da un'altezza di 675 m e 40 m di altezza, dalla piattaforma superiore di questa torre panoramica, si può godere della vista sul Parco nazionale della Selva Boema e sul bacino idrico della Moldava.

La torre dell'albero

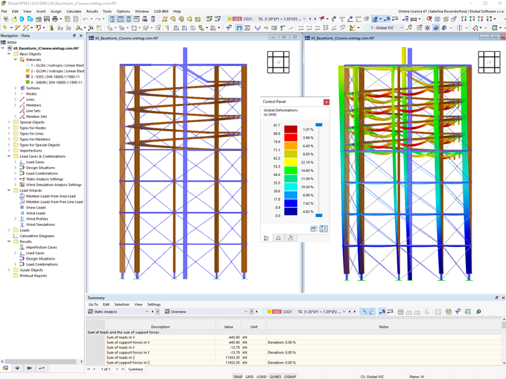
La costruzione consiste in un anello esterno di nove pilastri in legno lamellare, posizionati in modo simmetrico con una differenza angolare di 40° ciascuno, formando così una costruzione spaziale poligonale.

Al centro della torre si trova un pilone d'acciaio formato da un tubo rotondo. A questo è fissata una scala a chiocciola in acciaio con griglie e uno scivolo a tunnel. Il pilone è collegato alla torre in due punti, a 24 m e a 40,175 m di altezza.

Si accede alla torre sia dal percorso a livello delle cime degli alberi a 24 m di altezza sia dal suolo tramite la scala a chiocciola. La piattaforma panoramica è raggiungibile tramite una costruzione a spirale in legno, fissata ai pilastri in legno tramite mensole in acciaio.

Il rinforzo della struttura avviene attraverso una fitta rete di aste diagonali in acciaio, ancorate ai pilastri in legno. Nella parte inferiore sono state disposte inoltre quattro strutture ad anello orizzontali in tubi d'acciaio.

Pianificazione strutturale
Architetto
Cliente


Specifiche del progetto

Dati modello

Numero di nodi 493
Numero di linee 866
Numero di aste 866
Numero di superfici 0
Numero di solidi 0
Numero di casi di carico 11
Nr. di combinazioni di carico 198
Nr. di combinazioni di risultati 0
Peso totale 170,732 t
Dimensioni (metriche) 24,217 x 44,100 x 24,591 m
Dimensioni (imperiali) 79.45 x 144.69 x 80.68 feet

Hai delle domande?