3491x
001749
11-07-2022

Parametrización de modelos en RFEM 6/RSTAB 9

Los programas RFEM y RSTAB proporcionan la entrada de datos parametrizada como una característica ventajosa del producto para crear o ajustar modelos por medio de variables. Este artículo le mostrará cómo definir parámetros globales y usarlos en fórmulas para determinar valores numéricos.

Este artículo le mostrará cómo parametrizar el elemento de arriostramiento de la celda de la cercha que se muestra en el modelo.

Assuming that the structure has already been modeled in RFEM 6 by assigning members and defining boundary conditions as shown in Image 1, the next step is to define the bracing. Como se mencionó anteriormente, este elemento se definirá mediante una entrada de datos parametrizada. De esta manera, los parámetros se pueden optimizar más tarde y el programa puede determinar automáticamente la posición óptima del elemento.

First, you can create intermediate nodes on both the top (Member 2) and bottom (Member 3) chords and connect them with a simple line. Para definir estos nudos, haga clic con el botón derecho en la barra individual → dividir barra → n nudos intermedios. It is important to create the nodes without literally dividing the members; therefore, you should select the associated check box as shown in Image 2.

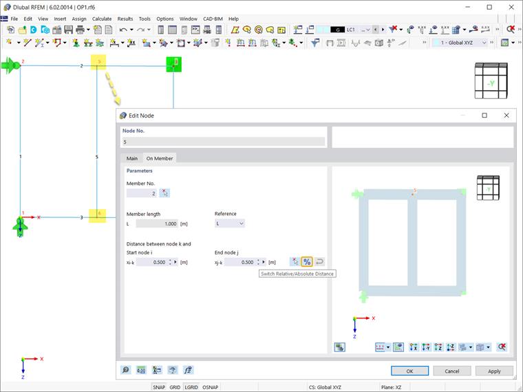
Al hacerlo, puede ver en las propiedades de los nudos que tienen el tipo "En barra", y la barra permanece como un elemento completo. Dado que la barra individual ha sido dividida por un nudo intermedio, la distancia relativa entre el nudo creado y los nudos inicial y final de la barra es del 50%. Sin embargo, los cuatro campos de entrada son interactivos y, además de esta especificación relativa, puede introducir el valor como una distancia absoluta (es decir, la longitud).

Ahora puede comenzar a asignar los parámetros a través del menú Edición → Parámetros globales. Las variables a definir son del grupo unitario “longitud”, ya que nos interesa posicionar el elemento de arriostramiento que está representado por la posición de sus nudos en los cordones superior e inferior.

Hence, you can define the parameters as shown in Image 4; one for the upper (Xtop), and another for the lower chord (Xbottom). De esta forma, la posición de los nudos se definirá con respecto a los valores específicos asignados a estos parámetros.

Una vez definidos los parámetros, puede utilizarlos en fórmulas para determinar los valores numéricos. Esto se puede hacer en la ventana "Edición" de los nudos individuales, donde puede usar el editor de fórmulas para escribir una fórmula para determinar la distancia de un nudo al nudo inicial de la barra.

For instance, the equation shown in Image 5 indicates that this length will be calculated as the value of the parameter Xtop added to 0.5 m. Given that Xtop was initially set to 0, the equation results in 0.5, meaning that the node will stay at a distance of 0.5 m (Image 6).

La ventaja de la entrada parametrizada es que si se cambia un parámetro en la lista de parámetros, se modifican los resultados de todas las fórmulas que utilizan este parámetro. Thus, if you reopen the Global Parameters list and set the value of Xtop as 0.1, the distance of the node with respect to the start node of the member will automatically change to 0.6 (Xtop + 0.5) and the node will be moved as shown in Image 7.


You can go a step further and utilize other advantages of the formula editor, such as inserting an object property in the equation, as shown in Image 8.

Utilice el icono asociado para abrir la lista grande de propiedades del objeto y sus subcategorías, y seleccione la que le interese. Por ejemplo, puede seleccionar la coordenada_1, que es la coordenada X cartesiana de un nodo. You can indicate the associated node in the formula text box, as shown in Image 9.

In this example, we are interested in calculating the distance of Node 5 with respect to the X coordinate of Node 3. This means that if Node 3 is displaced and its X coordinate is changed, the position of Node 5 will be automatically modified, since this object property is included in the formula.

Este artículo le ha mostrado cómo definir parámetros globales y usarlos en fórmulas para determinar valores numéricos. Estos parámetros también se pueden optimizar según diferentes aspectos, que serán el tema de un futuro artículo de la base de conocimientos.


Autor

La Sra. Kirova es responsable de la creación de artículos técnicos y proporciona soporte técnico a los clientes de Dlubal.

Enlaces


;