3528x
001749
11. Juli 2022

Modelle in RFEM 6/RSTAB 9 parametrisieren

Als vorteilhaftes Produktmerkmal bieten RFEM- und RSTAB-Programme parametrisierte Eingaben, um Modelle über Variablen zu bilden oder anzupassen. In diesem Beitrag erfahren Sie, wie Sie globale Parameter definieren und diese in Formeln zur Ermittlung von Zahlenwerten verwenden.

In diesem Beitrag wird gezeigt, wie Sie das Verbandselement des im Modell dargestellten Fachelements parametrisieren.

Unter der Annahme, dass das Tragwerk bereits in RFEM 6 durch Zuweisung von Stäben und Definition der Randbedingungen wie in Bild 1 dargestellt modelliert wurde, ist der nächste Schritt, den Verband zu definieren. Wie bereits erwähnt, wird dieses Element über eine parametrisierte Eingabe definiert. So können später die Parameter optimiert werden und das Programm kann automatisch die optimale Position des Elements ermitteln.

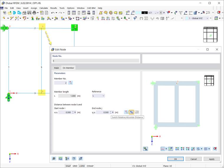
Zunächst können sowohl am Obergurt (Stab 2) als auch am Untergurt (Stab 3) Zwischenknoten erzeugt und mit einer einfachen Linie verbunden werden. Um diese Knoten zu definieren, klicken Sie mit der rechten Maustaste auf Einzelstab → Stab teilen → n Zwischenknoten. Es ist wichtig, die Knoten zu erzeugen, ohne die Stäbe buchstäblich zu teilen; daher sollte das zugehörige Kontrollfeld wie in Bild 2 gezeigt aktiviert werden.

Damit kann man in den Eigenschaften der Knoten erkennen, dass diese vom Typ „Am Stab“ sind und der Stab ein ganzes Element bleibt. Da der Einzelstab durch einen Zwischenknoten geteilt wurde, beträgt der relative Abstand zwischen dem erzeugten Knoten und dem Anfangs- und Endknoten des Stabes 50 %. Die vier Eingabefelder sind jedoch interaktiv und zusätzlich zu dieser relativen Angabe kann der Wert als absoluter Abstand (also Länge) eingegeben werden.

Nun kann über das Bearbeiten-Menü → Globale Parameter mit der Parametrisierung begonnen werden. Die zu definierenden Variablen stammen aus der Einheitengruppe "Länge", da wir die Positionierung des Verbandes brauchen, der durch die Lage seiner Knoten am Ober- und Untergurt repräsentiert wird.

Somit können die Parameter wie in Bild 4 gezeigt festgelegt werden; einen für den Obergurt (Xoben) und einen weiteren für den Untergurt (Xunten). Auf diese Weise wird die Position der Knoten in Bezug auf die spezifischen Werte festgelegt, die diesen Parametern zugewiesen sind.

Sind die Parameter einmal definiert, können daraus in Formeln die Zahlenwerte ermittelt werden. Dies kann in der Maske „Bearbeiten“ der einzelnen Knoten erfolgen, wo mit dem Formeleditor eine Formel zur Ermittlung des Abstands des Knotens zum Anfangsknoten des Stabes erstellt werden kann.

Die Gleichung in Bild 5 zeigt beispielsweise, dass diese Länge als Wert des Parameters Xoben addiert zu 0,5 m berechnet wird. Da Xoben zunächst auf 0 gesetzt wurde, ergibt sich für die Gleichung 0,5, was bedeutet, dass der Knoten in einem Abstand von 0,5 m bleibt (Bild 6).

Die parametrisierte Eingabe hat den Vorteil, dass bei einer Änderung eines Parameters in der Parameterliste die Ergebnisse aller Formeln, die diesen Parameter verwenden, geändert werden. Wenn Sie also die Liste 'Globale Parameter' erneut öffnen und den Wert von Xoben auf 0,1 setzen, ändert sich der Abstand des Knotens zum Anfangsknoten des Stabes automatisch auf 0,6 (Xoben + 0.5) und der Knoten wird verschoben, wie in Bild 7 gezeigt.


Sie können noch einen Schritt weiter gehen und weitere Vorteile des Formeleditors nutzen, z.B. das Einfügen einer Objekteigenschaft in die Gleichung, wie in Bild 8 gezeigt.

Öffnen Sie über das zugehörige Symbol die große Liste der Objekteigenschaften und deren Unterkategorien und wählen Sie die gewünschte aus. Sie können beispielsweise Koordinate_1 wählen, was die kartesische X-Koordinate eines Knotens ist. Den zugehörigen Knoten können Sie im Formeltextfeld angeben, wie in Bild 9 gezeigt.

In diesem Beispiel wollen wir den Abstand des Knotens 5 in Bezug auf die X-Koordinate des Knotens 3 berechnen. Dies bedeutet, dass bei einer Verschiebung von Knoten 3 und einer Änderung seiner X-Koordinate automatisch die Position von Knoten 5 geändert wird, da diese Objekteigenschaft in die Formel einbezogen wird.

In diesem Beitrag wurde gezeigt, wie Sie globale Parameter definieren und in Formeln verwenden, um Zahlenwerte zu ermitteln. Diese Parameter können auch nach verschiedenen Aspekten optimiert werden, was Thema eines zukünftigen Knowledge Base-Artikels sein wird.


Autor

Frau Kirova ist bei Dlubal zuständig für die Erstellung von technischen Fachbeiträgen und unterstützt unsere Anwender im Kundensupport.

Links


;