3492x
001749
11.07.2022

Paramétrage des modèles dans RFEM 6 / RSTAB 9

Les logiciels RFEM et RSTAB fournissent une entrée paramétrée comme fonctionnalité de produit avantageuse. Celle-ci vous permet de créer ou ajuster des modèles à l’aide de variables. Dans cet article, nous vous expliquons comment définir des paramètres globaux et les utiliser dans des formules pour déterminer des valeurs numériques.

Dans cet article, nous vous expliquons comment paramétrer l’élément de contreventement de la cellule de treillis affichée dans le modèle.

En supposant que la structure a déjà été modélisée dans RFEM 6 en assignant des barres et en définissant les conditions aux limites comme le montre la Figure 2, l’étape suivante consiste à définir le contreventement. Comme mentionné précédemment, cet élément sera défini à l’aide d’une entrée paramétrée. Les paramètres peuvent ainsi être optimisés ultérieurement et le logiciel peut déterminer automatiquement la position optimale de l’élément.

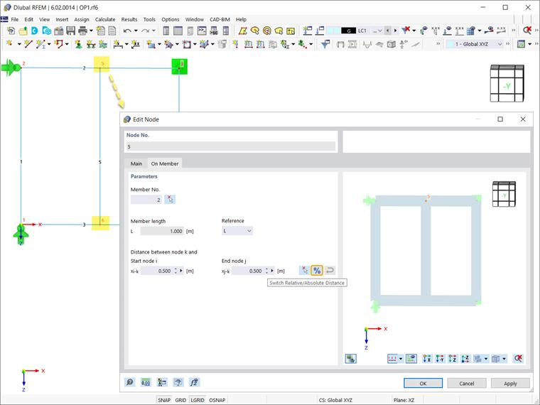
Tout d’abord, vous pouvez créer des nœuds intermédiaires sur les membrures supérieure (barre 2) et inférieure (barre 3) et les connecter à l’aide d’une ligne simple. Pour définir ces nœuds, cliquez-droit sur barre individuelle → diviser la barre → n nœuds intermédiaires. Il est important de créer les nœuds sans diviser littéralement les barres. Par conséquent, vous devez cocher la case associée, comme le montre la Figure 3.

Vous pouvez ainsi voir dans les propriétés des nœuds qu’ils sont de type « Sur la barre » et que la barre reste un élément entier. Étant donné que la barre individuelle a été divisée par un nœud intermédiaire, la distance relative entre le nœud créé et les nœuds de début et de fin de la barre est de 50 %. Cependant, les quatre champs de saisie sont interactifs et, en plus de cette spécification relative, vous pouvez entrer la valeur sous forme de distance absolue (c’est-à-dire de longueur).

Vous pouvez maintenant commencer à assigner les paramètres via le menu Modifier → Paramètres globaux. Les variables à définir appartiennent au groupe d’unités « longueur », car nous souhaitons positionner l’élément de contreventement représenté par la position de ses nœuds sur les membrures supérieure et inférieure.

Vous pouvez donc définir les paramètres comme le montre la Figure 5 ; une pour la membrure supérieure (Xhaut) et une autre pour la membrure inférieure (Xbas). La position des nœuds sera ainsi définie par rapport aux valeurs spécifiques assignées à ces paramètres.

Une fois les paramètres définis, vous pouvez les utiliser dans des formules pour déterminer les valeurs numériques. Vous pouvez faire cela dans la fenêtre « Modifier » des nœuds individuels, où vous pouvez utiliser l’éditeur de formules pour écrire une formule pour déterminer la distance du nœud au nœud de départ de la barre.

Par exemple, l’équation de la Figure 5 indique que cette longueur sera calculée comme la valeur du paramètre Xhaut ajoutée à 0,5 m. Étant donné que Xhaut était initialement défini à 0, l’équation donne 0,5, ce qui signifie que le nœud restera à une distance de 0,5 m (Figure 6).

L’avantage de l’entrée paramétrée est que si un paramètre est modifié dans la liste des paramètres, les résultats de toutes les formules utilisant ce paramètre sont modifiés. Ainsi, si vous rouvrez la liste des paramètres globaux et définissez la valeur de Xhaut sur 0,1, la distance du nœud par rapport au nœud de départ de la barre passera automatiquement à 0,6 (Xhaut + 0,5) et le nœud sera déplacé comme le montre la Figure 7.


Vous pouvez aller encore plus loin et profiter d’autres avantages de l’éditeur de formules, tels que l’insertion d’une propriété d’objet dans l’équation, comme le montre la Figure 8.

Utilisez l’icône associée pour ouvrir la vaste liste des propriétés d’objet et de leurs sous-catégories, puis sélectionnez celle qui vous intéresse. Par exemple, vous pouvez sélectionner coordonnée_1, qui est la coordonnée cartésienne X d’un nœud. Vous pouvez indiquer le nœud associé dans la zone de texte de la formule, comme le montre la Figure 9.

Dans cet exemple, nous souhaitons calculer la distance du nœud 5 par rapport à la coordonnée X du nœud 3. Cela signifie que si le nœud 3 est déplacé et que sa coordonnée X est modifiée, la position du nœud 5 sera automatiquement modifiée, car cette propriété d’objet est incluse dans la formule.

Dans cet article, nous vous avons expliqué comment définir des paramètres globaux et les utiliser dans des formules pour déterminer des valeurs numériques. Ces paramètres peuvent également être optimisés selon différents aspects. Nous aborderons ce sujet dans un futur article technique.


Auteur

Elle est responsable de la création d'articles techniques et fournit un support technique aux clients de Dlubal Software.

Liens


;