1223x
001962
29-08-2025

Verificaciones plásticas de secciones mediante el método de los esfuerzos internos parciales

Este artículo aborda la verificación plástica de secciones de acero de pared delgada mediante el método de los esfuerzos internos parciales. Tras un breve resumen de los fundamentos, se muestra la aplicación del método mediante un ejemplo.

Es estructras de acero, la secciones se pueden calcular plásticamente si cumplen con ciertos criterios (en el Eurocódigo 3, estos requisitos están asociados, por ejemplo, con las clases de sección transversal 1 y 2). Esto significa que las tensiones pueden redistribuirse mediante la fluencia del material base en la sección transversal. Mientras que las fórmulas para el cálculo de los límites plásticos de las secciones solo son válidas para ciertos tipos de secciones y combinaciones de fuerzas en las normativas habituales de construcción de acero, el método de los esfuerzos internos parciales (PSFM) es casi universalmente aplicable. Así, por ejemplo, es posible dimensionar económicamente elementos que experimenten esfuerzos normales, de flexión y torsión mixta (incluyendo torsión de alabeo). El método de los esfuerzos internos parciales ahora también está disponible para el usuario en RFEM 6 y RSTAB 9 bajo las "reglas de cálculo plástico avanzadas" (ver configuración del estado límite último del complemento "Cálculo de acero").

El método de los esfuerzos internos parciales (PSFM) fue desarrollado por Kindmann y Frickel en la Universidad Ruhr de Bochum (Alemania) y se describe en detalle en [1]. Hay dos variantes diferentes implementadas en el programa:

1. Método de los esfuerzos internos parciales con redistribución

El método con redistribución es adecuado para secciones transversales de 2 y 3 láminas con partes de la sección orientadas ortogonalmente, cubriendo así las formas de perfiles abiertos más importantes en las estructuras de acero. Se implementan soluciones adicionales para secciones de perfiles huecos rectangulares y circulares, de manera que este método puede utilizarse para calcular y dimensionar los siguientes tipos de secciones transversales:

  • Perfiles I simétricos/ dobles no simétricos/ simples
  • Perfiles U/T/Z/L
  • Perfiles PI (Tipo A)
  • Perfiles huecos rectangulares (RHS)/ cuadrados (SHS) simétricos en cajón y huecos
  • Perfiles huecos circulares (CHS)

El procedimiento para la comprobación plástica con el método de los esfuerzos internos parciales con redistribución es el siguiente:

  1. Transformación de los esfuerzos internos desde el cálculo estructural a un sistema de referencia específico (ȳ-z̄) (el origen para los perfiles I se sitúa, por ejemplo, en el centro del alma)
  2. Distribución y comprobación de los esfuerzos internos que causan tensiones tangenciales (esfuerzos cortantes y momentos de torsión) a nivel de subelemento de la sección
  3. Distribución y comprobación de los esfuerzos internos que causan flexión local en los subelementos de la sección ortogonal a la parte de la sección de referencia (por ejemplo, el alma para perfiles I). El límite de fluencia se reduce aquí debido a las tensiones tangenciales actuantes derivadas del paso 2.
  4. Comprobación de la capacidad de carga restante de la sección para esfuerzos internos que causan flexión en las partes de la sección de la sección paralela a la parte de referencia (por ejemplo, el alma para perfiles I) más la fuerza normal.

Es importante notar que la comprobación de la capacidad de carga de la sección no se realiza con el estado completamente plástico. En su lugar, en el paso 4, se verifica mediante una distinción de casos si los esfuerzos internos están dentro de un intervalo de valores específico y si pueden ser absorbidos por la sección. Por lo tanto, el aprovechamiento resultante de la comprobación de la sección generalmente no es proporcional a la acción y solo indica el éxito (aprovechamiento menor o igual que 1) o el fracaso (aprovechamiento mayor que 1) de las comprobaciones de la sección.

2. Método de los esfuerzos internos parciales sin redistribución

Este método [1] es, en principio, adecuado para todos los tipos de secciones de paredes delgadas. El procedimiento para esta variante de la comprobación es el siguiente:

  1. División de la sección transversal en sus elementos. Se pueden ingresar valores límites para la relación longitud-anchura a partir de los cuales un elemento debe considerarse para el dimensionamiento.
  2. Determinación de los esfuerzos internos en cada para de sección sobre la base de las tensiones elásticas en los extremos de las partes
  3. Verificación de los esfuerzos internos determinados frente a las capacidades plásticas de las secciones de las partes

Por lo tanto, los esfuerzos internos parciales se calculan aquí en función de la distribución de las tensiones elásticas en cada parte de la sección. Solo se considera una redistribución plástica de la carga dentro de las partes, no entre ellas. Aun así, en comparación con un dimensionamiento puramente elástico, a menudo se pueden lograr resultados significativamente más económicos.

Para evitar sobrecargar la salida de datos, en el complemento Cálculo de acero, para cada punto de diseño, solo se presenta el resultado de cálculo de la parte con más razón de tensiones.

Ejemplo de comprobación de sección con el método de los esfuerzos internos parciales

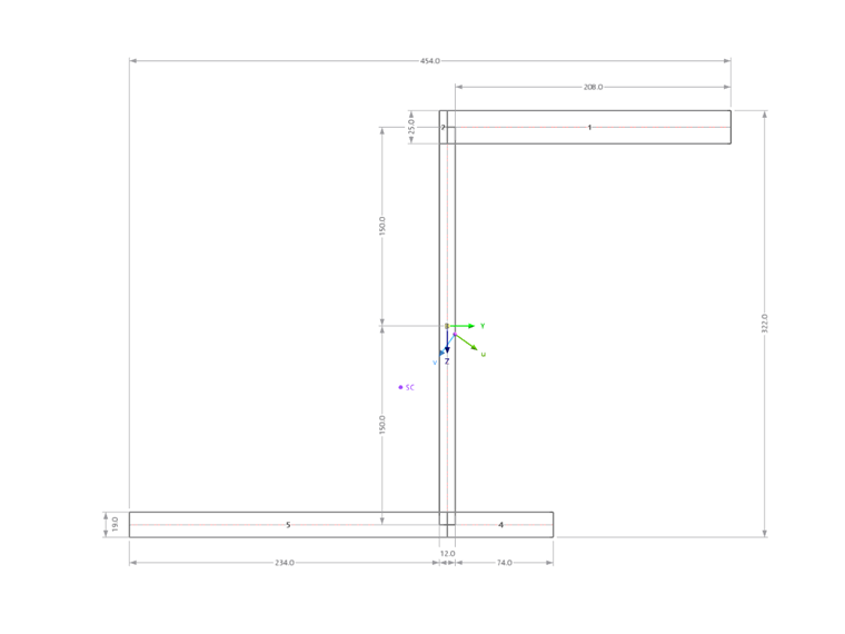
El ejemplo elegido también se trata en [1], en el apartado 10.7.6, y muestra muy claramente la efectividad del método de los esfuerzos internos parciales. Incluso para secciones asimétricas (aquí IU 322/0/208/234/74/12/25/19/0/0/0/0, fy = 240 N/mm²) con tensión general (fuerza normal + flexión doble + torsión mixta) se puede realizar una comprobación plástica de la sección:

Carga en el sistema de ejes principales (100%)
N 400 kN
Vu "-400" kN
Vv 200 kN
MT,pri 4 kNm
MT,sec 50 kNm
Mu 300 kNm
Mv 40 kNm
Mω 2.5 kNm²

1. Método de los esfuerzos internos parciales con redistribución

Debido a pequeñas desviaciones en la carga y la geometría de la sección, la comprobación de flexión del alma inferior en el complemento Cálculo de acero se sobrepasa ligeramente, mientras que en [1] resulta en un aprovechamiento del 100%. Para poder explicar completamente el concepto de la comprobación en este punto, los esfuerzos internos de la Tabla 1 se reducen en 2.5% y se calculan con un factor de carga del 97.5%.

En el primer paso, los esferzos internos del sistema principal de ejes (u-v) se transforman al sistema de referencia (ȳ-z̄). El sistema de referencia tiene su origen en el centro de la placa del alma y también coincide en orientación con el sistema de coordenadas global (Y-Z) de la figura 2. La inclinación de los ejes principales α aquí es 35.5°:

Vȳ = Vu * cos(α) - Vv * sin(α) = -430.8 kN

V = Vv * cos(α) + Vu * sin(α) = -67.6 kN

Mx̄s = Mxs - Vu * vM-D + Vv * uM-D = 70.4 kNm

Mȳ = Mu * cos(α) - Mv * sin(α) + N * z̄S-D = 217.4 kNm

M = Mv * cos(α) + Mu * sin(α) - N * ȳS-D = 199.3 kNm

Mω̄ = - Mω + Mu * uM-D + Mv * vM-D + N * ω̄ k = 3.15 kNm²

En el segundo paso, se verifican las tensiones tangenciales de las partes de la sección transversal por separado. Para ello, primero se distribuyen los esfuerzos internos relevantes (esfuerzos cortantes y momentos de torsión primarios y secundarios) entre las placas del alma y del alma (aquí, ejemplarmente y de manera resumida para el alma inferior):

Vy,u = - (Vȳ * z̄o + Mx̄s) / (z̄u - z̄o) = -452.3 kN

Mxp,u = Mxp * IT,u / IT = 1.46 kNm

donde IT,u / IT describe la proporción de la rigidez a la torsión del alma inferior respecto a la rigidez a la torsión de toda la sección (aquí, 37.6%). Luego, se determinan las capacidades de carga plásticas relevantes (Vpl,y,u y Mpl,xp,u) de la parte de la sección y se determina el aprovechamiento:

ητ,u = |Mxp,u| / (2 * Mpl,xp,u) + √((Mxp,u / (2 * Mpl,xp,u))² + (Vy,u / Vy,u)²) = 0.64

En el tercer paso, se verifican los momentos de flexión locales de las almas. La carga de cada parte aquí se compone del momento de flexión M y el momento de alabeo Mω̄ . Nuevamente, únicamente se trata el alma inferior de manera ejemplar:

MSa,z,u = (- M * z̄o + Mω̄ ) / (z̄u - z̄o) = 111.2 kNm

La comprobación se realiza con un límite de fluencia reducido debido a la carga cortante (véase arriba) y considerando un parámetro de excentricidad δ:

Mpl,z,u,τ = Mpl,z,u * fy,d,u * √(1 - (τu / τu,Rd)²) = 89.8 kNm

ηM = (|MSa,z,u| / Mpl,z,u,τ) / (1 + δu²) =0.99

Finalmente, se verifica si la fuerza normal actuante N y el momento de flexión Mȳ pueden ser absorbidos por la sección "restante". No se dispone de una solución analítica cerrada para este último paso. En su lugar, se determina un espacio de solución bidimensional y se verifica si la combinación actuante N-Mȳ se encuentra dentro o fuera del límite (= curva de interacción) de este espacio de solución. La curva límite se describe para la región de momentos positivos y negativos mediante 2 ecuaciones lineales y una parabólica. Con distinciones de casos se verifica qué sección de la curva límite es relevante para la comprobación de la fuerza normal dada. Para los pasos precisos de cálculo se remite a [1] o a los detalles de los resultados del diseño de acero. La curva límite resultante para el ejemplo con las diferentes secciones se muestra a continuación:

En la Figura 3, además de la curva límite, también se muestra la combinación N-Mȳ atuante en el ejemplo (diamante rojo). Es inmediatamente evidente que la carga actuante se encuentra dentro del espacio de solución de la curva límite, por lo que se cumple la comprobación de la sección. Sin embargo, no está claro cuál es la capacidad "real" restante de la sección, es decir, cuál sería el incremento posible de la combinación de esfuerzos internos hasta alcanzar la capacidad límite. La proporcionalidad entre carga y aprovechamiento se ve afectada por las condiciones de interacción no lineales (ya en el paso 2). Por lo tanto, el "verdadero" aprovechamiento solo puede determinarse de manera iterativa (es decir, en múltiples pasos de cálculo variando la carga).

2. Método de los esfuerzos internos parciales sin redistribución

Para comparación, la sección también se dimensiona con el método de los esfuerzos internos parciales sin redistribución. Aquí, primero se determinan las tensiones normales y tangenciales elásticas en las partes de la sección (cada elemento delgado se considera aquí como un subelemento separado) en los nudos iniciales, medios y finales. Aquí se presenta el cálculo (como en el complemento Cálculo de acero) solo para la parte de la sección determinante (Elemento 5 en Figura 2):

Tensiones límite de Elemento 5, esfuerzos internos según Tabla 1
σx,A 71.2 N/mm²
σx,E 279.6 N/mm²
τA 96.6 N/mm²
τM 108.2 N/mm²
τE 0.0 N/mm²

A partir de las tensiones, se calculan luego, considerando las dimensiones, las partes plásticas de las secciones transversales (aquí, subelemento i = 5):

N5 = t * l * (σx,A + σx,E) / 2 = 800.0 kN

M5 = t * l² * (σx,A - σx,E) / 12 = 19.0 kNm

V5 = t * l * (τA + 4 * τM + τE) / 6 = 402.4 kN

Mxp,5 = Mxp * IT,5 / IT = 1.1 kNm

Posteriormente se verifica la capacidad de carga a cortante de la parte de la sección:

ητ,5 = |Mxp,5| / (2 * Mpl,xp,5) + √((Mxp,5 / (2 * Mpl,xp,5))² + (V5 / Vpl,5)²) = 0.74

Finalmente, se verifica la interacción de fuerza normal-momento. Las resistencias se calculan como en el método con redistribución con un límite de elasticidad reducido:

fy,5,red = fy,5 * √(1 - (τ5 / τRd,5)²) = 161.4 N/mm²

ηN+M,5 = (N5 / Npl,τ,5)² + |M5| / Mpl,τ,5 = 1.611

Con la carga inicial presentada en la Tabla 1, entonces no se cumple la verificación. Un cálculo iterativo muestra que la verificación se puede cumplir con una reducción de la carga al 86%.

3. Verificación elástica de la sección transversal

La verificación elástica de la sección incluye una máxima utilización del 129% en el Elemento 5 también se sobrepasa claramente. En este caso, el factor de carga máximo se puede determinar directamente a partir del inverso de la utilización máxima al 77.5%.

Conclusión

El cálculo plástico con el método de los esfuerzos internos parciales permite, cuando es permitido, un dimensionamiento significativamente más económico en comparación con la verificación elástica de la sección. En el ejemplo, se puede lograr un aumento de carga del 11% (método sin redistribución) o del 25.8% (método con redistribución).


Autor

Dr. Bien es responsable del desarrollo de productos para estructuras de acero y proporciona soporte técnico a nuestros clientes.

Referencias


;