1912x
004359
2020-03-02

Modellazione di sezioni piegate a freddo con SHAPE-THIN in RFEM/RSTAB

Vorrei progettare una sezione trasversale in RF/STEEL Cold‑Formed Sections che non è contenuta nella libreria delle sezioni trasversali di RFEM/RSTAB. Cosa posso fare?


Risposta:

Le sezioni trasversali piegate a freddo generali possono essere modellate in SHAPE‑THIN.

In Dati generali, selezionare la casella di controllo "Parti c/t e proprietà della sezione trasversale efficace" (Figura 01).

Quindi, selezionare l'opzione "EN 1993-1-3 (Sezione trasversale piegata a freddo)" nella scheda "Parti c/t e sezione trasversale efficace" della finestra di dialogo Parametri di calcolo (Figura 02).

È possibile verificare le condizioni geometriche per l'applicabilità della norma specificata in EN 1993-1-3 [1], 5.2. Per fare ciò, selezionare le caselle di controllo corrispondenti. Se le condizioni geometriche non sono soddisfatte, viene visualizzato un messaggio di errore prima del calcolo.

Innanzitutto, inserisci gli elementi della sezione trasversale. Le larghezze piatte nozionali sono generalmente generate automaticamente dalle condizioni geometriche, ma possono anche essere create come definite dall'utente nella Tabella "1.7 Larghezze piatte nozionali | EN 1993-1-3" (Figura 03) o nella finestra di dialogo corrispondente.

Quindi, è possibile definire gli irrigidimenti nella tabella "1.8 Irrigidimenti" o nella finestra di dialogo corrispondente (Figura 04).

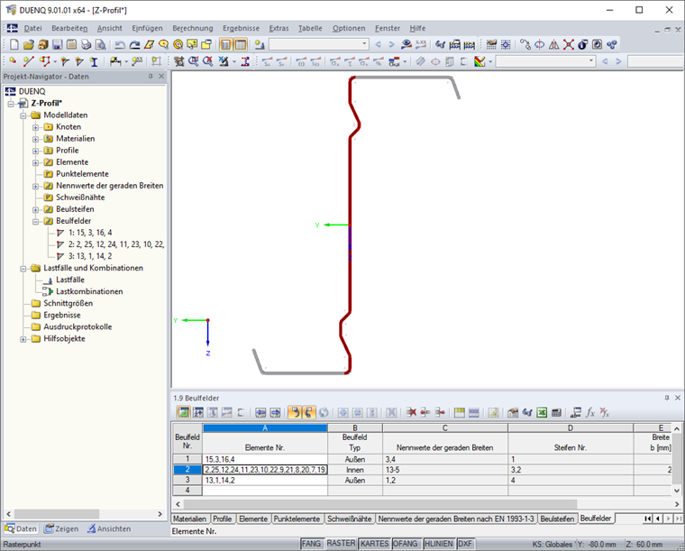
Inoltre, è necessario specificare il pannello di instabilità nella tabella "1.9 Pannelli di instabilità" (Figura 05) o nella finestra di dialogo. Per fare ciò, selezionare gli elementi del pannello di instabilità. Gli irrigidimenti situati nel pannello irrigidito sono identificati automaticamente.

Per la verifica di una sezione trasversale piegata a freddo in RF‑/STEEL Cold‑Formed Sections, è sufficiente definire gli irrigidimenti e i pannelli della sezione trasversale. Non è necessario calcolare ulteriormente la sezione trasversale efficace in SHAPE‑THIN. Pertanto, è possibile avviare il calcolo e fare clic su "OK" per confermare il messaggio di avviso (Figura 06).

Dopo aver salvato la sezione trasversale calcolata, può essere importata in RFEM o RSTAB.


Autore

La signora von Bloh fornisce supporto tecnico per i nostri clienti ed è responsabile dello sviluppo del programma SHAPE‑THIN e delle strutture in acciaio e alluminio.

Bibliografia
Download


;