1912x
004359
2020-03-02

Modeling Cold-Formed Sections with SHAPE-THIN in RFEM/RSTAB

I would like to design a cross-section in RF/STEEL Cold‑Formed Sections that is not contained in the cross-section library of RFEM/RSTAB. What can I do?


Answer:

General cold-formed cross-sections can be modeled in SHAPE‑THIN.

In General Data, select the "c/t parts and effective cross-section properties" check box (Image 01).

Then, select the "EN 1993‑1‑3 (Cold formed cross-section)" option in the "c/t-Parts and Effective Cross-Section" tab of the Calculation Parameters dialog box (Image 02).

The geometric conditions mentioned in [2], 5.2 for the applicability of the standard can be optionally checked. To do this, select the corresponding check boxes. If the geometric conditions are not met, an error message appears before the calculation.

First, enter the elements of the cross-section. The notional flat widths are usually generated automatically from the geometry conditions, but can also be created as user-defined in Table "1.7 Notional Flat Widths | EN 1993‑1‑3" (Image 03) or in the corresponding dialog box.

Then, you can define stiffeners in Table "1.8 Stiffeners" or in the corresponding dialog box (Image 04).

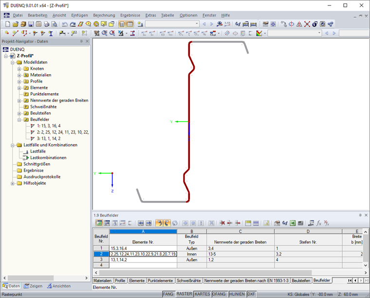
Furthermore, you should specify the buckling panel in Table "1.9 Buckling panels" (Image 05) or in the dialog box. To do this, select the elements of the buckling panel. The stiffeners located in the stiffened panel are identified automatically.

For the design of a cold-formed cross-section in RF‑/STEEL Cold‑Formed Sections, it is sufficient to define the stiffeners and panels of the cross-section. It is not necessary to additionally calculate the effective cross-section in SHAPE‑THIN. Thus, you can start the calculation and click "OK" to confirm the warning message (Image 06).

After saving the calculated cross-section, it can be imported into RFEM or RSTAB.


Author

Ms. von Bloh provides technical support for our customers and is responsible for the development of the SHAPE‑THIN program as well as steel and aluminum structures.

References
Downloads


;