2300x
001138
2019-07-17

Ampliamento dell'aeroporto di Orly Sud, Parigi, Francia

L'espansione dell'aeroporto di Orly Sud mira ad aumentare la capacità dell'aeroporto e ad aumentare la mobilità dei passeggeri tra arrivi e partenze soprattutto per le compagnie aeree low-cost. Il progetto di espansione nel terminal sud è stato avviato dalla società Groupe ADP.

Dettagli tecnici

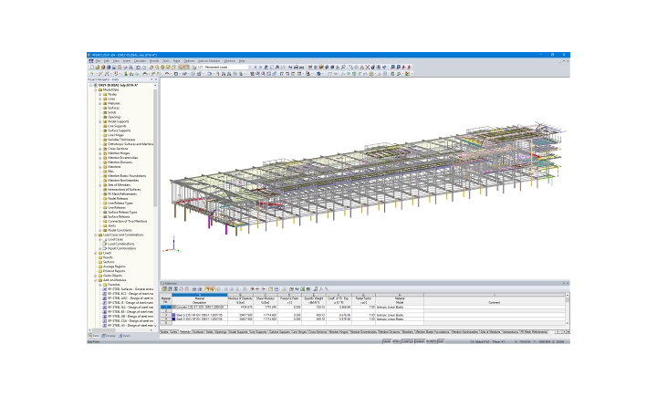
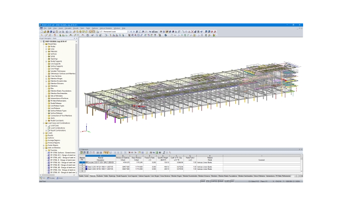
L'estensione del terminal di Orly Sud è una struttura a telaio metallico con un ingombro di circa 150 m di lunghezza per 44 m di larghezza e un'altezza totale di 20 m. Les planchers sont en structure mixte. Les façades sont principalement en produits verriers de grande hauteur. La stabilité est assurée par des portiques dans le sens transversal ainsi que par des portiques et des croix de saint André dans le sens longitudinal.

Modélisation et vérification dans RFEM

L’ensemble des éléments structurels (stabilité, poutres de planchers, pannes, chevêtres, etc.) de l’ouvrage ont été modélisés dans RFEM, soit plus de 7 300 barres pour un poids de l’ordre de 1 500 tonnes. La puissance de RFEM a permis de calculer l’ensemble au second ordre avec la prise en compte des imperfections globales dans les éléments de stabilité.

L’analyse non linéaire représente un total de plus de 250 combinaisons prenant en compte les différentes directions des imperfections globales. L'analyse converge avec un nombre d’incréments de combinaisons de charge égal à 4.

Les vérifications en stabilité ont été réalisées dans le module RF-STEEL EC3 et l’extension RF-STEEL Warping Torsion pour l’analyse des profils avec moment de torsion.

L’entreprise en charge de la fabrication de la charpente métallique a pu extraire facilement les efforts aux nœuds des attaches pour la réalisation de celle-ci à l’aide de RFEM Viewer, version visionneuse du logiciel.

Committente
Gestione della costruzione
Struttura in acciaio
Strutture per facciate
Calcolo strutturale


Specifiche del progetto

Dati modello

Numero di nodi 7528
Numero di linee 7525
Numero di aste 7330
Numero di casi di carico 27
Nr. di combinazioni di risultati 2
Peso totale 1637,196 t
Dimensioni (metriche) 173.787 x 66.320 x 21.213 m
Dimensioni (imperiali) 570.17 x 217.59 x 69.6 feet
Versione del programma 5.21.00

Hai delle domande?