Community
    Connectez-vous à votre compte

    Inscrivez-vous à l’Extranet Dlubal pour tirer le meilleur parti du logiciel et avoir un accès exclusif à vos données personnelles.

    Créer un compte
    En vous connectant à votre compte Dlubal, vous acceptez les conditions générales de vente de Dlubal Software. Veuillez consulter notre Politique de confidentialité et notre Politique de cookies.
    0
    Boutique en ligne
    Contactez l'équipe commerciale
    Langue
    • Deutsch
    • English
    • Français
    • Español
    • Português
    • Italiano
    • Česky
    • Polski
    • Pусский
    • 中文(简体)
    • Secteurs d’activités
      • Structures en béton armé
      • Structures en béton précontraint
      • Structures acier
      • Structures en bois
      • Structures en maçonnerie
      • Structures en aluminium et légères
      • Bâtiments
      • Structures industrielles
      • Systèmes de canalisation
      • Construction de pont
      • Grues et ponts roulants
      • Tours et pylônes
      • Structures en verre
      • Structure en toile tendue et structure textile
      • Structures à câbles et à réseaux de câbles
      • Structures stratifiées et sandwich
      • Structures temporaires
      • Construction d’échafaudages et de rayonnages
      • Structures offshore
      • Silos et réservoirs de stockage
      • Installations d'exploitation des énergies renouvelables
      • Structures solaires et systèmes de montage
      • Construction navale et structures flottantes
      • Structures de convoyage
      • Structures de forage
      • Piscines et parcs aquatiques
      • Structures de conteneurs
      • Fondations sur pieux forés
      • Escaliers
      • Centrales électriques
      • Ingénierie hydraulique acier
      • Génie mécanique
      • Structures à coussins gonflables en ETFE
      Champs d'application
      • Ingénierie structurale
      • Analyse selon la méthode des éléments finis (MEF)
      • Simulation des flux de vent et génération des charges de vent
      • Analyse des contraintes
      • Analyse non linéaire
      • Analyse de stabilité
      • Analyse de flambement non linéaire
      • Analyse de la torsion de gauchissement
      • Analyses dynamiques et sismiques
      • Analyse dynamique non linéaire
      • Analyse pushover
      • Recherche de forme et patrons de coupe
      • Assemblages acier
      • Planification orientée BIM
      • Profilés formés à froid
      • Interaction sol-structure
      • Calcul de façades
      • Fondations et géotechnique
      • Phases de construction
      • Résistance au feu
      Normes
      • Eurocodes (EC)
      • Normes allemandes (DIN)
      • Normes britanniques (BS EN, BS)
      • Normes techniques de construction Italienne (NTC)
      • Normes américaines
      • Normes canadiennes (CSA)
      • Normes australiennes (AS)
      • Normes suisses (SIA)
      • Normes chinoises (GB, HK)
      • Normes indiennes (IS)
      • Normes mexicaines (RCDF, CFE Sismo 15)
      • Normes russes (SP)
      • Normes sud-africaines (SANS)
      • Normes brésiliennes (NBR)
      Services en ligne
      • Icône dans le menu supérieur de l’outil de géolocalisation Carte des charges de neige, des vitesses de vent et des charges sismiques
      • Icône Calcul dans le Cloud Calculs dans le Cloud
      • Icône Wiki calcul de structure Wiki du calcul de structure
      • Icône Propriétés de section des sections acier et bois Propriétés de sections en acier
      Ingénierie des structures pour systèmes solaires

      Dlubal Software vous aide à créer et à vérifier tout système de montage solaire. Travaillez efficacement avec des structures en acier, en aluminium et en béton dans un seul environnement.

      Explorer les outils
      Structures solaires Structures solaires | Version mobile
      API Dlubal

      Le nouveau service API Dlubal (gRPC) vous fournit une interface flexible pour le logiciel d'analyse structurelle basée sur Python et C#, avec un accès direct à l'ensemble de la gamme de produits Dlubal.

      Débuter avec l’API
      Arrière-plan pour la bannière du menu principal API Arrière-plan pour la bannière du menu principal API
    • Une icône RFEM 6 pour application de logiciel de calcul de structure. RFEM 6 Le seul logiciel MEF pour tous vos projets

      RFEM 6 constitue la base de la famille modulaire de programmes et sert à la définition de structures, de matériaux et d'actions pour des systèmes porteurs en plaques, voiles, coques et barres ainsi que pour des solides.

      En savoir plus
      Icône de changement de module complémentaire Modules complémentaires
      • Analyses supplémentaires
      • Analyse dynamique
      • Solutions spéciales
      • Vérification
      • Assemblages
      Icône RSTAB 9 sans bord RSTAB 9 Logiciel de structures filaires emblématique

      Grâce à RSTAB, l'ingénieur structure a accès à un logiciel de structures filaires 3D qui répond aux exigences du calcul de structure moderne et reflète l'état actuel des techniques de construction.

      En savoir plus
      Icône de changement de module complémentaire Modules complémentaires
      • Analyses supplémentaires
      • Analyse dynamique
      • Solutions spéciales
      • Vérification
      Icône RSECTION 1 sans bord RSECTION 1 Calculs de section utilisateurs

      RSECTION aide les ingénieurs en structure en déterminant les caractéristiques des sections transversales pour une grande variété de profils et permet une analyse de contrainte subséquente.

      En savoir plus
      Icône RWIND 3 sans bord RWIND 3 Logiciel CFD pour souffleries numériques

      RWIND 3 est une soufflerie numérique pour la simulation des flux de vent autour de toutes géométries de bâtiments et pour le calcul des charges de vent sur leurs surfaces.

      En savoir plus
      Icône API API Dlubal Votre porte vers la modélisation paramétrique et l’automatisation

      Le nouveau service API de Dlubal (gRPC) vous offre une interface flexible basée sur Python et C# pour le logiciel de calcul de structure, avec un accès direct à toute la gamme de produits Dlubal. Profitez d’une intégration transparente et puissante dans votre logiciel Dlubal – idéal pour la modélisation paramétrique et les tâches d’optimisation complexes.

      Découvrir l’API
      Documentation de l’API Documentation API
      • Index
      • Premiers pas
      • Applications
      • Objets de modèle
      • Abonnements & prix
      • Exemples
      Analyse aux éléments finis pour les assemblages en acier

      Concevez et analysez des connexions en acier en utilisant le CBFEM, conforme aux normes EN 1993‑1‑8 et AISC 360, entièrement intégré dans RFEM 6 pour des flux de travail structurels plus rapides et plus précis.

      En savoir plus
      Assemblages acier Assemblages en acier
      Outil de zone géographique

      Le service en ligne Dlubal fournit des cartes de zones pour la détermination rapide des charges de neige, des vitesses de vent et des données sismiques.

      Zones de charge
      Outil de visualisation de zone géographique affichant des cartes de neige, de vent et sismiques avec des illustrations pour les évaluations des charges environnementales. Illustration des cartes des zones géographiques de neige, de vent et sismiques sur une version mobile montrant différentes régions et données.
      Versions précédentes
    • Support technique
      • Foire aux Questions (FAQ)
      • Base de connaissance
      • Fonctionnalités de produit
      • Licences
      • Poser une question
      • Notre équipe de support
      • Soumettre une fonctionnalité ou une idée
      • Résolution des problèmes de licences et autorisations
      • Signaler un problème ou un bug
      • Mises à jour du logiciel
      • Problèmes de logiciel
      • Formules | Les mathématiques, c'est amusant !
      Formations
      • Premiers pas avec RFEM
      • Premiers pas avec RSTAB
      • Formation en ligne
      • Formation chez Dlubal
      • Catalogue de formation
      • Formation Intra-entreprises
      • Vidéos
      • Vidéos d’e-learning
      • Webinaires Dlubal
      • Cours en ligne
      Service
      • Support / service client gratuit
      • Extranet | Mon compte
      • Contrat de service
      • Outil de géolocalisation pour la détermination des charges
      • Mises à jour et mises à niveau
      • Versions antérieures des logiciels Dlubal
      Vente
      • Boutique en ligne
      • Notre équipe commerciale
      • Contacter notre équipe commerciale
      • Demander une démonstration de produit en ligne
      • Pourquoi choisir Dlubal Software ?
      Assistante IA
      • Mia - Votre assistante IA disponible 24 h/24
      • Découvrez votre assistante IA personnelle
      Support technique et services gratuits

      Besoin d'aide ? Accédez à des options d'assistance gratuites incluant une assistance IA 24h/24 et 7j/7, un support par email et des webinaires.

      En savoir plus
      Support et services gratuits Support et service gratuits
      Trouver rapidement des réponses

      Trouvez des réponses rapides aux questions courantes concernant Dlubal Software. Recherchez ou filtrez des centaines de FAQ pour résoudre les problèmes en un rien de temps.

      Voir la FAQ
      FAQ FAQ | Version mobile
    • Nouveautés
      • Actualités
      • Nouvelles fonctionnalités de produit
      • S’abonner à la newsletter
      • Nouveaux programmes
      • Blog Dlubal
      Formations
      • Formations en ligne
      • Formation individuelle
      Événements
      • Vue d'ensemble des événements Dlubal
      • Conférences et salons
      • Webinaires
      Maîtriser l’ingénierie avec les webinaires

      Rejoignez les leaders de l'industrie et explorez des solutions en génie structurel et logiciel. Améliorez vos compétences avec nos sessions en direct !

      Voir les prochains webinaires
      3D FEA Software RFEM 6 | First Steps Menu Image de bannière | Actualités webinaires | Version mobile
      Libérez le pouvoir de l’innovation

      Découvrez des outils et améliorations de pointe conçus pour optimiser votre flux de travail en ingénierie.

      Découvrir les nouvelles fonctionnalités
      Explore New Features Image de bandeau de menu | Nouveaux_FonctionnalitésProduit | Version mobile
    • Télécharger la version complète

      Souhaitez-vous essayer les logiciels performants de Dlubal Software ? C’est possible ! Grâce à la version d’essai complète gratuite de 90 jours, vous pouvez tester entièrement toutes nos solutions.

      Télécharger la version d’essai
      Espace gratuit Dlubal

      Dans l’espace gratuit de Dlubal, vous avez accès à des webinaires, des articles et des versions d’essai - et ce, sur une seul et même plateforme.

      En savoir plus
      Exemples
      • Modèles de calcul de structure à télécharger
      • Soumettre un modèle de calcul de structure
      • Exemples introductifs et tutoriels
      • Exemples de vérification
      • Vue d'ensemble des figures
      Documentation
      • Manuels en ligne
      • Manuels
      • Dépliants, brochures et certificats
      Références
      • Projets clients
      • Pourquoi soumettre un projet client ?
      • Comment soumettre un projet client ?
      • Soumettre un projet client
      Télécharger des modèles gratuits

      Explorez des milliers de modèles structurels prêts à l'emploi. Téléchargez-les, adaptez-les et utilisez-les comme modèles pour accélérer votre processus de conception.

      Découvrir les modèles
      Modèles de calcul de structure à télécharger Modèles gratuits à télécharger | Version mobile
      Espace Dlubal

      Obtenez de l'aide d'experts quand vous en avez besoin. Profitez de l'assistance IA gratuite, du support par email, des webinaires en direct et des services premium pour les utilisateurs du contrat de service Pro.

      Obtenir de l’assistance
      Support et services gratuits Support et services gratuits | Version mobile - Dlubal Software
    • E-learning
      • RFEM 6 pour débutants
      • RFEM 6 pour les étudiants
      • Programmation avec RFEM 6 et Python
      • RFEM 6 avec Rhino & Grasshopper
      • RFEM 5 pour débutants
      • Modélisation avec RFEM 5
      • Vidéos d'apprentissage pour les étudiants
      • Tutoriels sur les logiciels Dlubal
      • Les meilleurs trucs et astuces pour RFEM
      • Formations en ligne enregistrées
      • Webinaires enregistrés
      Étudiants et établissements scolaires
      • Logiciels de calcul de structure gratuits pour les étudiants
      • Demander ou renouveler la licence étudiante gratuite
      • Demander une licence enseignante gratuite
      • Soumettre un mémoire de fin d’études
      • Pourquoi soumettre votre projet de fin d’études ?
      • Projets de fin d’études avec les logiciels de calcul de structure Dlubal
      • Logiciels de calcul de structure gratuits pour les universités et centres de formation
      • Demander un pack éducation
      • Formation d’introduction gratuite pour les universités
      • Demander une date de formation
      Plateforme de connaissance
      • Premiers pas avec RFEM
      • Vidéos
      • Manuels en ligne
      • Wiki du calcul de structure
      • Base de connaissance
      • Foire aux Questions (FAQ)
      Infodivertissement
      • Podcast
      • Blog Dlubal
      • Introduction au calcul de structure
      Premiers pas avec RFEM 6

      Faites vos premiers pas avec RFEM 6 et découvrez à quelle vitesse vous pouvez modéliser et calculer. Personnalisez avec des modules complémentaires pour encore plus de possibilités.

      Premiers pas
      3D FEA Software RFEM 6 | First Steps Menu Image de bannière | Actualités webinaires | Version mobile
      Logiciel de calcul de structure gratuit pour les étudiants

      Des milliers d'étudiants dans le monde bénéficient déjà des logiciels Dlubal. Profitez d'un accès gratuit, de formations et du soutien d'experts tout au long de vos études.

      Obtenir une version gratuite
      Logiciel de calcul de structures gratuit pour les étudiants Logiciel de calcul de structures gratuit pour étudiants
    • À propos
      • Historique et chiffres
      • Philosophie de la société
      • Pourquoi choisir Dlubal Software ?
      • Comparaison de produits
      • Politique de qualité
      • Notre équipe
      Contact
      • Sites de Dlubal Software dans le monde
      • Revendeur Dlubal agréés
      Références
      • Retours d'expérience
      • Projets clients
      • Études de cas
      • Pourquoi soumettre un projet client ?
      • Exemples de vérification
      • Votre avis
      • Participation à des projets de recherche
      Nos clients

      Nous présentons nos clients qui réalisent leurs projets avec les logiciels Dlubal. Découvrez comment nos clients du monde entier mettent en œuvre des solutions innovantes dans le domaine de la construction et de l’ingénierie à l’aide d’outils avancés pour les analyses statiques et dynamiques.

      Voir nos clients
      Réussir ensemble

      Découvrez comment les ingénieurs de premier plan à travers le monde font confiance à nos solutions pour élever leurs projets avec nous.

      Voir nos clients
      See Our Customers Image de bannière du menu | Entreprise_NosClients_Mobile
      Rencontrez les experts

      Nos ingénieurs dédiés sont là pour vous aider avec la modélisation, la conception et les défis techniques—à tout moment, n'importe où.

      Contacter le support
      Our Team Image de bannière de menu | Société_Notre équipe | Version mobile
    • Carrière
      • Offres d’emploi
      • Équipes
      • Blog des collègues
      • Informations
      Offres d’emploi
      • Toutes les offres d’emploi
      • Développement de produit
      • Support client
      • Vente
      • Marketing
      • Développement logiciel
      • Administration
      • Stagiaires
      • Autres
      Équipes
      • Développement de produits
      • Support client
      • Ventes
      • Marketing
      • Développement de logiciels
      • Administration
      Pourquoi choisir Dlubal ?
      • Culture d’entreprise
      • Avantages pour les employés
      Construisez votre avenir avec nous

      Découvrez comment notre équipe façonne l'avenir de l'ingénierie. Expérimentez l'innovation, la croissance et des défis passionnants.

      Carrière chez Dlubal Image de bannière de menu | Carrière chez Dlubal Mobile
      Trouvez l’emploi de vos rêves

      Rejoignez un leader mondial des logiciels d'ingénierie et faites passer votre carrière à un niveau supérieur.

      Découvrir les offres d’emploi
      All Open Positions Image de menu | Postes vacants sur mobile
    • Boutique en ligne
    Produits principaux
    Une icône RFEM 6 pour application de logiciel de calcul de structure.
    RFEM 6
    Icône RSTAB 9 sans bord
    RSTAB 9
    Icône RWIND 3 sans bord
    RWIND 3
    Icône RSECTION 1 sans bord
    RSECTION
    Services en ligne
    Icône de l’outil Geo-Zone Tool
    Outil de géolocalisation
    Propriétés de section
    Propriétés de section
    Icône API
    API
    Icône « Calcul dans le Cloud »
    Calcul dans le Cloud
    Modèles téléchargeables
    Télécharger le modèle
    Icône Communauté Dlubal
    Communauté Dlubal
    Icône Articles de la base de connaissances
    Base de connaissances
    Webinaires en ligne
    Webinaires
    Connectez-vous à votre compte

    Inscrivez-vous à l’Extranet Dlubal pour tirer le meilleur parti du logiciel et avoir un accès exclusif à vos données personnelles.

    Se connecter Créer un compte
    Essai gratuit de 90 jours
    Connectez-vous à votre compte

    Inscrivez-vous à l’Extranet Dlubal pour tirer le meilleur parti du logiciel et avoir un accès exclusif à vos données personnelles.

    Se connecter Créer un compte
    • Produits
    • Versions précédentes
    • Modules additionnels pour RSTAB 8
    • Structures en béton
    • CONCRETE
    Icône de raccourci RSTAB Module additionnel pour RSTAB 8 }
    calculator icon
    Nos prix
    Module additionnel CONCRETE pour RSTAB 8

    Module additionnel CONCRETE pour RSTAB 8

    CONCRETE est un module additionnel de vérification d'éléments de barre en béton armé pour RSTAB 8. Il vous permet d'évaluer les efforts internes de RSTAB dans différents cas de calcul. Ainsi, vous pouvez combiner des barres, des cas de charge, des combinaisons de charges et des combinaisons de résultats pour un processus de calcul dans chaque cas CONCRETE. Vous pouvez ainsi calculer efficacement des variantes de calcul avec différentes conditions aux limites ou des sections modifiées, par exemple.

    Banner | Modules additionnels pour les structures en béton armé dans RSTAB 8

    Analyse linéaire et non linéaire de sections en béton armé avec croquis d'armatures

    Nombre total d'articles : 4
    Armatures requises selon l'Eurocode 2 dans RFEM
    • Visionneuse 3D
    • Visionneuse 3D | Babylon
    • Réalité virtuelle
    FEM-Statikprogramm RFEM | Modell einer Holz-Stahl-Stahlbeton-Halle
    • Visionneuse 3D
    • Visionneuse 3D | Babylon
    • Réalité virtuelle
    Statikprogramm RFEM - Tragwerk aus verschiedenen Materialien
    • Visionneuse 3D
    • Visionneuse 3D | Babylon
    • Réalité virtuelle
    Navigateur de projet - Vues
    • Visionneuse 3D
    • Visionneuse 3D | Babylon
    • Réalité virtuelle
    Conférence
    • Visionneuse 3D
    • Visionneuse 3D | Babylon
    • Réalité virtuelle
    • Général
    • CONCRETE 8
    • Structures en béton
      • Eurocode 2

    CONCRETE | Fonctionnalités

    • Importation des résultats de RSTAB
    • Bibliothèque complète de matériaux/sections
    • L'extension de module EC2 pour RSTAB permet la vérification du béton armé selon l'EN 1992-1-1 (Eurocode 2) et les Annexes nationales suivantes :
      • DK | Drapeau DIN EN 1992-1-1/NA/A1:2015-12 (Allemagne)
      • Autriche | Drapeau ÖNORM B 1992-1-1:2018-01 (Autriche)
      • Drapeau Belgique NBN EN 1992-1-1 ANB:2010 pour les essais à température normale et EN 1992-1-2 ANB:2010 pour la vérification de la résistance au feu (Belgique)
      • Bulgarie | Drapeau BDS EN 1992-1-1:2005/NA:2011 (Bulgarie)
      • Drapeau Danemark EN 1992-1-1 DK NA:2013 (Danemark)
      • Drapeau de la France NF EN 1992-1-1/NA: 2016-03 (France)
      • Drapeau de la Finlande SFS EN 1992-1-1/NA: 2007-10 (Finlande)
      • Drapeau de l'Italie UNI EN 1992-1-1/NA:2007-07 (Italie)
      • Drapeau Lettonie LVS EN 1992-1-1:2005/NA:2014 (Lettonie)
      • Drapeau Lituanie LST EN 1992-1-1:2005/NA:2011 (Lituanie)
      • Drapeau de la Malaisie MS EN 1992-1-1:2010 (Malaisie)
      • Drapeau des Pays-Bas NEN-EN 1992-1-1+C2:2011/NB:2016 (Pays-Bas)
      • NS EN 1992-1 -1:2004-NA:2008 (Norvège)
      • Drapeau Pologne PN EN 1992-1-1/NA:2010 (Pologne)
      • Drapeau Portugal NP EN 1992-1-1/NA:2010-02 (Portugal)
      • Drapeau de la Roumanie SR EN 1992-1-1:2004/NA:2008 (Roumanie)
      • Drapeau de la Suède SS EN 1992-1-1/NA:2008 (Suède)
      • Drapeau de Singapour SS EN 1992-1-1/NA:2008-06 (Singapour)
      • Drapeau Slovaquie STN EN 1992-1-1/NA:2008-06 (Slovaquie)
      • Drapeau de la Slovénie SIST EN 1992-1-1:2005/A101:2006 (Slovénie)
      • Drapeau de l'Espagne UNE EN 1992-1-1/NA:2013 (Espagne)
      • CS | Drapeau CSN EN 1992-1-1/NA:2016-05 (République tchèque)
      • FR-FR | Drapeau BS EN 1992-1-1:2004/NA:2005 (Royaume-Uni)
      • Drapeau de la Biélorussie TKP 1992-1-1:2009 (Biélorussie)
      • Drapeau de Chypre CYS EN 1992-1-1:2004/NA:2009 (Chypre)
    • Outre les Annexes nationales (AN) ci-dessus, vous pouvez également définir vous-même une annexe à l'aide de valeurs limites et de paramètres personnalisés.
    • Sélection possible des préréglages pour les facteurs partiels de sécurité et les facteurs de réduction, les limites de la zone de pression, les propriétés du matériau et de la couche de béton
    • Détermination des armatures longitudinales, de cisaillement et de torsion
    • Vérification des barres à section variable
    • Optimisation des sections
    • Représentation des armatures minimales et de compression
    • Détermination d'une proposition d'armature modifiable
    • Vérification des limites d'ouverture des fissures avec augmentation optionnelle de l'armature requise afin de respecter les valeurs limites définies pour la maîtrise de la fissuration
    • Calcul non linéaire avec prise en compte des sections fissurées (pour l'EN 1992-1-1:2004 et la DIN 1045-1:2008)
    • Considération de la participation du béton tendu
    • Considération du fluage et du retrait
    • Déformations des sections fissurées (état II)
    • Représentation graphique de tous les diagrammes de résultat
    • Vérification de la résistance au feu selon la méthode simplifiée (méthode par zone) de l'EN 1992-1-2 pour les sections rectangulaires et circulaires La vérification de la résistance au feu des supports est donc également possible
    Paramètres d'armatures pour les poteaux
    • Modélisation | Structure
    • CONCRETE 8
    • Structures en béton
      • Eurocode 2

    CONCRETE | Entrée

    Après avoir ouvert le programme, vous définissez la norme et la méthode suivant lesquelles vous souhaitez exécuter la vérification. Les états limites ultimes et de service peuvent être vérifiés selon les méthodes de calcul linéaire ou non-linéaire. Les cas de charge, les combinaisons de charge ou de résultats sont ensuite assignés à différents types de calcul. Dans certains tableaux d'entrée disponibles, les matériaux et les sections peuvent être définis. De plus, vous pouvez définir les paramètres de fluage et de retrait. Le coefficient de fluage et l'épaisseur de retrait sont indiqués en fonction de l'âge du béton.

    La géométrie des appuis est déterminée par les données de calcul correspondantes comme largeurs et types d'appui (directe, monolithique, appui intermédiaire ou de rive) et la redistribution de moment ainsi que la réduction de l'effort tranchant et des moments. CONCRETE reconnait automatiquement les types d'appui du modèle de RSTAB.

    Dans le tableau à plusieurs onglets, les propriétés spécifiques d'armatures comme diamètre, enrobage de béton et type de réduction, nombre de couches, coupes de cadres et type d'ancrage. Lors de la vérification de la protection incendie, vous devez définir la classe de résistance au feu, les propriétés spécifiques au feu de matériaux ainsi que le côté de la section exposé au feu. Les barres et les ensembles de barres peuvent respectivement être regroupés dans des 'groupes d'armatures' spéciaux avec différents paramètres de calcul.

    Pour les vérifications des ouvertures de fissure, vous pouvez définir la valeur limite de l'ouverture maximale des fissures. La géométrie des voûtes est aussi prise en compte dans la pose ou dispositions des armatures.

    messages d'erreur
    • Calcul
    • CONCRETE 8
    • Structures en béton
      • Eurocode 2

    CONCRETE | Calcul de structure

    Avant le démarrage du calcul, vous devez contrôler les données d'entrée à l'aide de la fonction du programme. Le module additionnel CONCRETE cherche ensuite les résultats des cas de charge, des combinaisons de charges et des combinaisons de résultats pertinents. S'ils ne sont pas disponibles, RSTAB lance le calcul pour déterminer les efforts internes requis.

    Selon la norme de calcul sélectionnée, les aires d'armature requises des armatures longitudinales et d'effort tranchant ainsi que les résultats intermédiaires correspondants sont calculés. Si l’armature longitudinale déterminée par la vérification à l’ELU n’est pas suffisante pour le calcul de l’ouverture de fissure maximum, vous pouvez augmenter l’armature automatiquement jusqu’à ce que la valeur limite définie soit atteinte.

    La vérification des composants structuraux potentiellement instables est possible à l'aide d'un calcul non linéaire. Selon la norme correspondante, différentes approches sont possibles.

    La vérification de la résistance au feu est effectuée selon une méthode de calcul simplifiée conformément à EN 1992-1-2, 4.2. Le module utilise la méthode par zones mentionnée dans l'Annexe B2. De plus, vous pouvez considérer les déformations thermiques dans la direction longitudinale et la contre-flèche thermique résultant des effets asymétriques du feu.

    Affichage de résultats
    • Résultats
    • CONCRETE 8
    • Structures en béton
      • Eurocode 2

    CONCRETE | Résultats

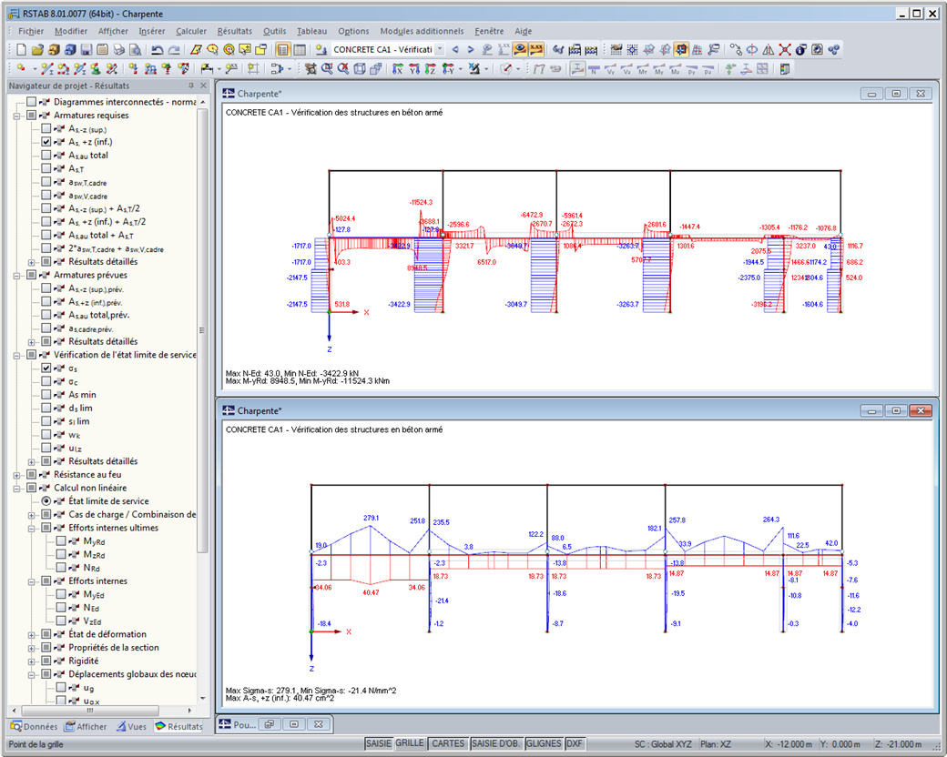
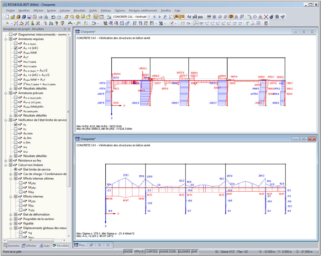
    L'armature requise se trouve dans les tableaux de sortie avec des graphiques illustratifs et des résultats détaillés une fois le calcul terminé. Toutes les valeurs intermédiaires y sont incluses de manière explicites. Outre ces tableaux, les contraintes et déformations actuelles de la section sont affichées graphiquement.

    Les propositions d'armatures longitudinales et de cisaillement sont documentées de manière pratique avec le croquis. Il est possible de modifier l'armature proposée en changeant par exemple le nombre de barres et l'ancrage. Les modifications sont mises à jour automatiquement.

    La section en béton armé peut être clairement visualisée grâce au rendu 3D. Le programme met ainsi à votre disposition une documentation optimale pour la création des plans d'armatures avec nomenclature d'acier.

    Les vérifications de l'ouverture des fissures sont effectuées avec l'armature sélectionnée pour les efforts internes déterminants à l'ELS. Les résultats contiennent les contraintes de l'acier, l'armature minimale, le diamètre limite, les espacements maximaux entre les armatures, les espacements entre les fissures et les largeurs maximales des fissures.

    Le calcul non-linéaire permet d'obtenir les états limites ultimes de la section avec armature (déterminée de manière linéaire-élastique) ou paramétrée et les flèches du composant structural en considérant les rigidités à l'état fissuré.

    • Invitation à une démonstration en ligne de produit mettant en avant des fonctionnalités avancées du logiciel
      Demander une démonstration de produit en ligne

      Découvrez Dlubal en direct et organisez une démonstration de produit en ligne !

    • Bannière promotionnelle invitant à s’inscrire à l’essai gratuit de 90 jours des produits Dlubal.
      Version complète gratuite pendant 90 jours

      La manière la plus efficace de découvrir le logiciel Dlubal est de l'essayer vous-même.

    • Contactez notre équipe commerciale pour bénéficier d’un soutien d’expert sur les solutions logicielles avancées.
      Contacter l’équipe commerciale

      Nous sommes là pour vous !

    Boutique en ligne

    Sélectionnez des programmes et obtenez les tarifs immédiatement !

    • Famille de produits RFEM 5
    • Famille de produits RSTAB 8
    Accéder à la boutique en ligne

    Calculez votre prix

    1 120,00 USD
    BETON
    Montant total 1 120,00 USD

    Premiers pas avec RSTAB 8

    Ici, les utilisateurs qui n'ont pas encore ou rarement travaillé avec RSTAB trouvent des conseils et astuces qui facilitent l'entrée dans nos programmes.

    En savoir plus
    Logiciel de structure 3D à barres Logiciel de structure 3D à barres

    Modèles de calcul de structure à télécharger

    Si vous êtes à la recherche de modèles pour vous entraîner ou comme source d'inspiration pour vos projets, vous êtes au bon endroit. Nous vous proposons de télécharger de nombreux modèles de calcul de structure pour RFEM, RSTAB ou RWIND.

    Tous les modèles
    Modèles techniques téléchargeables pour des analyses d’ingénierie précises Modèles techniques téléchargeables pour des analyses d’ingénierie précises
    Logiciels de calcul de structures
    Dlubal Software SARL

    32, rue de Cambrai
    75019 Paris
    France

    +33 9 80 40 58 20 [email protected]
    Dlubal Software GmbH

    Am Zellweg 2
    93464 Tiefenbach
    Allemagne

    +49 9673 9203-0 [email protected]
    Solutions
    • Structures en béton armé
    • Structures acier
    • Structures en bois
    • Assemblages acier
    Produits
    • RFEM 6
    • RSTAB 9
    • RSECTION 1
    • RWIND 3
    Support technique
    • Foire aux Questions (FAQ)
    • Poser une question
    • Carte des charges de neige, des vitesses de vent et des charges sismiques
    • Contacter notre équipe commerciale
    Actualités
    • S’abonner à la newsletter
    • Actualités
    • Vue d'ensemble des événements Dlubal
    • Formations en ligne
    Ressources
    • Télécharger la version d’essai complète
    • Soumettre un projet client
    • Projets clients
    • Manuels en ligne
    Rejoindre l'équipe Dlubal
    Communauté Dlubal YouTube Facebook Pinterest TikTok Instagram
    © 2001-2026 Dlubal Software GmbH | Tous droits réservés
    Mentions légales
    À propos
    Plan du site
    Langue
    • Deutsch
    • English
    • Français
    • Español
    • Português
    • Italiano
    • Česky
    • Polski
    • Pусский
    • 中文(简体)