Community
    Connectez-vous à votre compte

    Inscrivez-vous à l’Extranet Dlubal pour tirer le meilleur parti du logiciel et avoir un accès exclusif à vos données personnelles.

    Créer un compte
    En vous connectant à votre compte Dlubal, vous acceptez les conditions générales de vente de Dlubal Software. Veuillez consulter notre Politique de confidentialité et notre Politique de cookies.
    0
    Boutique en ligne
    Contactez l'équipe commerciale
    Langue
    • Deutsch
    • English
    • Français
    • Español
    • Português
    • Italiano
    • Česky
    • Polski
    • Pусский
    • 中文(简体)
    • Secteurs d’activités
      • Structures en béton armé
      • Structures en béton précontraint
      • Structures acier
      • Structures en bois
      • Structures en maçonnerie
      • Structures en aluminium et légères
      • Bâtiments
      • Structures industrielles
      • Systèmes de canalisation
      • Construction de pont
      • Grues et ponts roulants
      • Tours et pylônes
      • Structures en verre
      • Structure en toile tendue et structure textile
      • Structures à câbles et à réseaux de câbles
      • Structures stratifiées et sandwich
      • Structures temporaires
      • Construction d’échafaudages et de rayonnages
      • Structures offshore
      • Silos et réservoirs de stockage
      • Installations d'exploitation des énergies renouvelables
      • Structures solaires et systèmes de montage
      • Construction navale et structures flottantes
      • Structures de convoyage
      • Structures de forage
      • Piscines et parcs aquatiques
      • Structures de conteneurs
      • Fondations sur pieux forés
      • Escaliers
      • Centrales électriques
      • Ingénierie hydraulique acier
      • Génie mécanique
      • Structures à coussins gonflables en ETFE
      Champs d'application
      • Ingénierie structurale
      • Analyse selon la méthode des éléments finis (MEF)
      • Simulation des flux de vent et génération des charges de vent
      • Analyse des contraintes
      • Analyse non linéaire
      • Analyse de stabilité
      • Analyse de flambement non linéaire
      • Analyse de la torsion de gauchissement
      • Analyses dynamiques et sismiques
      • Analyse dynamique non linéaire
      • Analyse pushover
      • Recherche de forme et patrons de coupe
      • Assemblages acier
      • Planification orientée BIM
      • Profilés formés à froid
      • Interaction sol-structure
      • Calcul de façades
      • Fondations et géotechnique
      • Phases de construction
      • Résistance au feu
      Normes
      • Eurocodes (EC)
      • Normes allemandes (DIN)
      • Normes britanniques (BS EN, BS)
      • Normes techniques de construction Italienne (NTC)
      • Normes américaines
      • Normes canadiennes (CSA)
      • Normes australiennes (AS)
      • Normes suisses (SIA)
      • Normes chinoises (GB, HK)
      • Normes indiennes (IS)
      • Normes mexicaines (RCDF, CFE Sismo 15)
      • Normes russes (SP)
      • Normes sud-africaines (SANS)
      • Normes brésiliennes (NBR)
      Services en ligne
      • Icône dans le menu supérieur de l’outil de géolocalisation Carte des charges de neige, des vitesses de vent et des charges sismiques
      • Icône Calcul dans le Cloud Calculs dans le Cloud
      • Icône Wiki calcul de structure Wiki du calcul de structure
      • Icône Propriétés de section des sections acier et bois Propriétés de sections en acier
      Ingénierie des structures pour systèmes solaires

      Dlubal Software vous aide à créer et à vérifier tout système de montage solaire. Travaillez efficacement avec des structures en acier, en aluminium et en béton dans un seul environnement.

      Explorer les outils
      Structures solaires Structures solaires | Version mobile
      API Dlubal

      Le nouveau service API Dlubal (gRPC) vous fournit une interface flexible pour le logiciel d'analyse structurelle basée sur Python et C#, avec un accès direct à l'ensemble de la gamme de produits Dlubal.

      Débuter avec l’API
      Arrière-plan pour la bannière du menu principal API Arrière-plan pour la bannière du menu principal API
    • Une icône RFEM 6 pour application de logiciel de calcul de structure. RFEM 6 Le seul logiciel MEF pour tous vos projets

      RFEM 6 constitue la base de la famille modulaire de programmes et sert à la définition de structures, de matériaux et d'actions pour des systèmes porteurs en plaques, voiles, coques et barres ainsi que pour des solides.

      En savoir plus
      Icône de changement de module complémentaire Modules complémentaires
      • Analyses supplémentaires
      • Analyse dynamique
      • Solutions spéciales
      • Vérification
      • Assemblages
      Icône RSTAB 9 sans bord RSTAB 9 Logiciel de structures filaires emblématique

      Grâce à RSTAB, l'ingénieur structure a accès à un logiciel de structures filaires 3D qui répond aux exigences du calcul de structure moderne et reflète l'état actuel des techniques de construction.

      En savoir plus
      Icône de changement de module complémentaire Modules complémentaires
      • Analyses supplémentaires
      • Analyse dynamique
      • Solutions spéciales
      • Vérification
      Icône RSECTION 1 sans bord RSECTION 1 Calculs de section utilisateurs

      RSECTION aide les ingénieurs en structure en déterminant les caractéristiques des sections transversales pour une grande variété de profils et permet une analyse de contrainte subséquente.

      En savoir plus
      Icône RWIND 3 sans bord RWIND 3 Logiciel CFD pour souffleries numériques

      RWIND 3 est une soufflerie numérique pour la simulation des flux de vent autour de toutes géométries de bâtiments et pour le calcul des charges de vent sur leurs surfaces.

      En savoir plus
      Icône API API Dlubal Votre porte vers la modélisation paramétrique et l’automatisation

      Le nouveau service API de Dlubal (gRPC) vous offre une interface flexible basée sur Python et C# pour le logiciel de calcul de structure, avec un accès direct à toute la gamme de produits Dlubal. Profitez d’une intégration transparente et puissante dans votre logiciel Dlubal – idéal pour la modélisation paramétrique et les tâches d’optimisation complexes.

      Découvrir l’API
      Documentation de l’API Documentation API
      • Index
      • Premiers pas
      • Applications
      • Objets de modèle
      • Abonnements & prix
      • Exemples
      Analyse aux éléments finis pour les assemblages en acier

      Concevez et analysez des connexions en acier en utilisant le CBFEM, conforme aux normes EN 1993‑1‑8 et AISC 360, entièrement intégré dans RFEM 6 pour des flux de travail structurels plus rapides et plus précis.

      En savoir plus
      Assemblages acier Assemblages en acier
      Outil de zone géographique

      Le service en ligne Dlubal fournit des cartes de zones pour la détermination rapide des charges de neige, des vitesses de vent et des données sismiques.

      Zones de charge
      Outil de visualisation de zone géographique affichant des cartes de neige, de vent et sismiques avec des illustrations pour les évaluations des charges environnementales. Illustration des cartes des zones géographiques de neige, de vent et sismiques sur une version mobile montrant différentes régions et données.
      Versions précédentes
    • Support technique
      • Foire aux Questions (FAQ)
      • Base de connaissance
      • Fonctionnalités de produit
      • Licences
      • Poser une question
      • Notre équipe de support
      • Soumettre une fonctionnalité ou une idée
      • Résolution des problèmes de licences et autorisations
      • Signaler un problème ou un bug
      • Mises à jour du logiciel
      • Problèmes de logiciel
      • Formules | Les mathématiques, c'est amusant !
      Formations
      • Premiers pas avec RFEM
      • Premiers pas avec RSTAB
      • Formation en ligne
      • Formation chez Dlubal
      • Catalogue de formation
      • Formation Intra-entreprises
      • Vidéos
      • Vidéos d’e-learning
      • Webinaires Dlubal
      • Cours en ligne
      Service
      • Support / service client gratuit
      • Extranet | Mon compte
      • Contrat de service
      • Outil de géolocalisation pour la détermination des charges
      • Mises à jour et mises à niveau
      • Versions antérieures des logiciels Dlubal
      Vente
      • Boutique en ligne
      • Notre équipe commerciale
      • Contacter notre équipe commerciale
      • Demander une démonstration de produit en ligne
      • Pourquoi choisir Dlubal Software ?
      Assistante IA
      • Mia - Votre assistante IA disponible 24 h/24
      • Découvrez votre assistante IA personnelle
      Support technique et services gratuits

      Besoin d'aide ? Accédez à des options d'assistance gratuites incluant une assistance IA 24h/24 et 7j/7, un support par email et des webinaires.

      En savoir plus
      Support et services gratuits Support et service gratuits
      Trouver rapidement des réponses

      Trouvez des réponses rapides aux questions courantes concernant Dlubal Software. Recherchez ou filtrez des centaines de FAQ pour résoudre les problèmes en un rien de temps.

      Voir la FAQ
      FAQ FAQ | Version mobile
    • Nouveautés
      • Actualités
      • Nouvelles fonctionnalités de produit
      • S’abonner à la newsletter
      • Nouveaux programmes
      • Blog Dlubal
      Formations
      • Formations en ligne
      • Formation individuelle
      Événements
      • Vue d'ensemble des événements Dlubal
      • Conférences et salons
      • Webinaires
      Maîtriser l’ingénierie avec les webinaires

      Rejoignez les leaders de l'industrie et explorez des solutions en génie structurel et logiciel. Améliorez vos compétences avec nos sessions en direct !

      Voir les prochains webinaires
      3D FEA Software RFEM 6 | First Steps Menu Image de bannière | Actualités webinaires | Version mobile
      Libérez le pouvoir de l’innovation

      Découvrez des outils et améliorations de pointe conçus pour optimiser votre flux de travail en ingénierie.

      Découvrir les nouvelles fonctionnalités
      Explore New Features Image de bandeau de menu | Nouveaux_FonctionnalitésProduit | Version mobile
    • Télécharger la version complète

      Souhaitez-vous essayer les logiciels performants de Dlubal Software ? C’est possible ! Grâce à la version d’essai complète gratuite de 90 jours, vous pouvez tester entièrement toutes nos solutions.

      Télécharger la version d’essai
      Espace gratuit Dlubal

      Dans l’espace gratuit de Dlubal, vous avez accès à des webinaires, des articles et des versions d’essai - et ce, sur une seul et même plateforme.

      En savoir plus
      Exemples
      • Modèles de calcul de structure à télécharger
      • Soumettre un modèle de calcul de structure
      • Exemples introductifs et tutoriels
      • Exemples de vérification
      • Vue d'ensemble des figures
      Documentation
      • Manuels en ligne
      • Manuels
      • Dépliants, brochures et certificats
      Références
      • Projets clients
      • Pourquoi soumettre un projet client ?
      • Comment soumettre un projet client ?
      • Soumettre un projet client
      Télécharger des modèles gratuits

      Explorez des milliers de modèles structurels prêts à l'emploi. Téléchargez-les, adaptez-les et utilisez-les comme modèles pour accélérer votre processus de conception.

      Découvrir les modèles
      Modèles de calcul de structure à télécharger Modèles gratuits à télécharger | Version mobile
      Espace Dlubal

      Obtenez de l'aide d'experts quand vous en avez besoin. Profitez de l'assistance IA gratuite, du support par email, des webinaires en direct et des services premium pour les utilisateurs du contrat de service Pro.

      Obtenir de l’assistance
      Support et services gratuits Support et services gratuits | Version mobile - Dlubal Software
    • E-learning
      • RFEM 6 pour débutants
      • RFEM 6 pour les étudiants
      • Programmation avec RFEM 6 et Python
      • RFEM 6 avec Rhino & Grasshopper
      • RFEM 5 pour débutants
      • Modélisation avec RFEM 5
      • Vidéos d'apprentissage pour les étudiants
      • Tutoriels sur les logiciels Dlubal
      • Les meilleurs trucs et astuces pour RFEM
      • Formations en ligne enregistrées
      • Webinaires enregistrés
      Étudiants et établissements scolaires
      • Logiciels de calcul de structure gratuits pour les étudiants
      • Demander ou renouveler la licence étudiante gratuite
      • Demander une licence enseignante gratuite
      • Soumettre un mémoire de fin d’études
      • Pourquoi soumettre votre projet de fin d’études ?
      • Projets de fin d’études avec les logiciels de calcul de structure Dlubal
      • Logiciels de calcul de structure gratuits pour les universités et centres de formation
      • Demander un pack éducation
      • Formation d’introduction gratuite pour les universités
      • Demander une date de formation
      Plateforme de connaissance
      • Premiers pas avec RFEM
      • Vidéos
      • Manuels en ligne
      • Wiki du calcul de structure
      • Base de connaissance
      • Foire aux Questions (FAQ)
      Infodivertissement
      • Podcast
      • Blog Dlubal
      • Introduction au calcul de structure
      Premiers pas avec RFEM 6

      Faites vos premiers pas avec RFEM 6 et découvrez à quelle vitesse vous pouvez modéliser et calculer. Personnalisez avec des modules complémentaires pour encore plus de possibilités.

      Premiers pas
      3D FEA Software RFEM 6 | First Steps Menu Image de bannière | Actualités webinaires | Version mobile
      Logiciel de calcul de structure gratuit pour les étudiants

      Des milliers d'étudiants dans le monde bénéficient déjà des logiciels Dlubal. Profitez d'un accès gratuit, de formations et du soutien d'experts tout au long de vos études.

      Obtenir une version gratuite
      Logiciel de calcul de structures gratuit pour les étudiants Logiciel de calcul de structures gratuit pour étudiants
    • À propos
      • Historique et chiffres
      • Philosophie de la société
      • Pourquoi choisir Dlubal Software ?
      • Comparaison de produits
      • Politique de qualité
      • Notre équipe
      Contact
      • Sites de Dlubal Software dans le monde
      • Revendeur Dlubal agréés
      Références
      • Retours d'expérience
      • Projets clients
      • Études de cas
      • Pourquoi soumettre un projet client ?
      • Exemples de vérification
      • Votre avis
      • Participation à des projets de recherche
      Nos clients

      Nous présentons nos clients qui réalisent leurs projets avec les logiciels Dlubal. Découvrez comment nos clients du monde entier mettent en œuvre des solutions innovantes dans le domaine de la construction et de l’ingénierie à l’aide d’outils avancés pour les analyses statiques et dynamiques.

      Voir nos clients
      Réussir ensemble

      Découvrez comment les ingénieurs de premier plan à travers le monde font confiance à nos solutions pour élever leurs projets avec nous.

      Voir nos clients
      See Our Customers Image de bannière du menu | Entreprise_NosClients_Mobile
      Rencontrez les experts

      Nos ingénieurs dédiés sont là pour vous aider avec la modélisation, la conception et les défis techniques—à tout moment, n'importe où.

      Contacter le support
      Our Team Image de bannière de menu | Société_Notre équipe | Version mobile
    • Carrière
      • Offres d’emploi
      • Équipes
      • Blog des collègues
      • Informations
      Offres d’emploi
      • Toutes les offres d’emploi
      • Développement de produit
      • Support client
      • Vente
      • Marketing
      • Développement logiciel
      • Administration
      • Stagiaires
      • Autres
      Équipes
      • Développement de produits
      • Support client
      • Ventes
      • Marketing
      • Développement de logiciels
      • Administration
      Pourquoi choisir Dlubal ?
      • Culture d’entreprise
      • Avantages pour les employés
      Construisez votre avenir avec nous

      Découvrez comment notre équipe façonne l'avenir de l'ingénierie. Expérimentez l'innovation, la croissance et des défis passionnants.

      Carrière chez Dlubal Image de bannière de menu | Carrière chez Dlubal Mobile
      Trouvez l’emploi de vos rêves

      Rejoignez un leader mondial des logiciels d'ingénierie et faites passer votre carrière à un niveau supérieur.

      Découvrir les offres d’emploi
      All Open Positions Image de menu | Postes vacants sur mobile
    • Boutique en ligne
    Produits principaux
    Une icône RFEM 6 pour application de logiciel de calcul de structure.
    RFEM 6
    Icône RSTAB 9 sans bord
    RSTAB 9
    Icône RWIND 3 sans bord
    RWIND 3
    Icône RSECTION 1 sans bord
    RSECTION
    Services en ligne
    Icône de l’outil Geo-Zone Tool
    Outil de géolocalisation
    Propriétés de section
    Propriétés de section
    Icône API
    API
    Icône « Calcul dans le Cloud »
    Calcul dans le Cloud
    Modèles téléchargeables
    Télécharger le modèle
    Icône Communauté Dlubal
    Communauté Dlubal
    Icône Articles de la base de connaissances
    Base de connaissances
    Webinaires en ligne
    Webinaires
    Connectez-vous à votre compte

    Inscrivez-vous à l’Extranet Dlubal pour tirer le meilleur parti du logiciel et avoir un accès exclusif à vos données personnelles.

    Se connecter Créer un compte
    Essai gratuit de 90 jours
    Connectez-vous à votre compte

    Inscrivez-vous à l’Extranet Dlubal pour tirer le meilleur parti du logiciel et avoir un accès exclusif à vos données personnelles.

    Se connecter Créer un compte
    • Produits
    • Versions précédentes
    • Modules additionnels pour RFEM 5
    • Systèmes de canalisations
    • RF-PIPING Design
    Icône de raccourci RFEM Module additionnel pour RFEM 5 }
    calculator icon
    Nos prix
    Module additionnel pour RFEM 5
    RF-PIPING Design

    Module additionnel pour RFEM 5
    RF-PIPING Design

    Le module additionnel RF-PIPING Design est utilisé pour la vérification des systèmes de canalisations. Le module compare les contraintes existantes avec les contraintes admissibles selon les normes sélectionnées. Dans RF-PIPING Design, la vérification est basée sur la modélisation des tuyaux dans le module additionnel RF-PIPING.

    Ce module vous permet d'effectuer une analyse des contraintes des canalisations en considérant diverses charges et des déformations thermiques. Vous bénéficierez de fonctionnalités telles que la vérification des épaisseurs minimales de paroi, le calcul des contraintes pour différents types de charge et une documentation complète des résultats.

    Banner | Système de tuyauterie dans RFEM 5
    Module additionnel RF-PIPING Design pour RFEM | Vérification des canalisations
    • Visionneuse 3D
    • Visionneuse 3D | Babylon
    • Réalité virtuelle
    Raccord de tuyau paramétrique RFEM
    • Visionneuse 3D
    • Visionneuse 3D | Babylon
    • Réalité virtuelle
    Piping Design in RFEM
    • Visionneuse 3D
    • Visionneuse 3D | Babylon
    • Réalité virtuelle
    Aperçue d'une canalisation verticale incluant différents composants de tuyauterie
    • Visionneuse 3D
    • Visionneuse 3D | Babylon
    • Réalité virtuelle
    Rohrleitungssystem
    • Visionneuse 3D
    • Visionneuse 3D | Babylon
    • Réalité virtuelle
    Calcul et analyse
    • Visionneuse 3D
    • Visionneuse 3D | Babylon
    • Réalité virtuelle
    RF-PIPING Design
    • Visionneuse 3D
    • Visionneuse 3D | Babylon
    • Réalité virtuelle
    • Général
    • RF-PIPING Design 5
    • Systèmes de canalisations
      • Analyse des contraintes

    Fonctionnalités

    • Vérifications selon l'EN 13480-3, l'ASME B31.1-2012 et l'ASME B31.3-2012
    • Contrôle des épaisseurs de paroi minimum pour les tuyaux avec considération des tolérances de fabrication, de la corrosion et du coefficient de soudure
    • Analyse des contraintes pour les charges permanentes ou transitoires, ainsi que pour les dilatations thermiques
    • Résultats et graphiques dans le rapport d'impression de RFEM
    Représentation graphique de l'analyse des canalisations dans RFEM
    • Visionneuse 3D
    • Visionneuse 3D | Babylon
    • Réalité virtuelle
    • Calcul
    • RF-PIPING Design 5
    • Systèmes de canalisations
      • Analyse des contraintes

    Travailler avec RF-PIPING Design

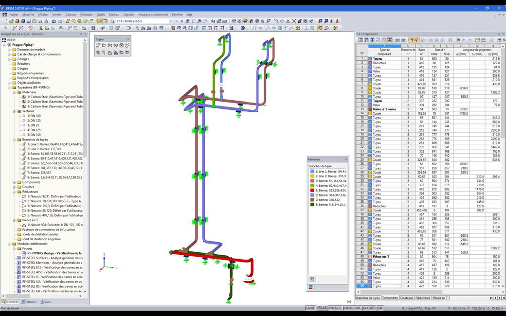
    Après avoir modélisé des systèmes de canalisations dans RFEM à l'aide de RF-PIPING et défini les charges ainsi que les combinaisons de charges et de résultats, vous pouvez effectuer une analyse des contraintes de tuyauterie dans le module additionnel RF-PIPING Design.

    Vous pouvez sélectionner tout ou seulement quelques canalisations et charges, combinaisons de charges ou de résultats pour la vérification des canalisations. La bibliothèque de matériaux contient différents matériaux conformes aux normes EN 13480-3, ASME B31.1-2012 et ASME B31.3-2012.

    Après le calcul, les résultats sont affichés dans des fenêtres clairement organisées. par section, par canalisation ou par barre. Vous pouvez également afficher graphiquement le ratio de vérification sur l'ensemble du modèle dans RFEM. Vous pouvez ainsi identifier rapidement les zones critiques ou surdimensionnées de la section.

    En plus des données d'entrée et des résultats, y compris les détails de vérification affichés dans les tableaux, vous pouvez intégrer tous les graphiques dans le rapport d'impression. De cette manière, une documentation compréhensible et clairement présentée est garantie. Vous avez la possibilité de sélectionner le contenu du rapport et l'étendue souhaitée de la sortie pour les vérifications individuelles.

    • Invitation à une démonstration en ligne de produit mettant en avant des fonctionnalités avancées du logiciel
      Demander une démonstration de produit en ligne

      Découvrez Dlubal en direct et organisez une démonstration de produit en ligne !

    • Bannière promotionnelle invitant à s’inscrire à l’essai gratuit de 90 jours des produits Dlubal.
      Version complète gratuite pendant 90 jours

      La manière la plus efficace de découvrir le logiciel Dlubal est de l'essayer vous-même.

    • Contactez notre équipe commerciale pour bénéficier d’un soutien d’expert sur les solutions logicielles avancées.
      Contacter l’équipe commerciale

      Nous sommes là pour vous !

    Boutique en ligne

    Sélectionnez des programmes et obtenez les tarifs immédiatement !

    • Famille de produits RFEM 5
    • Famille de produits RSTAB 8
    Accéder à la boutique en ligne

    Calculez votre prix

    2 180,00 USD
    RF-PIPING Design
    Montant total 2 180,00 USD

    Premiers pas avec RFEM 5

    Ici, les utilisateurs qui n’ont pas encore ou pas souvent travaillé avec RFEM trouveront des conseils et des astuces pour faciliter le démarrage avec nos logiciels.

    En savoir plus
    Vos premiers pas avec RFEM 5 Vos premiers pas avec RFEM 5

    Modèles de calcul de structure à télécharger

    Si vous êtes à la recherche de modèles pour vous entraîner ou comme source d'inspiration pour vos projets, vous êtes au bon endroit. Nous vous proposons de télécharger de nombreux modèles de calcul de structure pour RFEM, RSTAB ou RWIND.

    Tous les modèles
    Modèles techniques téléchargeables pour des analyses d’ingénierie précises Modèles techniques téléchargeables pour des analyses d’ingénierie précises

    Normes implémentées pour la vérification du béton armé

    Normes pour la vérification du béton

    Union européenne | Drapeau EN 1992-1-1:2004 + A1:2014 (Eurocode 2)
    FR | Drapeau ACI 318-14 (norme américaine)
    FR | Drapeau ACI 318-19 (norme américaine)
    Canada | Drapeau CSA A23.3-19 (norme canadienne)
    Russie | Drapeau SP 63.13330:2018 (norme russe)

    Annexes pour l'EN 1992-1-1

    DK | Drapeau DIN EN 1992-1-1/NA/A1:2015-12 (Allemagne)
    Autriche | Drapeau ÖNORM B 1992-1-1:2018-01 (Autriche)
    Suisse | Drapeau SN EN 1992-1-1/NA:2014-05 (Suisse)
    Union européenne | Drapeau CEN EN 1992-1-1/2014-11 (Union Européenne)
    CS | Drapeau CSN EN 1992-1-1/NA:2016-05 (République tchèque)
    Drapeau de la Croatie HRN EN 1992-1-1/NA:2015-10 (Croatie)
    Drapeau Luxembourg ILNAS EN 1992-1-1/NA:2020-03 (Luxembourg)
    Drapeau de l'Islande IST EN 1992-1-1/NA:2014-04 (Islande)
    Drapeau Norvège NS EN 1992-1-1 : 2004-NA : 2008 (Norvège)
    Drapeau de l'Estonie EVS EN 1992-1-1/NA:2021-04 (Estonie)
    Drapeau de la Biélorussie TKP EN 1992-1-1/NA:2009-12 (Bélarus)
    Drapeau de l'Irlande I.S. I. 1992-1-1/NA:2020-07 (Irland)
    Macédoine du Nord MKC EN 1992-1-1/NA:2010-01 (Macédoine du Nord)
    Bulgarie | Drapeau BDS EN 1992-1-1:2005/NA:2011 (Bulgarie)
    FR-FR | Drapeau BS EN 1992-1-1:2004/NA:2005 (Royaume-Uni)
    Drapeau de Chypre CYS EN 1992-1-1:2004/NA:2009 (Chypre)
    Drapeau Danemark EN 1992-1-1 DK NA:2017-06 (Danemark)
    Drapeau Danemark EN 1992-1-1 DK NA:2021-05 (Danemark)
    Drapeau Lituanie LST EN 1992-1-1:2005/NA:2019-06 (Lituanie)
    Drapeau Lettonie LVS EN 1992-1-1:2005/NA:2016-07 (Lettonie)
    Drapeau Lettonie LVS EN 1992-1-1:2005/NA:2020-09 (Lettonie)
    Drapeau de la Malaisie MS EN 1992-1-1:2010 (Malaisie)
    Drapeau Hongrie MSZ EN 1992-1-1:2004/A1:2016 (Hongrie)
    Drapeau Belgique NBN EN 1992-1-1 ANB:2010 (Belgique)
    Drapeau de la France NF EN 1992-1-1/NA: 2016-03 (France)
    Drapeau Portugal NP EN 1992-1-1/NA:2010-02 (Portugal)
    Drapeau de la Slovénie SIST EN 1992-1-1:2005/A101:2006 (Slovénie)
    Drapeau de la Roumanie SR EN 1992-1-1:2004/NA:2008 (Roumanie)
    Drapeau de Singapour SS EN 1992-1-1/NA:2008-06 (Singapour)
    Drapeau de la Suède SS EN 1992-1-1/NA:2014-12 (Suède)
    Drapeau de la Suède SS EN 1992-1-1 BFS 2019 (Suède)
    Drapeau Slovaquie STN EN 1992-1-1/NA:2008-06 (Slovaquie)
    Drapeau des Pays-Bas NEN-EN 1992-1-1+C2:2011/NB:2016 (Pays-Bas)
    Drapeau Pologne PN EN 1992-1-1/NA:2010-09 (Pologne)
    Drapeau Pologne PN EN 1992-1-1/NA:2018-11 (Pologne)
    Drapeau de la Finlande SFS EN 1992-1-1/NA:2015-01 (Finlande)
    Drapeau de l'Espagne UNE EN 1992-1-1/NA:2013 (Espagne)
    Drapeau de l'Italie UNI EN 1992-1-1/NA:2007-07 (Italie)
    Logiciels de calcul de structures
    Dlubal Software SARL

    32, rue de Cambrai
    75019 Paris
    France

    +33 9 80 40 58 20 [email protected]
    Dlubal Software GmbH

    Am Zellweg 2
    93464 Tiefenbach
    Allemagne

    +49 9673 9203-0 [email protected]
    Solutions
    • Structures en béton armé
    • Structures acier
    • Structures en bois
    • Assemblages acier
    Produits
    • RFEM 6
    • RSTAB 9
    • RSECTION 1
    • RWIND 3
    Support technique
    • Foire aux Questions (FAQ)
    • Poser une question
    • Carte des charges de neige, des vitesses de vent et des charges sismiques
    • Contacter notre équipe commerciale
    Actualités
    • S’abonner à la newsletter
    • Actualités
    • Vue d'ensemble des événements Dlubal
    • Formations en ligne
    Ressources
    • Télécharger la version d’essai complète
    • Soumettre un projet client
    • Projets clients
    • Manuels en ligne
    Rejoindre l'équipe Dlubal
    Communauté Dlubal YouTube Facebook Pinterest TikTok Instagram
    © 2001-2026 Dlubal Software GmbH | Tous droits réservés
    Mentions légales
    À propos
    Plan du site
    Langue
    • Deutsch
    • English
    • Français
    • Español
    • Português
    • Italiano
    • Česky
    • Polski
    • Pусский
    • 中文(简体)