Community
    Connectez-vous à votre compte

    Inscrivez-vous à l’Extranet Dlubal pour tirer le meilleur parti du logiciel et avoir un accès exclusif à vos données personnelles.

    Créer un compte
    En vous connectant à votre compte Dlubal, vous acceptez les conditions générales de vente de Dlubal Software. Veuillez consulter notre Politique de confidentialité et notre Politique de cookies.
    0
    Boutique en ligne
    Contactez l'équipe commerciale
    Langue
    • Deutsch
    • English
    • Français
    • Español
    • Português
    • Italiano
    • Česky
    • Polski
    • Pусский
    • 中文(简体)
    • Secteurs d’activités
      • Structures en béton armé
      • Structures en béton précontraint
      • Structures acier
      • Structures en bois
      • Structures en maçonnerie
      • Structures en aluminium et légères
      • Bâtiments
      • Structures industrielles
      • Systèmes de canalisation
      • Construction de pont
      • Grues et ponts roulants
      • Tours et pylônes
      • Structures en verre
      • Structure en toile tendue et structure textile
      • Structures à câbles et à réseaux de câbles
      • Structures stratifiées et sandwich
      • Structures temporaires
      • Construction d’échafaudages et de rayonnages
      • Structures offshore
      • Silos et réservoirs de stockage
      • Installations d'exploitation des énergies renouvelables
      • Structures solaires et systèmes de montage
      • Construction navale et structures flottantes
      • Structures de convoyage
      • Structures de forage
      • Piscines et parcs aquatiques
      • Structures de conteneurs
      • Fondations sur pieux forés
      • Escaliers
      • Centrales électriques
      • Ingénierie hydraulique acier
      • Génie mécanique
      • Structures à coussins gonflables en ETFE
      Champs d'application
      • Ingénierie structurale
      • Analyse selon la méthode des éléments finis (MEF)
      • Simulation des flux de vent et génération des charges de vent
      • Analyse des contraintes
      • Analyse non linéaire
      • Analyse de stabilité
      • Analyse de flambement non linéaire
      • Analyse de la torsion de gauchissement
      • Analyses dynamiques et sismiques
      • Analyse dynamique non linéaire
      • Analyse pushover
      • Recherche de forme et patrons de coupe
      • Assemblages acier
      • Planification orientée BIM
      • Profilés formés à froid
      • Interaction sol-structure
      • Calcul de façades
      • Fondations et géotechnique
      • Phases de construction
      • Résistance au feu
      Normes
      • Eurocodes (EC)
      • Normes allemandes (DIN)
      • Normes britanniques (BS EN, BS)
      • Normes techniques de construction Italienne (NTC)
      • Normes américaines
      • Normes canadiennes (CSA)
      • Normes australiennes (AS)
      • Normes suisses (SIA)
      • Normes chinoises (GB, HK)
      • Normes indiennes (IS)
      • Normes mexicaines (RCDF, CFE Sismo 15)
      • Normes russes (SP)
      • Normes sud-africaines (SANS)
      • Normes brésiliennes (NBR)
      Services en ligne
      • Icône dans le menu supérieur de l’outil de géolocalisation Carte des charges de neige, des vitesses de vent et des charges sismiques
      • Icône Calcul dans le Cloud Calculs dans le Cloud
      • Icône Wiki calcul de structure Wiki du calcul de structure
      • Icône Propriétés de section des sections acier et bois Propriétés de sections en acier
      Ingénierie des structures pour systèmes solaires

      Dlubal Software vous aide à créer et à vérifier tout système de montage solaire. Travaillez efficacement avec des structures en acier, en aluminium et en béton dans un seul environnement.

      Explorer les outils
      Structures solaires Structures solaires | Version mobile
      API Dlubal

      Le nouveau service API Dlubal (gRPC) vous fournit une interface flexible pour le logiciel d'analyse structurelle basée sur Python et C#, avec un accès direct à l'ensemble de la gamme de produits Dlubal.

      Débuter avec l’API
      Arrière-plan pour la bannière du menu principal API Arrière-plan pour la bannière du menu principal API
    • Une icône RFEM 6 pour application de logiciel de calcul de structure. RFEM 6 Le seul logiciel MEF pour tous vos projets

      RFEM 6 constitue la base de la famille modulaire de programmes et sert à la définition de structures, de matériaux et d'actions pour des systèmes porteurs en plaques, voiles, coques et barres ainsi que pour des solides.

      En savoir plus
      Icône de changement de module complémentaire Modules complémentaires
      • Analyses supplémentaires
      • Analyse dynamique
      • Solutions spéciales
      • Vérification
      • Assemblages
      Icône RSTAB 9 sans bord RSTAB 9 Logiciel de structures filaires emblématique

      Grâce à RSTAB, l'ingénieur structure a accès à un logiciel de structures filaires 3D qui répond aux exigences du calcul de structure moderne et reflète l'état actuel des techniques de construction.

      En savoir plus
      Icône de changement de module complémentaire Modules complémentaires
      • Analyses supplémentaires
      • Analyse dynamique
      • Solutions spéciales
      • Vérification
      Icône RSECTION 1 sans bord RSECTION 1 Calculs de section utilisateurs

      RSECTION aide les ingénieurs en structure en déterminant les caractéristiques des sections transversales pour une grande variété de profils et permet une analyse de contrainte subséquente.

      En savoir plus
      Icône RWIND 3 sans bord RWIND 3 Logiciel CFD pour souffleries numériques

      RWIND 3 est une soufflerie numérique pour la simulation des flux de vent autour de toutes géométries de bâtiments et pour le calcul des charges de vent sur leurs surfaces.

      En savoir plus
      Icône API API Dlubal Votre porte vers la modélisation paramétrique et l’automatisation

      Le nouveau service API de Dlubal (gRPC) vous offre une interface flexible basée sur Python et C# pour le logiciel de calcul de structure, avec un accès direct à toute la gamme de produits Dlubal. Profitez d’une intégration transparente et puissante dans votre logiciel Dlubal – idéal pour la modélisation paramétrique et les tâches d’optimisation complexes.

      Découvrir l’API
      Documentation de l’API Documentation API
      • Index
      • Premiers pas
      • Applications
      • Objets de modèle
      • Abonnements & prix
      • Exemples
      Analyse aux éléments finis pour les assemblages en acier

      Concevez et analysez des connexions en acier en utilisant le CBFEM, conforme aux normes EN 1993‑1‑8 et AISC 360, entièrement intégré dans RFEM 6 pour des flux de travail structurels plus rapides et plus précis.

      En savoir plus
      Assemblages acier Assemblages en acier
      Outil de zone géographique

      Le service en ligne Dlubal fournit des cartes de zones pour la détermination rapide des charges de neige, des vitesses de vent et des données sismiques.

      Zones de charge
      Outil de visualisation de zone géographique affichant des cartes de neige, de vent et sismiques avec des illustrations pour les évaluations des charges environnementales. Illustration des cartes des zones géographiques de neige, de vent et sismiques sur une version mobile montrant différentes régions et données.
      Versions précédentes
    • Support technique
      • Foire aux Questions (FAQ)
      • Base de connaissance
      • Fonctionnalités de produit
      • Licences
      • Poser une question
      • Notre équipe de support
      • Soumettre une fonctionnalité ou une idée
      • Résolution des problèmes de licences et autorisations
      • Signaler un problème ou un bug
      • Mises à jour du logiciel
      • Problèmes de logiciel
      • Formules | Les mathématiques, c'est amusant !
      Formations
      • Premiers pas avec RFEM
      • Premiers pas avec RSTAB
      • Formation en ligne
      • Formation chez Dlubal
      • Catalogue de formation
      • Formation Intra-entreprises
      • Vidéos
      • Vidéos d’e-learning
      • Webinaires Dlubal
      • Cours en ligne
      Service
      • Support / service client gratuit
      • Extranet | Mon compte
      • Contrat de service
      • Outil de géolocalisation pour la détermination des charges
      • Mises à jour et mises à niveau
      • Versions antérieures des logiciels Dlubal
      Vente
      • Boutique en ligne
      • Notre équipe commerciale
      • Contacter notre équipe commerciale
      • Demander une démonstration de produit en ligne
      • Pourquoi choisir Dlubal Software ?
      Assistante IA
      • Mia - Votre assistante IA disponible 24 h/24
      • Découvrez votre assistante IA personnelle
      Support technique et services gratuits

      Besoin d'aide ? Accédez à des options d'assistance gratuites incluant une assistance IA 24h/24 et 7j/7, un support par email et des webinaires.

      En savoir plus
      Support et services gratuits Support et service gratuits
      Trouver rapidement des réponses

      Trouvez des réponses rapides aux questions courantes concernant Dlubal Software. Recherchez ou filtrez des centaines de FAQ pour résoudre les problèmes en un rien de temps.

      Voir la FAQ
      FAQ FAQ | Version mobile
    • Nouveautés
      • Actualités
      • Nouvelles fonctionnalités de produit
      • S’abonner à la newsletter
      • Nouveaux programmes
      • Blog Dlubal
      Formations
      • Formations en ligne
      • Formation individuelle
      Événements
      • Vue d'ensemble des événements Dlubal
      • Conférences et salons
      • Webinaires
      Maîtriser l’ingénierie avec les webinaires

      Rejoignez les leaders de l'industrie et explorez des solutions en génie structurel et logiciel. Améliorez vos compétences avec nos sessions en direct !

      Voir les prochains webinaires
      3D FEA Software RFEM 6 | First Steps Menu Image de bannière | Actualités webinaires | Version mobile
      Libérez le pouvoir de l’innovation

      Découvrez des outils et améliorations de pointe conçus pour optimiser votre flux de travail en ingénierie.

      Découvrir les nouvelles fonctionnalités
      Explore New Features Image de bandeau de menu | Nouveaux_FonctionnalitésProduit | Version mobile
    • Télécharger la version complète

      Souhaitez-vous essayer les logiciels performants de Dlubal Software ? C’est possible ! Grâce à la version d’essai complète gratuite de 90 jours, vous pouvez tester entièrement toutes nos solutions.

      Télécharger la version d’essai
      Espace gratuit Dlubal

      Dans l’espace gratuit de Dlubal, vous avez accès à des webinaires, des articles et des versions d’essai - et ce, sur une seul et même plateforme.

      En savoir plus
      Exemples
      • Modèles de calcul de structure à télécharger
      • Soumettre un modèle de calcul de structure
      • Exemples introductifs et tutoriels
      • Exemples de vérification
      • Vue d'ensemble des figures
      Documentation
      • Manuels en ligne
      • Manuels
      • Dépliants, brochures et certificats
      Références
      • Projets clients
      • Pourquoi soumettre un projet client ?
      • Comment soumettre un projet client ?
      • Soumettre un projet client
      Télécharger des modèles gratuits

      Explorez des milliers de modèles structurels prêts à l'emploi. Téléchargez-les, adaptez-les et utilisez-les comme modèles pour accélérer votre processus de conception.

      Découvrir les modèles
      Modèles de calcul de structure à télécharger Modèles gratuits à télécharger | Version mobile
      Espace Dlubal

      Obtenez de l'aide d'experts quand vous en avez besoin. Profitez de l'assistance IA gratuite, du support par email, des webinaires en direct et des services premium pour les utilisateurs du contrat de service Pro.

      Obtenir de l’assistance
      Support et services gratuits Support et services gratuits | Version mobile - Dlubal Software
    • E-learning
      • RFEM 6 pour débutants
      • RFEM 6 pour les étudiants
      • Programmation avec RFEM 6 et Python
      • RFEM 6 avec Rhino & Grasshopper
      • RFEM 5 pour débutants
      • Modélisation avec RFEM 5
      • Vidéos d'apprentissage pour les étudiants
      • Tutoriels sur les logiciels Dlubal
      • Les meilleurs trucs et astuces pour RFEM
      • Formations en ligne enregistrées
      • Webinaires enregistrés
      Étudiants et établissements scolaires
      • Logiciels de calcul de structure gratuits pour les étudiants
      • Demander ou renouveler la licence étudiante gratuite
      • Demander une licence enseignante gratuite
      • Soumettre un mémoire de fin d’études
      • Pourquoi soumettre votre projet de fin d’études ?
      • Projets de fin d’études avec les logiciels de calcul de structure Dlubal
      • Logiciels de calcul de structure gratuits pour les universités et centres de formation
      • Demander un pack éducation
      • Formation d’introduction gratuite pour les universités
      • Demander une date de formation
      Plateforme de connaissance
      • Premiers pas avec RFEM
      • Vidéos
      • Manuels en ligne
      • Wiki du calcul de structure
      • Base de connaissance
      • Foire aux Questions (FAQ)
      Infodivertissement
      • Podcast
      • Blog Dlubal
      • Introduction au calcul de structure
      Premiers pas avec RFEM 6

      Faites vos premiers pas avec RFEM 6 et découvrez à quelle vitesse vous pouvez modéliser et calculer. Personnalisez avec des modules complémentaires pour encore plus de possibilités.

      Premiers pas
      3D FEA Software RFEM 6 | First Steps Menu Image de bannière | Actualités webinaires | Version mobile
      Logiciel de calcul de structure gratuit pour les étudiants

      Des milliers d'étudiants dans le monde bénéficient déjà des logiciels Dlubal. Profitez d'un accès gratuit, de formations et du soutien d'experts tout au long de vos études.

      Obtenir une version gratuite
      Logiciel de calcul de structures gratuit pour les étudiants Logiciel de calcul de structures gratuit pour étudiants
    • À propos
      • Historique et chiffres
      • Philosophie de la société
      • Pourquoi choisir Dlubal Software ?
      • Comparaison de produits
      • Politique de qualité
      • Notre équipe
      Contact
      • Sites de Dlubal Software dans le monde
      • Revendeur Dlubal agréés
      Références
      • Retours d'expérience
      • Projets clients
      • Études de cas
      • Pourquoi soumettre un projet client ?
      • Exemples de vérification
      • Votre avis
      • Participation à des projets de recherche
      Nos clients

      Nous présentons nos clients qui réalisent leurs projets avec les logiciels Dlubal. Découvrez comment nos clients du monde entier mettent en œuvre des solutions innovantes dans le domaine de la construction et de l’ingénierie à l’aide d’outils avancés pour les analyses statiques et dynamiques.

      Voir nos clients
      Réussir ensemble

      Découvrez comment les ingénieurs de premier plan à travers le monde font confiance à nos solutions pour élever leurs projets avec nous.

      Voir nos clients
      See Our Customers Image de bannière du menu | Entreprise_NosClients_Mobile
      Rencontrez les experts

      Nos ingénieurs dédiés sont là pour vous aider avec la modélisation, la conception et les défis techniques—à tout moment, n'importe où.

      Contacter le support
      Our Team Image de bannière de menu | Société_Notre équipe | Version mobile
    • Carrière
      • Offres d’emploi
      • Équipes
      • Blog des collègues
      • Informations
      Offres d’emploi
      • Toutes les offres d’emploi
      • Développement de produit
      • Support client
      • Vente
      • Marketing
      • Développement logiciel
      • Administration
      • Stagiaires
      • Autres
      Équipes
      • Développement de produits
      • Support client
      • Ventes
      • Marketing
      • Développement de logiciels
      • Administration
      Pourquoi choisir Dlubal ?
      • Culture d’entreprise
      • Avantages pour les employés
      Construisez votre avenir avec nous

      Découvrez comment notre équipe façonne l'avenir de l'ingénierie. Expérimentez l'innovation, la croissance et des défis passionnants.

      Carrière chez Dlubal Image de bannière de menu | Carrière chez Dlubal Mobile
      Trouvez l’emploi de vos rêves

      Rejoignez un leader mondial des logiciels d'ingénierie et faites passer votre carrière à un niveau supérieur.

      Découvrir les offres d’emploi
      All Open Positions Image de menu | Postes vacants sur mobile
    • Boutique en ligne
    Produits principaux
    Une icône RFEM 6 pour application de logiciel de calcul de structure.
    RFEM 6
    Icône RSTAB 9 sans bord
    RSTAB 9
    Icône RWIND 3 sans bord
    RWIND 3
    Icône RSECTION 1 sans bord
    RSECTION
    Services en ligne
    Icône de l’outil Geo-Zone Tool
    Outil de géolocalisation
    Propriétés de section
    Propriétés de section
    Icône API
    API
    Icône « Calcul dans le Cloud »
    Calcul dans le Cloud
    Modèles téléchargeables
    Télécharger le modèle
    Icône Communauté Dlubal
    Communauté Dlubal
    Icône Articles de la base de connaissances
    Base de connaissances
    Webinaires en ligne
    Webinaires
    Connectez-vous à votre compte

    Inscrivez-vous à l’Extranet Dlubal pour tirer le meilleur parti du logiciel et avoir un accès exclusif à vos données personnelles.

    Se connecter Créer un compte
    Essai gratuit de 90 jours
    Connectez-vous à votre compte

    Inscrivez-vous à l’Extranet Dlubal pour tirer le meilleur parti du logiciel et avoir un accès exclusif à vos données personnelles.

    Se connecter Créer un compte
    • Produits
    • Analyse aux éléments finis (AEF)
    • Modules complémentaires pour RFEM 6
    • Solutions spéciales
    • Surfaces multicouches (ex. stratifié, CLT) pour RFEM 6
    Icône pour RFEM 6 | Dlubal Software Surfaces multicouches (ex. stratifié, CLT)
    Manuels en ligne
    • Manuel d'utilisation | Surfaces multicouches
    • Tutoriel pour RFEM 6
    • RFEM 6 / RSTAB 9 | Vos premiers pas
    }
    calculator icon
    Nos prix
    Surfaces multicouches (ex. stratifié, CLT) pour RFEM 6

    Surfaces multicouches (ex. stratifié, CLT) pour RFEM 6

    Le module complémentaire Surfaces multicouches permet de définir des structures de surface multicouches.

    Vous pouvez créer une matrice de rigidité globale locale à partir de la composition de couches définie par l’utilisateur. Ce module complémentaire convient, par exemple, pour la définition d’éléments en bois lamellé-croisé, de béton armé textile, de vitrages isolants, de plastique renforcé de fibres, etc. La vérification est effectuée dans les modules complémentaires tels que Vérification du bois.

    Banner | Surfaces multicouches (ex. stratifié, CLT) pour RFEM 6

    Définition de surfaces multicouches telles que des surface stratifiées ou en bois lamellé-croisé (CLT)

    Nombre total d'articles : 3
    Contraintes dans la surface en bois lamellé-croisé
    • Général
    • Vérification du bois pour RFEM 6
    • Structures bois
      • Eurocode 5

    Surfaces multi-couches | Fonctionnalités

    • Définition flexible de différentes compositions de couches
    • Efficacité élevée grâce aux données d'entrée minimales
    • Flexibilité grâce aux options de paramétrage détaillées pour les principes de base et le champ d'action du calcul
    • Génération d'une matrice de rigidité globale locale de la surface dans RFEM en fonction du modèle de matériau sélectionné et des couches incluses
    • Affichage graphique de l'orientation des couches individuelles
    • Définition des éléments de panneau en bois à l'aide du type d'épaisseur « Panneau de poutre »
    Composition de couches du panneau de verre feuilleté
    Type d'épaisseur - Couches
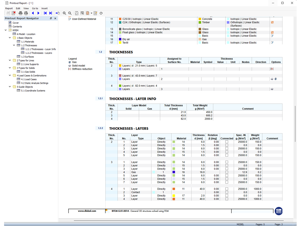
    Graphique de la structure des couches dans le rapport d'impression
    Contraintes dans les surfaces en bois lamellé-croisé
    • Général
    • Structures en panneaux CLT, stratifiés et sandwich
    • Eurocode 5

    Surfaces multi-couches | Procédure

    Notez que toutes les entrées du module complémentaire Surfaces multicouches concernant les matériaux, combinaisons de charges et de résultats doivent correspondre au concept de calcul de la norme. La bibliothèque de matériaux contient déjà les matériaux qui vous conviennent. RFEM vous permet de générer automatiquement des combinaisons de charges et de résultats selon la norme. Vous pouvez créer ces combinaisons manuellement si vous le souhaitez.

    Vous pouvez modifier la structure de couche à partir de laquelle la rigidité de la surface est calculée. Vous avez également la possibilité d'ajuster les paramètres spécifiés à votre guise en sélectionnant le modèle de matériau. Vous avez ainsi une totale liberté de choix pour générer les rigidités.

    Le matériau sélectionné détermine également les contraintes limites de chaque couche. Vous pouvez également ajuster ces valeurs selon vos besoins. La composition de couches est assignée comme type d'épaisseur à n'importe quelle surface.

    Déformations des surfaces en bois lamellé-croisé
    Contraintes dans les surfaces en bois lamellé-croisé
    Définition des couches dans le rapport d'impression
    Graphique de la structure des couches dans le rapport d'impression
    • Général
    • Structures en panneaux CLT, stratifiés et sandwich

    Surfaces multicouches | Résultats

    Les rigidités contiennent toutes les formules de vérification, y compris les références de la norme, afin que vous puissiez suivre avec précision les vérifications.

    Toutes les données d'entrée et de résultat font partie du rapport d'impression de RFEM. Vous pouvez sélectionner le contenu du rapport et l'étendue souhaitée des données pour les différentes vérifications. Par conséquent, vous obtiendrez l'affichage exact que vous souhaitiez.

    • Invitation à une démonstration en ligne de produit mettant en avant des fonctionnalités avancées du logiciel
      Demander une démonstration de produit en ligne

      Découvrez Dlubal en direct et organisez une démonstration de produit en ligne !

    • Bannière promotionnelle invitant à s’inscrire à l’essai gratuit de 90 jours des produits Dlubal.
      Version complète gratuite pendant 90 jours

      La manière la plus efficace de découvrir le logiciel Dlubal est de l'essayer vous-même.

    • Contactez notre équipe commerciale pour bénéficier d’un soutien d’expert sur les solutions logicielles avancées.
      Contacter l’équipe commerciale

      Nous sommes là pour vous !

    Boutique en ligne

    Configurez votre propre package de logiciels et trouvez les prix en ligne !

    • Famille de programmes RFEM 6
    • Famille de programmes RSTAB 9
    Accéder à la boutique en ligne

    Calculez votre prix

    1 850,00 USD
    +110,00 USD
    Bâtiment en bois lamellé-croisé (CLT)
    Montant total 1 960,00 USD

    Premiers pas avec RFEM 6

    Vous n'avez pas encore travaillé avec RFEM ou très peu ? Voici des conseils et astuces utiles pour vous familiariser avec les logiciels Dlubal.

    En savoir plus
    Premiers pas dans l’interface RFEM 6 avec menus et barres d’outils reconnaissables Capture d’écran montrant l’interface graphique initiale de RFEM 6 avec les options de configuration

    Modèles de calcul de structure à télécharger

    Parcourez une vaste gamme de modèles pour le calcul de structures avec RFEM, RSTAB, RSECTION et RWIND. Parfait pour l’entrainement ou comme source d’inspiration pour vos projets.

    Télécharger les modèles
    Modèles techniques téléchargeables pour des analyses d’ingénierie précises Vue mobile affichant des modèles de calcul téléchargeables avec vignettes et étiquettes visibles
    Logiciels de calcul de structures
    Dlubal Software SARL

    32, rue de Cambrai
    75019 Paris
    France

    +33 9 80 40 58 20 [email protected]
    Dlubal Software GmbH

    Am Zellweg 2
    93464 Tiefenbach
    Allemagne

    +49 9673 9203-0 [email protected]
    Solutions
    • Structures en béton armé
    • Structures acier
    • Structures en bois
    • Assemblages acier
    Produits
    • RFEM 6
    • RSTAB 9
    • RSECTION 1
    • RWIND 3
    Support technique
    • Foire aux Questions (FAQ)
    • Poser une question
    • Carte des charges de neige, des vitesses de vent et des charges sismiques
    • Contacter notre équipe commerciale
    Actualités
    • S’abonner à la newsletter
    • Actualités
    • Vue d'ensemble des événements Dlubal
    • Formations en ligne
    Ressources
    • Télécharger la version d’essai complète
    • Soumettre un projet client
    • Projets clients
    • Manuels en ligne
    Rejoindre l'équipe Dlubal
    Communauté Dlubal YouTube Facebook Pinterest TikTok Instagram
    © 2001-2026 Dlubal Software GmbH | Tous droits réservés
    Mentions légales
    À propos
    Plan du site
    Langue
    • Deutsch
    • English
    • Français
    • Español
    • Português
    • Italiano
    • Česky
    • Polski
    • Pусский
    • 中文(简体)