Community
    Přihlásit se ke svému účtu

    Zaregistrujte se do extranetu Dlubal, abyste získali většinu softwaru a měli exkluzivní přístup k vašim osobním údajům.

    Vytvořit účet
    Přihlášením vyjadřujete souhlas se Všeobecnými obchodními podmínkami společnosti Dlubal Software. Přečtěte si prosím naše Prohlášení o ochraně osobních údajů a naše Prohlášení o používání cookies.
    0
    E-shop
    Kontaktovat prodejní tým
    Jazyk
    • Deutsch
    • English
    • Français
    • Español
    • Português
    • Italiano
    • Česky
    • Polski
    • Pусский
    • 中文(简体)
    • Odvětví
      • Železobetonové konstrukce
      • Předpjaté betonové konstrukce
      • Ocelové konstrukce
      • Dřevěné konstrukce
      • Zděné konstrukce
      • Hliníkové a lehké konstrukce
      • Budovy
      • Průmyslové konstrukce a zařízení
      • Potrubní systémy
      • Mostní konstrukce
      • Jeřáby a jeřábové dráhy
      • Věže a stožáry
      • Skleněné konstrukce
      • Membránové a textilní konstrukce
      • Lanové a napínací konstrukce
      • Laminátové a sendvičové konstrukce
      • Dočasné stavby
      • Lešenářské a regálové konstrukce
      • Příbřežní konstrukce
      • Sila, vodojemy a zásobní nádrže
      • Stavby pro získávání obnovitelných zdrojů energie
      • Solární konstrukce a montážní systémy
      • Lodní konstrukce a plovoucí tělesa
      • Dopravníkové konstrukce
      • Vrtací konstrukce
      • Bazény, aquaparky a koupaliště
      • Kontejnerové stavby
      • Vrtané piloty
      • Schodišťové konstrukce
      • Elektrárny
      • Ocelové vodní stavby
      • Strojní konstrukce
      • Pneumatické konstrukce
      Oblasti použití
      • Statika konstrukcí
      • Výpočty metodou konečných prvků (MKP)
      • Simulace větru a generování zatížení větrem
      • Analýza napětí
      • Nelineární výpočty
      • Posouzení stability
      • Nelineární analýza boulení
      • Analýza vázaného kroucení
      • Dynamická a seizmická analýza
      • Nelineární dynamika
      • Pushover analýza
      • Form-finding a střihové vzory
      • Ocelové přípoje
      • Projektování metodou BIM
      • Profily tvarované za studena
      • Interakce konstrukce s podložím
      • Statika fasádních systémů
      • Základy a základové konstrukce
      • Fáze výstavby
      • Požární odolnost
      Normy
      • Eurokódy (EC)
      • Německé normy (DIN)
      • Britské normy (BS EN, BS)
      • Italské normy (NTC)
      • Americké normy
      • Kanadské normy (CSA)
      • Australské normy (AS)
      • Švýcarské normy (SIA)
      • Čínské normy (GB, HK)
      • Indické normy (IS)
      • Mexické normy (RCDF, CFE Sismo 15)
      • Ruské normy (SP)
      • Jižněafrické normy (SANS)
      • Brazilské normy (NBR)
      Online služby
      • Nástroj pro stanovení oblastí zatížení – ikona horního menu Mapy zatížení sněhem, rychlosti větru a seizmického zatížení
      • Ikona pro výpočet v cloudu Výpočty v cloudu
      • Ikona Statická analýza Wiki Wiki pro statiku
      • Ikona Průřezové charakteristiky ocelových a dřevěných průřezů Průřezové charakteristiky ocelových průřezů
      Statický výpočet konstrukce pro solární systémy

      Dlubal Software vám pomáhá vytvářet a ověřovat různé solární montážní systémy. Pracujte efektivně s ocelovými, hliníkovými a betonovými konstrukcemi v jediné aplikaci.

      Prozkoumat nástroje
      Solární konstrukce Solární konstrukce | Mobilní verze
      Dlubal API

      Nová Dlubal API služba (gRPC) vám poskytuje flexibilní rozhraní pro software pro statickou analýzu založený na Pythonu a C# s přímým přístupem ke kompletnímu sortimentu produktů Dlubal.

      Začněte s API
      Pozadí pro hlavní menu banneru API Pozadí pro hlavní menu banneru API
    • Ikona reprezentující RFEM 6, softwarovou aplikaci pro výpočty pomocí metody konečných prvků. RFEM 6 Jediný program pro statické výpočty, který potřebujete

      RFEM 6 slouží jako základ modulární rodiny programů a používá se k definování konstrukcí, materiálů a účinků pro deskové, stěnové, skořepinové a nosníkové konstrukce, jakož i pro tělesa a kontaktní prvky.

      Více informací
      Ikona přepnutí addonu Addony
      • Doplňkové analýzy
      • Dynamická analýza
      • Speciální řešení
      • Dimenzování
      • Přípoje
      Ikona programu RSTAB 9 bez ohraničení RSTAB 9 Ikonický program pro rámové a příhradové konstrukce

      RSTAB 9 je výkonný program pro analýzu 3D prutových konstrukcí, který statikům pomáhá vyhovět požadavkům moderního stavebního inženýrství a odráží nejnovější trendy v oboru.

      Více informací
      Ikona přepnutí addonu Addony
      • Doplňková analýza
      • Dynamická analýza
      • Speciální řešení
      • Navrhování
      Ikona RSECTION 1 bez ohraničení RSECTION 1 Výpočty uživatelských průřezů

      RSECTION podporuje stavební inženýry tím, že určuje průřezové charakteristiky pro širokou škálu průřezů a umožňuje následnou analýzu napětí.

      Více informací
      Ikona RWIND 3 bez ohraničení RWIND 3 CFD software pro digitální větrné tunely

      RWIND 3 je digitální větrný tunel pro simulaci proudění větru kolem libovolných geometrických tvarů budov a pro výpočet větrných zatížení na jejich povrchy.

      Více informací
      Ikona API Dlubal API Vaše brána do parametrického modelování a automatizace

      Nová Dlubal API služba (gRPC) vám nabízí flexibilní rozhraní pro statický software na bázi Pythonu a C#, s přímým přístupem k celé škále produktů Dlubal. Využijte plynulou a výkonnou integraci do vašeho Dlubal softwaru – ideální pro parametrické modelování a komplexní optimalizační úlohy.

      Objevte API
      Dokumentace API Dokumentace API
      • Index
      • Začínáme
      • Aplikace
      • Objekty modelu
      • Předplatné a ceny
      • Příklady
      MKP pro ocelové spoje

      Navrhujte a analyzujte ocelové spoje pomocí CBFEM, v souladu s EN 1993‑1‑8 a AISC 360, plně integrované v programu RFEM 6 pro rychlejší a přesnější konstrukční pracovní postupy.

      Více informací
      Ocelové spoje Ocelové spoje
      Nástroj Geo-zóny

      Online služba Dlubal poskytuje mapy oblastí pro rychlé stanovení sněhových zatížení, rychlostí větru a seizmických údajů.

      Kontrolovat zatížení zón
      Nástroj Geo-zone vizuálně zobrazuje mapy sněhu, větru a seizmické mapy s ilustracemi pro posouzení zatížení prostředím. Ilustrace map geo-zón sněhu, větru a seizmické aktivity v mobilní verzi zobrazující různé regiony a data.
      Starší produkty
    • Podpora
      • Často kladené dotazy (FAQ)
      • Databáze znalostí
      • Funkce programů
      • Licencování
      • Položit individuální dotaz
      • Náš tým technické podpory
      • Navrhnout novou funkci programu nebo vlastní nápad
      • Řešení problémů s licencováním & autorizací
      • Nahlásit problém nebo chybu
      • Aktualizace programu
      • Problémy v programu
      • Vzorce | Matematika je zábava!
      Školení
      • První kroky s programem RFEM
      • První kroky s programem RSTAB
      • Online školení
      • Školení ve firmě Dlubal
      • Individuální školení
      • Videa
      • E-learningová videa
      • Webináře – Informace a vzdělávání online
      • Online kurzy
      Servis
      • Bezplatná podpora / servis
      • Extranet | Můj účet
      • Servisní smlouva
      • Geo-Zone Tool pro stanovení zatížení
      • Aktualizace a upgrady
      • Starší verze programů
      Prodej
      • E-shop
      • Náš obchodní tým
      • Kontaktovat obchodní oddělení
      • Domluvte si online prezentaci
      • Proč Dlubal Software
      Asistentka podpory s využitím AI
      • Mia – Vaše nonstop AI asistentka
      • Seznamte se se svou osobní AI asistentkou
      Bezplatná podpora a servis

      Potřebujete pomoc? Využijte bezplatné možnosti podpory, včetně 24/7 AI asistence, e-mailové podpory a webinářů.

      Další informace
      Bezplatná podpora a servis Bezplatná podpora a servis
      Rychle najít odpovědi

      Najděte rychlé odpovědi na časté otázky týkající se softwaru Dlubal. Vyhledejte nebo filtrujte stovky často kladených dotazů a vyřešte svůj problém během chvilky.

      Zobrazit FAQ
      Často kladené dotazy (FAQ) FAQ | Mobilní verze
    • Novinky
      • Aktuální novinky
      • Nové funkce v produktech
      • Přihlásit se k odběru novinek
      • Nové programy
      • Dlubal blog
      Školení
      • Online školení
      • Individuální školení
      Události
      • Přehled událostí
      • Veletrhy/Semináře
      • Webinář
      Ovládněte statiku pomocí webinářů

      Připojte se ke špičkám v oboru a objevte řešení v oblasti stavebního inženýrství a softwaru. Rozšiřte své dovednosti díky našim přednáškám naživo!

      Sledujte další webináře
      3D FEA Software RFEM 6 | First Steps Obrázek v záhlaví nabídky | Novinky Webináře | Mobilní verze
      Využijte sílu inovací

      Objevte nejmodernější nástroje a vylepšení pro efektivnější práci v oblasti inženýrství.

      Prozkoumejte nové funkce
      Prozkoumejte nové funkce Obrázek banneru nabídky | Novinky_Vlastnosti produktu | Mobilní verze
    • Stáhnout plnou verzi

      Chcete si vyzkoušet sílu programů Dlubal? Je to vaše příležitost! S bezplatnou 90denní plnou verzí si můžete všechny naše programy plně otestovat.

      Spustit zkušební verzi nyní
      Bezplatná zóna Dlubal

      V bezplatné zóně Dlubal máte přístup k webinářům, článkům a možnostem vyzkoušení softwaru – vše zdarma a přehledně na jednom místě.

      Více informací
      Příklady
      • Statické modely ke stažení
      • Poskytnout statický model
      • Úvodní příklady a tutoriály
      • Verifikační příklady
      • Přehled obrázků
      Dokumenty
      • Online manuály
      • Příručky
      • Letáky, brožury a certifikáty
      Reference
      • Projekty zákazníků
      • Proč u nás zveřejnit svůj projekt?
      • Jak mohu postoupit svůj projekt ke zveřejnění?
      • Zveřejnit projekt
      Modely ke stažení zdarma

      Prozkoumejte tisíce hotových konstrukčních modelů. Stáhněte je, přizpůsobte si je a použijte jako šablony, které urychlí váš proces navrhování.

      Objevte modely
      Statické modely ke stažení Bezplatné modely ke stažení | Mobilní verze
      Bezplatná zóna Dlubal

      Získejte odbornou pomoc, kdykoli ji potřebujete. Využijte bezplatnou podporu pomocí umělé inteligence, e-mailovou podporu, webináře naživo a prémiové služby pro uživatele Servisní smlouvy Pro.

      Získejte podporu
      Bezplatná podpora a servis Bezplatná podpora a servis | Mobilní verze
    • E-learning
      • RFEM 6 pro začátečníky
      • RFEM 6 pro studenty
      • Programování v programu RFEM 6 a Python
      • RFEM 6 s programem Rhino & Grasshopper
      • RFEM 5 pro začátečníky
      • Modelování s programem RFEM 5
      • Videolekce statiky pro studenty
      • Krátké tutoriály k programům Dlubal
      • Nejlepší tipy a triky v programu RFEM
      • Záznamy online Dlubal školení
      • Záznamy Dlubal webinářů
      Studenti a školy
      • Programy pro statické výpočty studentům zdarma
      • Vyžádání nebo prodloužení studentské verze zdarma
      • Žádost o bezplatnou verzi pro pedagogy
      • Zveřejnit diplomovou práci
      • Proč u nás zveřejnit svou diplomovou práci?
      • Závěrečné práce s programem Dlubal Software
      • Software pro statiku školám zdarma
      • Vyžádat nabídku
      • Úvodní školení pro vysoké školy zdarma
      • Zažádat o termín školení
      Platforma znalostí
      • První kroky s programem RFEM
      • Videa
      • Online manuály
      • Wiki pro statiku
      • Databáze znalostí
      • Často kladené dotazy (FAQ)
      Infotainment
      • Podcast
      • Dlubal blog
      • Úvod do statické analýzy
      První kroky s programem RFEM 6

      Udělejte své první kroky s RFEM 6 a zjistěte, jak rychle můžete modelovat a počítat. Přizpůsobte si ho přidáním modulů pro ještě více možností.

      Začít
      3D FEA Software RFEM 6 | First Steps Obrázek v záhlaví nabídky | Novinky Webináře | Mobilní verze
      Programy pro statickou analýzu pro studenty zdarma

      Tisíce studentů po celém světě již těží z Dlubal Software. Využívejte bezplatný přístup, školení a odbornou podporu po celou dobu svých studií.

      Získat bezplatnou licenci
      Software pro statické výpočty zdarma pro studenty Software pro statické výpočty pro studenty zdarma
    • O společnosti
      • Historie a čísla
      • Filozofie naší společnosti
      • Proč Dlubal Software?
      • Srovnání produktů
      • Politika kvality
      • Náš tým
      Kontakt
      • Pobočky Dlubal po celém světě
      • Autorizovaní distributoři produktů Dlubal
      Reference
      • Recenze uživatelů
      • Projekty zákazníků
      • Případové studie
      • Proč u nás zveřejnit svůj projekt?
      • Verifikační příklady
      • Vaše recenze
      • Účast na výzkumných projektech
      Naši zákazníci

      Představujeme naše zákazníky, kteří realizují své projekty s Dlubal Software. Zjistěte, jak naši zákazníci po celém světě implementují inovativní řešení ve stavebnictví a inženýrství pomocí pokročilých nástrojů pro statické a dynamické analýzy.

      Podívejte se na naše zákazníky
      Budujme úspěch společně

      Zjistěte, jak špičkoví inženýři z celého světa důvěřují našim řešením a spolupracují s námi na zdokonalování svých projektů.

      Podívejte se na naše zákazníky
      Zobrazit naše zákazníky Obrázek v záhlaví nabídky | Společnost_Naši zákazníci_Mobilní zařízení
      Sejděte se s odborníky

      Naši specializovaní inženýři jsou vám k dispozici, aby vám pomohli s modelováním, posouzením a technickými výzvami – kdykoli a kdekoli.

      Spojte se s podporou
      Náš tým Obrázek v záhlaví nabidky | Společnost_Náš tým | Mobilní verze
    • Kariéra
      • Pracovní nabídky
      • Týmy
      • Blog zaměstnanců
      • Postřehy
      Pracovní nabídky
      • Všechny pracovní nabídky
      • Vývoj produktů
      • Zákaznická podpora
      • Prodej
      • Marketing
      • Vývoj softwaru
      • Administrativa
      • Stážisté
      • Ostatní
      Týmy
      • Vývoj produktů
      • Zákaznický servis
      • Obchod
      • Marketing
      • Vývoj softwaru
      • Administrativa
      Proč Dlubal?
      • Firemní kultura
      • Zaměstnanecké výhody
      Budujte svou budoucnost s námi

      Zjistěte, jak náš tým utváří budoucnost stavebnictví. Zažijte inovace, růst a zajímavé výzvy.

      Kariéra ve společnosti Dlubal Obrázek v záhlaví nabídky | Kariéra ve společnosti Dlubal Mobile
      Najděte svou vysněnou práci

      Přidejte se k přednímu světovému výrobci softwaru pro statické výpočty a posuňte svou kariéru na novou úroveň.

      Prohlédněte si aktuální nabídky práce
      Všechny pracovní nabídky Obrázek banneru nabídky | Volná pracovní místa Mobilní zařízení
    • E-shop
    Hlavní produkty
    Ikona reprezentující RFEM 6, softwarovou aplikaci pro výpočty pomocí metody konečných prvků.
    RFEM 6
    Ikona programu RSTAB 9 bez ohraničení
    RSTAB 9
    Ikona RWIND 3 bez ohraničení
    RWIND 3
    Ikona RSECTION 1 bez ohraničení
    RSECTION
    Online služby
    Ikona nástroje pro stanovení oblastí zatížení
    Nástroj pro stanovení oblastí zatížení
    Průřezové charakteristiky
    Průřezové charakteristiky
    Ikona API
    API
    Ikona výpočtu v cloudu
    Výpočty v cloudu
    Modely ke stažení
    Modely ke stažení
    Ikona komunity Dlubal
    Komunita Dlubal
    Ikona článků databáze znalostí
    Databáze znalostí
    Online webináře
    Webináře
    Přihlásit se ke svému účtu

    Zaregistrujte se do extranetu Dlubal, abyste získali většinu softwaru a měli exkluzivní přístup k vašim osobním údajům.

    Přihlásit se Vytvořit účet
    Trial verze 90 dní zdarma
    Přihlásit se ke svému účtu

    Zaregistrujte se do extranetu Dlubal, abyste získali většinu softwaru a měli exkluzivní přístup k vašim osobním údajům.

    Přihlásit se Vytvořit účet
    • Produkty
    • Metoda konečných prvků (MKP)
    • Addony pro RFEM 6
    • Speciální řešení
    • Vícevrstvé plochy (např. laminát, CLT) pro RFEM 6
    Ikona RFEM 6 | Dlubal Software Vícevrstvé plochy (např. laminát, CLT)
    Online manuály
    • Manuál | Vícevrstvé plochy
    • Tutoriál pro RFEM 6
    • RFEM 6 / RSTAB 9 | Začínáme
    }
    calculator icon
    Ceny
    Vícevrstvé plochy (např. laminát, CLT) pro RFEM 6

    Vícevrstvé plochy (např. laminát, CLT) pro RFEM 6

    Addon Vícevrstvé plochy vám umožňuje zadávat vícevrstvé skladby ploch.

    Z uživatelsky zadané skladby vrstev se vytvoří lokální celková matice tuhosti. Addon je vhodný například pro zadávání prvků z křížem lepeného dřeva, textilního betonu, izolačního skla, vláknových kompozitů a dalších. Vlastní posouzení se provádí v addonech, jako je Posouzení dřevěných konstrukcí.

    Banner | Vícevrstvé plochy (např. laminát, CLT) pro RFEM 6

    Zadání vícevrstvých ploch jako laminátových ploch nebo křížem lepeného dřeva (CLT)

    Celkový počet: 3
    Napětí na ploše z křížem lepeného dřeva
    • Obecné
    • Posouzení dřevěných konstrukcí pro RFEM 6
    • Dřevěné konstrukce
      • Eurocode 5

    Vícevrstvé plochy | Základní funkce

    • Flexibilní zadání různých uspořádání vrstev
    • Vysoká efektivita díky velmi malému požadovanému množství vstupních dat
    • Flexibilita na základě podrobného nastavení postupů a rozsahu výpočtu
    • Generování lokální matice celkové tuhosti plochy v programu RFEM na základě vybraného materiálového modelu a obsažených vrstev
    • Grafické znázornění orientace jednotlivých vrstev
    • Zadání dřevěných deskových prvků pomocí typu tloušťky "Nosníkový panel"
    Vrstvená skladba desek z vrstveného skla
    Typ tloušťky - vrstvy
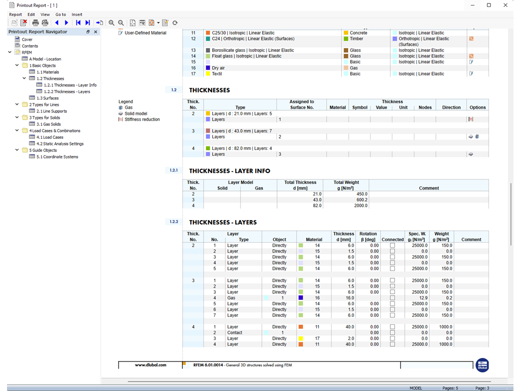
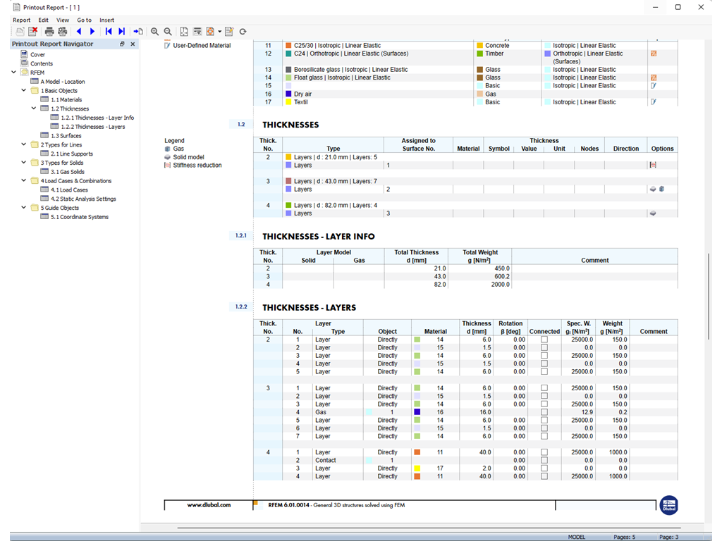
    Obrázek struktury vrstev v tiskovém protokolu
    Napětí na plochách z křížem lepeného dřeva
    • Obecné
    • Laminátové a sendvičové konstrukce
    • Eurocode 5

    Vícevrstvé plochy | Postup

    Dejte pozor, aby všechny údaje v addonu Vícevrstvé plochy týkající se materiálů, kombinací zatížení a kombinací výsledků odpovídaly metodě posouzení podle normy. Vhodné materiály jsou již pro vás připraveny v databázi materiálů. RFEM vám umožňuje automaticky generovat kombinace zatížení a kombinace výsledků v souladu s požadavky normy. Pokud chcete, můžete tyto kombinace ovšem vytvořit i ručně.

    Skladbu vrstev, z níž se vychází při výpočtu tuhosti plochy, můžete libovolně měnit. Parametry, které jsou nastaveny výběrem materiálového modelu, můžete dále upravovat. Při generování tuhostí tak máte zcela svobodnou volbu.

    Zvolený materiál také definuje mezní napětí každé vrstvy. I tyto hodnoty můžete upravit podle svých potřeb. Skladba vrstev se libovolné ploše přiřazuje jako typ tloušťky.

    Deformace ploch z křížem lepeného dřeva
    Napětí na plochách z křížem lepeného dřeva
    Definice vrstev v tiskovém protokolu
    Obrázek struktury vrstev v tiskovém protokolu
    • Obecné
    • Laminátové a sendvičové konstrukce

    Vícevrstvé plochy | Výsledky

    U tuhostí jsou uvedeny všechny vzorce včetně odkazu na normu, takže můžete posouzení sami přesně ověřit.

    Veškerá vstupní a výstupní data jsou přitom součástí tiskového protokolu programu RFEM. Pro jednotlivá posouzení můžete cíleně zvolit obsah protokolu a požadovaný rozsah výstupu. Nakonec tak máte přesně to, co jste chtěli.

    • Pozvání na online představení produktu zaměřené na pokročilou funkcionalitu softwaru
      Dohodnout online prezentaci produktů

      Vyzkoušejte si Dlubal naživo a sjednejte si online demo!

    • Propagační banner zvoucí k registraci na bezplatnou 90denní zkušební verzi produktů Dlubal
      Plná verze zdarma na 90 dní

      Nejefektivnější způsob, jak poznat software Dlubal, je vyzkoušet si ho sám.

    • Kontaktujte náš prodejní tým pro odbornou podporu pokročilých softwarových řešení.
      Kontaktovat obchodní tým

      Jsme tu pro vás!

    E-shop

    Sestavte si svůj individuální balíček programů! Veškeré ceny najdete v online přehledu.

    • Rodina RFEM 6
    • Rodina RSTAB 9
    Přejděte do e-shopu

    Spočítejte si cenu

    1 850,00 USD
    +110,00 USD
    Budova z křížem lepeného dřeva (CLT)
    Celková částka 1 960,00 USD

    Začínáme s programem RFEM 6

    Ještě jste nepracovali nebo jste nepracovali příliš často s RFEM? Zde naleznete užitečné informace a tipy, které vám usnadní práci s programy Dlubal.

    Další informace
    Začínáme v uživatelském rozhraní RFEM 6 s jasně viditelnými nabídkami a panely nástrojů Snímek obrazovky ukazující počáteční uživatelské prostředí programu RFEM 6 s možnostmi nastavení

    Statické modely ke stažení

    Prohlédněte si rozsáhlou řadu modelů pro statické výpočty pro programy RFEM, RSTAB, RSECTION a RWIND. Ideální pro tutoriály nebo inspiraci pro projekty.

    Stáhnout modely
    Šablony statických modelů ke stažení pro přesnou inženýrskou analýzu. Mobilní zobrazení s konstrukčními modely ke stažení a s viditelnými náhledy a popisky.
    Software pro navrhování a statické výpočty konstrukcí
    Dlubal Software s.r.o.

    Anglická 28
    120 00 Praha
    Česká republika

    +420 227 203 203 [email protected]
    Dlubal Software GmbH

    Am Zellweg 2
    93464 Tiefenbach
    Německo

    +49 9673 9203-0 [email protected]
    Řešení
    • Železobetonové konstrukce
    • Ocelové konstrukce
    • Dřevěné konstrukce
    • Ocelové přípoje
    Produkty
    • RFEM 6
    • RSTAB 9
    • RSECTION 1
    • RWIND 3
    Podpora
    • Často kladené dotazy (FAQ)
    • Položit individuální dotaz
    • Mapy zatížení sněhem, rychlosti větru a seizmického zatížení
    • Kontaktovat obchodní oddělení
    Novinky
    • Přihlásit se k odběru novinek
    • Aktuální novinky
    • Přehled událostí
    • Online školení
    Zdroje
    • Plná zkušební verze zdarma
    • Zveřejnit projekt
    • Projekty zákazníků
    • Online manuály
    Přidejte se i Vy k Dlubal
    Komunita Dlubal YouTube Facebook Pinterest TikTok Instagram
    © 2001–2026 Dlubal Software GmbH | Všechna práva vyhrazena
    Právní poučení
    O společnosti
    Mapa stránek
    Jazyk
    • Deutsch
    • English
    • Français
    • Español
    • Português
    • Italiano
    • Česky
    • Polski
    • Pусский
    • 中文(简体)