1272x
002711
28.03.2019

Module d'élasticité de l'état II pour RF-CONCRETE Deflect

Est-il possible d'afficher les résultats du module d'élasticité de l'état II (calcul avec RF-CONCRETE Deflect) par élément ?


Réponse:

Le module d'élasticité à l'état II n'est pas directement affiché dans les résultats du calcul de la flèche.

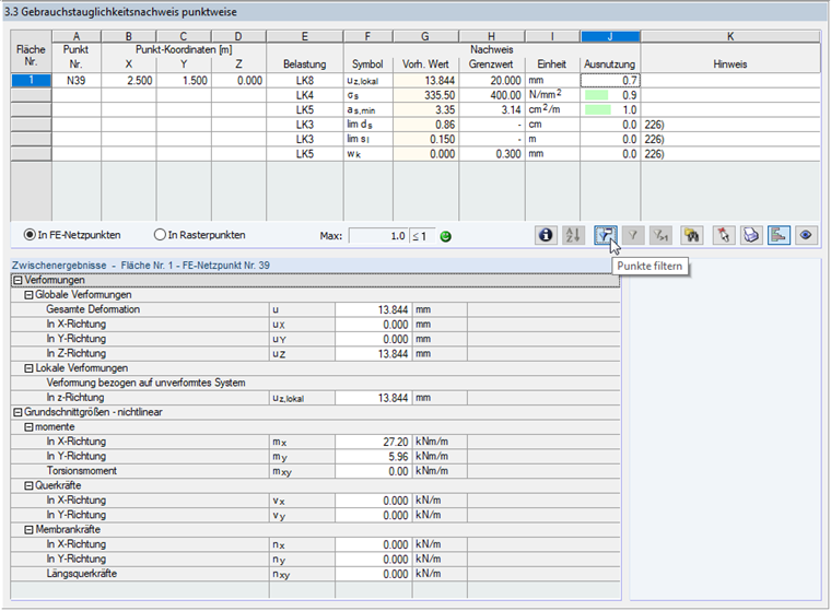
Cependant, vous pouvez passer à la fenêtre de résultats « 3.3 État limite de service par point » et filtrer un maillage EF ou un point de grille dont vous souhaitez voir les détails de vérification (voir la Figure 01).

Dans le tableau, sélectionnez la ligne de résultat pour la déformation « uz,locale ».

Cliquez ensuite sur le bouton [i] pour afficher les détails du calcul pour le point sélectionné.

Les détails de la vérification contiennent les valeurs intermédiaires pour l'analyse des déformations, telles que le moment d'inertie de la section aux états I et II, le coefficient de distribution zêta et les propriétés finales de la section Voir la Figure 02.

Étant donné que ces valeurs intermédiaires sont toujours déterminées lorsque vous ouvrez le tableau des détails de calcul et sont toujours affichées et enregistrées temporairement pour ce point, les valeurs intermédiaires ne peuvent pas être affichées graphiquement pour la surface calculée.


Auteur

M. Kieloch fournit une assistance technique aux clients de Dlubal Software et est responsable du développement dans le domaine des structures en béton armé.



;