1850x
004412
04.05.2020

Symétrie incorrecte lors du calcul de sections SHAPE-THIN dans RF-/ALUMINIUM

Vérification d'une section SHAPE-THIN impossible en raison d'une symétrie non valide. Pourquoi et comment puis-je résoudre ce problème ?


Réponse:

RF-/ALUMINIUM vérifie la symétrie des sections quelconques et les compare avec l'évaluation réalisée dans SHAPE-THIN si la case « Déterminer la symétrie par le module et la comparer avec la définition de SHAPE-THIN » est cochée (voir la Figure 01).

Lorsque les deux méthodes donnent des résultats différents, le message d'erreur correspondant s'affiche (voir la Figure 02).

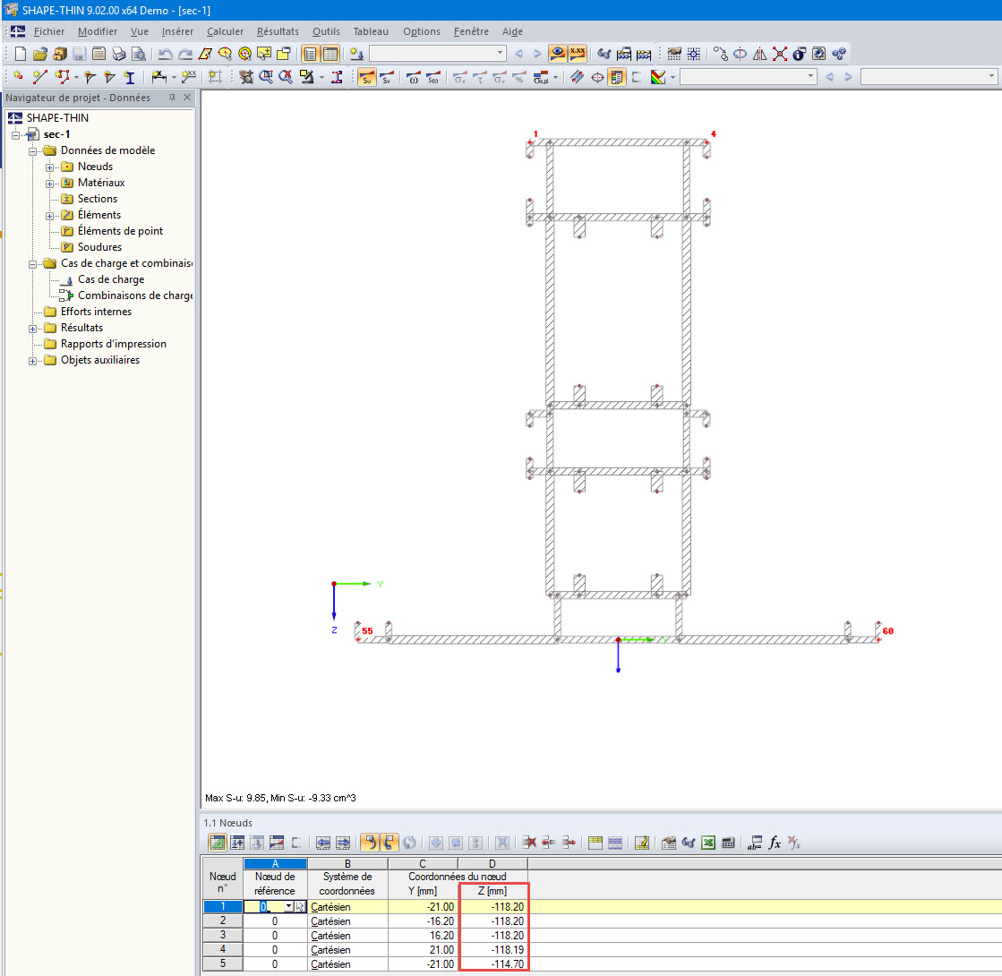
Il n'est pas rare que la section SHAPE-THIN présente de légères imprécisions. La section Sec-1.du9 sur la Figure 03 n'est par exemple pas parfaitement symétrique par rapport à l'axe Z : les coordonnées en Z des nœuds 1 et 4 ainsi que des nœuds 55 et 60 ne correspondent pas à la deuxième décimale.

SHAPE-THIN classe la section comme asymétrique et RF-/ALUMINIUM comme monosymétrique par rapport à l'axe z et le message d'erreur de la Figure 02 s'affiche.

La symétrie de la section SHAPE-THIN doit être vérifiée. Lorsque vous modélisez une section dans SHAPE-THIN, il est utile de n'afficher qu'un seul côté et de créer l'autre moitié en miroir. Cette opération est expliquée dans la vidéo.


Auteur

Mme von Bloh fournit une assistance technique à nos utilisateurs et est également responsable du développement du programme SHAPE-THIN et de la construction en acier et en aluminium.

Téléchargements


;