Odpověď:
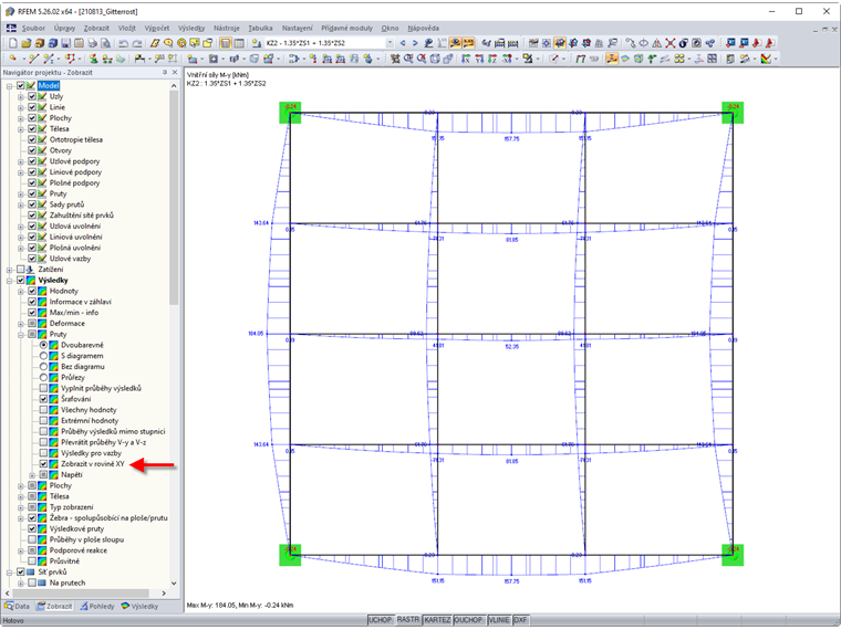
Ano, to je možné i pro výsledky na prutech.
Tuto možnost lze nastavit v navigátoru Zobrazit u zobrazení výsledků na prutech.
Zaregistrujte se do extranetu Dlubal, abyste získali většinu softwaru a měli exkluzivní přístup k vašim osobním údajům.
Zaregistrujte se do extranetu Dlubal, abyste získali většinu softwaru a měli exkluzivní přístup k vašim osobním údajům.
Zaregistrujte se do extranetu Dlubal, abyste získali většinu softwaru a měli exkluzivní přístup k vašim osobním údajům.
Ano, to je možné i pro výsledky na prutech.
Tuto možnost lze nastavit v navigátoru Zobrazit u zobrazení výsledků na prutech.
Ing. Hoffmann poskytuje technickou podporu zákazníkům společnosti Dlubal Software a je zodpovědný za koordinaci veškerých odborných dotazů a činností.