V tomto příspěvku předvedeme použití průřezu z kategorie "Parametrické - tenkostěnné" v programu RFEM 6 vytvořeného podle příkladu metody LRFD v příručce AISC Design Guide 15: Rehabilitation and Retrofit [2]. Addon Posouzení ocelových konstrukcí využijeme k posouzení nevyztuženého i vyztuženého sloupu podle kapitoly E normy AISC.
Níže je uveden příklad 6.2 z AISC Design Guide 15 [2], kde se pro 16 stop dlouhý sloup používá historický tvar průřezu AISC W10X66 (Fy = 33 ksi).
V následujících krocích je popsán postup vytváření uživatelsky definovaného průřezu a materiálu.
Vytvoření uživatelsky definovaného průřezu W10X66
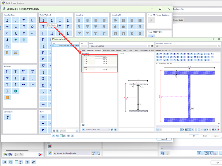
- V databázi průřezů vyberte "Tenkostěnný I-profil". Poté zadejte geometrické vlastnosti uvedené v tabulce 5-2.1 (Design Guide 15 [2], str. 50). Dalším krokem je vytvoření nového uživatelsky definovaného materiálu pro ocel Fy = 33 ksi pomocí tlačítka "Převzít materiál z databáze".
- Přejděte na záložku „Základní údaje“ v dialogu „Nový průřez“. Otevřete Databázi matiálů a poté vytvořte nový materiál na základě "Oceli A36". V dalším okně vyberte "Uživatelsky zadaný materiál", přejděte do další záložky "Materiálové hodnoty", a upravte Fy na 33 ksi.
- Narýsujte 16 stop dlouhý prut. Ve spodní části sloupu je třeba zajistit kloubovou podporu (se zamezením rotace okolo osy Z). Horní podpora zamezuje pouze posunu ve směru X a Y. Působí osové zatížení = 550 kips (vlastní + užitné zatížení).
- Řešte model v addonu Posouzení ocelových konstrukcí.
Jak je ukázáno výše, požadovaná pevnost překračuje aktuální pevnost o 23 %, a proto sloup vyžaduje vyztužení ocelovými deskami (Fy = 36 ksi) přivařenými k pásnicím sloupu. Předpokládejme, že výztužné desky jsou osazeny po celé délce sloupu.
Pozor: Menší rozdíly v pevnosti v tlaku mezi modelem RFEM a analytickým výpočtem příkladu z AISC [2] jsou způsobeny rozdílem v plochách průřezu (radius rohu průřezu není v programu RFEM uvažován).
Vytvoření uživatelsky zadaného vyztuženého sloupu W10X66 s deskami z oceli A36
Přivařené výztužné desky zvýší jak plochu, tak moment setrvačnosti sloupu. To má za následek zvýšenou pevnost v tlaku, jak je stanoveno v AISC, čl. E3 [1].
Návrh vyztužení je iterační proces, který se nejlépe provádí pomocí tabulky. Tento článek představuje pouze výsledné řešení, kdy jsou k pásnicím sloupu přivařeny dvě krycí desky 3/8 palce tlusté a 8 palců široké, jak je znázorněno níže.
- V databázi průřezů vyberte "I-profil symetrický podle jedné osy a se 2 plochými ocelemi". Poté zadejte geometrické rozměry sloupu W10x66 a výztužných desek 3/8 x 8 palců. Vyberte stejný uživatelsky definovaný materiál "Ocel Fy = 33", který byl vytvořen dříve (podle AISC Design Guide 15 [2], "Stávající sloup má mez kluzu Fy = 33 ksi, zatímco výztužné desky mají mez kluzu Fy = 36 ksi. Pro výpočet dostupné tlakové pevnosti sloupu zohledníme na straně bezpečnosti mez kluzu 33 ksi pro celý vyztužený průřez sloupu.“).
- Opakujte stejný postup při zadávání sloupu a zatížení. Model spočítáme pomocí addonu Posouzení ocelových konstrukcí. Jak je znázorněno níže, vyztužený sloup splňuje požadavky na posouzení.
Kontrola požadavků na složené sloupy podle AISC, čl. E6 a návrh svarů
V čl. E6.1 [1] AISC jsou přípoje na koncích výztužných desek navrženy pro plné zatížení v tlaku v desce. Navrhněte koncové spoje pro mez kluzu výztužných desek.
Na obou stranách výztužné desky použijte koutové svary 1/4 palce. Tloušťka pásnice je tf = 0,748 palce a výztužné desky 3/8 palce, takže velikost svaru splňuje minimální požadavky na velikost podle AISC, tabulky J2.4 [1].
|
lweld |
Délka svaru |
|
Pu |
Zatížení tlakem na desku (1) = Fy . Ag |
|
Fy |
Mez kluzu desky = 36 ksi |
|
Ag |
Hrubá plocha desky (1) = 0,375 in x 8,0 in = 3,0 in2 |
|
ΦRn |
Návrhová únosnost svaru na palec |
Tato délka svaru odpovídá normativnímu požadavku AISC, čl. E6.2(b) [1], aby délka koncového svaru nebyla menší než maximální šířka prutu.
Použijte podélný svar 1/4" x 10 na obou stranách na koncích desek.
V čl. E6.1 (b) AISC [1] se vyžaduje upravený štíhlostní poměr pro složené sloupy, pokud je a/ri > 40, kde a je vzdálenost mezi svary. Aby nemusel být použit upravený štíhlostní poměr, měla by být maximální vzdálenost koutových svarů omezena na:
|
ri |
Poloměr setrvačnosti (1) desky |
|
Ixi |
bt3/12 = [(8.0in) . (0.375in)3]/12 =0.0352in4 (jedna deska) |
|
Ai |
Plocha (1) desky = t w = (0.375in)(8in) = 3.0in2 |
|
amax |
Maximální vzdálenost mezi přerušovanými koutovými svary |
Použijte přerušované spojovací svary o délce 1,5 palce ve vzdálenosti 4 palce ve středu (čl. J2.2b pro minimální délku svaru). Délka svaru 1,5 palce splňuje kritéria 4*velikosti svaru a minimální délku 1,5 palce.
Podle AISC, čl. E6.2 (a) [1] musí být jednotlivé části tlačených prutů spojeny ve vzdálenostech a tak, aby poměrná štíhlost a/ri nepřekročila 3/4 rozhodujícího štíhlostního poměru složeného prutu.
|
a |
Intervaly svarů |
|
ri |
Poloměr setrvačnosti desky (1) |
|
Lc |
Délka sloupu bez výztuhy = 16 ft = 192 in |
|
ro |
Minimální poloměr setrvačnosti v železobetonovém průřezu (rz v RFEM) |
Z AISC, čl. E6.2 (b) [1] dále plyne, že maximální vzdálenost přerušovaných svarů nesmí překročit tloušťku desky krát 0,75 √(E/Fy) ani 12 palců.
|
t |
Tloušťka desky |
|
E |
Modul pružnosti |
|
Fy |
Pevnost vyztužené části |
Konečný návrh vyztuženého sloupu je uveden níže.
Jak jsme si ukázali ve výše uvedeném příkladu, v programu RFEM lze pomocí „Parametrického - tenkostěnného“ průřezu vypočítat geometrické vlastnosti běžně používaných složených prutů. Addon Posouzení ocelových konstrukcí vypočítá návrhové pevnosti prutu a provede posouzení podle normy.