In diesem Beitrag wird die Verwendung des in RFEM 6 verfügbaren „parametrischen dünnwandigen” Querschnitts anhand eines LRFD-Beispiels aus dem AISC Design Guide 15: Rehabilitation and Retrofit [2] demonstriert. Das Add-On Stahlbemessung wird verwendet, um den Nachweis sowohl für unbewehrte als auch für bewehrte Stützen gemäß AISC Kapitel E durchzuführen.
Nachstehend ist Beispiel 6.2 aus dem AISC Design Guide 15 [2] dargestellt, in dem die historische AISC-Form W10X66 (Fy = 33 ksi) für die 16 Fuß lange Stütze verwendet wird.
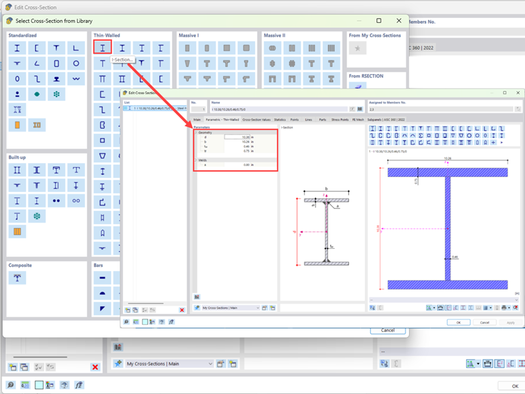
Die folgenden Schritte beschreiben das Verfahren zum Erstellen eines benutzerdefinierten Querschnitts und Materials.
Erstellen eines benutzerdefinierten W10X66-Querschnitts
- Wählen Sie in der Querschnittbibliothek das „Dünnwandige I-Profil“ aus. Geben Sie dann die geometrischen Eigenschaften aus Tabelle 5-2.1 (Seite 50 des Design Guide 15 [2]) ein. Im nächsten Schritt erstellen Sie mit der Schaltfläche „Aus Materialbibliothek importieren“ ein neues benutzerdefiniertes Material für Stahl mit Fy = 33 ksi.
- Navigieren Sie zum Reiter „Basis“ unter „Neuer Querschnitt“. Öffnen Sie die Materialbibliothek und erstellen Sie ein neues Material auf Basis von „Stahl A36“. Wählen Sie im nächsten Fenster „Benutzerdefiniertes Material“ aus, wechseln Sie zum nächsten Register „Materialwerte“ und ändern Sie Fy auf 33 ksi.
- Zeichnen Sie den 16 Fuß langen Stab. Bringen Sie eine gelenkige Lagerung (Z-Rotation fest) an der Unterseite der Stütze an. Für die Lagerung an der Oberseite ist nur die Verschiebung in X- und Y-Richtung fest. Tragen Sie eine Normallast = 550 kips (Eigen- + Nutzlast) auf.
- Lösen Sie das Modell mit dem Add-On Stahlbemessung.
Wie oben gezeigt, übersteigt die erforderliche Festigkeit die verfügbare Festigkeit um 23 %, weshalb die Stütze mit Verstärkungsplatten aus Stahl (Fy = 36 ksi) versehen werden muss, die an die Stützenflansche geschweißt werden. Es wird davon ausgegangen, dass die Verstärkungsplatten über die gesamte Stützenlänge angebracht werden.
Hinweis: Die geringfügigen Abweichungen in der Druckfestigkeit zwischen dem RFEM-Modell und dem AISC-Handberechnungsbeispiel [2] sind auf den Unterschied in den Querschnittsflächen zurückzuführen (ein Eckenradius ist im RFEM-Querschnitt nicht enthalten).
Erstellen einer benutzerdefinierten verstärkten W10X66-Stütze mit A36-Stahlplatten
Die geschweißten Verstärkungsplatten vergrößern sowohl die Fläche als auch das Trägheitsmoment der Stütze. Dies führt zu einer erhöhten Druckfestigkeit, wie in der AISC-Spezifikation Abschnitt E3 [1] festgelegt.
Die Bemessung der Bewehrung ist ein iterativer Prozess, der am besten mit einer Tabellenkalkulation durchgeführt wird. Diese Lösung zeigt nur die endgültige Ausführung, bei der zwei 3/8 Zoll dicke und 8 Zoll breite Deckplatten an die Stützenflansche geschweißt werden, wie unten dargestellt.
- Wählen Sie in der Querschnittbibliothek „Einfachsymmetrisches I-Profil mit 2 Flachstählen” aus. Geben Sie dann die geometrischen Eigenschaften der W10x66-Stütze und der 3/8 Zoll x 8 Zoll großen Verstärkungsplatten ein. Wählen Sie dasselbe benutzerdefinierte Material „Stahl Fy =33”, das zuvor erstellt wurde (gemäß AISC Design Guide 15 [2], „hat die vorhandene Stütze eine Streckgrenze von Fy = 33 ksi, während die Verstärkungsplatten eine Streckgrenze von Fy = 36 ksi haben. Für die Berechnung der verfügbaren Druckfestigkeit der Stütze ist konservativ eine Streckgrenze von 33 ksi für den gesamten verstärkten Stützenquerschnitt anzunehmen.”).
- Wiederholen Sie den zuvor beschriebenen Vorgang zum Zeichnen der Stütze und zum Aufbringen der Lasten. Lösen Sie das Modell mit dem Add-On Stahlbemessung. Wie unten dargestellt, erfüllt die bewehrte Stütze die Anforderungen der Bemessungsnorm.
Überprüfen der Anforderungen für zusammengesetzte Stützen gemäß AISC Abschnitt E6 und Bemessen von Schweißnähten
Gemäß AISC-Spezifikation Abschnitt E6.1 [1] werden die Verbindungen an den Enden der Verstärkungsplatten für die volle Drucklast in der Platte bemessen. Bemessen Sie die Endverbindungen für die Streckgrenze der Verstärkungsplatten.
Verwenden Sie 1/4-Zoll-Kehlnähte auf beiden Seiten der Verstärkungsplatte. Die Flanschdicke beträgt tf = 0,748 Zoll und die Verstärkungsplatte ist 3/8 Zoll dick, sodass die Schweißnahtgröße die Mindestanforderungen der Tabelle J2.4 der AISC-Spezifikation erfüllt [1]. Die erforderliche Schweißnahtlänge beträgt:
|
lweld |
Länge der Schweißnaht |
|
Pu |
Drucklast von (1) Platte = Fy . Ag |
|
Fy |
Streckgrenze der Platte = 36 ksi |
|
Ag |
Bruttofläche von (1) Platte = 0,375 Zoll x 8,0 Zoll = 3,0 Zoll2 |
|
ΦRn |
Bemessungsfestigkeit der Schweißnaht pro Zoll |
Diese Schweißnahtlänge erfüllt die vorgeschriebene Anforderung aus AISC Abschnitt E6.2(b) [1], dass die Endschweißnahtlänge nicht geringer sein darf als die maximale Breite des Stabs.
Verwenden Sie eine 1/4“-Schweißnaht x 10 Zoll lange Längsschweißnähte auf beiden Seiten an den Enden der Platten.
Gemäß AISC Abschnitt E6.1(b) [1] ist ein modifizierter Schlankheitsgrad für zusammengesetzte Stützen erforderlich, wenn a/ri > 40 ist, wobei a der Abstand zwischen den Schweißnähten ist. Um die Verwendung einer modifizierten Schlankheit zu vermeiden, sollte der maximale Abstand zwischen unterbrochenen Kehlnähten begrenzt werden auf:
|
ri |
Trägheitsradius von (1) Platte |
|
Ixi |
bt3/12 = [(8,0 Zoll) . (0,375 Zoll)3]/12 = 0,0352 Zoll4 (eine Platte) |
|
Ai |
Fläche von (1) Platte = t w = (0,375 Zoll) (8 Zoll) = 3,0 Zoll2 |
|
amax |
Maximaler Abstand zwischen den unterbrochenen Kehlnähten |
Verwenden Sie unterbrochene Verbindungsnähte mit einer Länge von 1,5 Zoll und einem Abstand von 4 Zoll in der Mitte (Abschnitt J2.2b(e) für die Mindestnahtlänge). Eine 1,5 Zoll lange Naht erfüllt die Anforderungen hinsichtlich 4*Nahtgröße und 1,5 Zoll Minimum.
Gemäß AISC Abschnitt E6.2(a) [1] müssen die einzelnen Komponenten von Druckstäben in Abständen a so verbunden werden, dass der Schlankheitsgrad a/ri das 3/4-fache des maßgeblichen Schlankheitsgrades des zusammengesetzten Stabs nicht überschreitet.
|
a |
Schweißintervalle |
|
ri |
Trägheitsradius von (1) Platte |
|
Lc |
Verschiebliche Länge der Stütze = 16 ft = 192 in |
|
ro |
Minimaler Trägheitsradius des bewehrten Profils (rz in RFEM) |
Gemäß AISC Abschnitt E6.2(b) [1] darf der maximale Abstand von unterbrochenen Schweißnähten weder die Plattendicke mal 0,75 √(E/Fy) noch 12 Zoll überschreiten.
|
t |
Plattendicke |
|
E |
Elastizitätsmodul |
|
Fy |
Streckgrenze des bewehrten Profils |
Die endgültige Bemessung der bewehrten Stütze ist unten dargestellt.
Wie aus dem obigen Beispiel ersichtlich ist, kann der RFEM-Querschnitt „Parametrisch - Dünnwandig” zur Berechnung der geometrischen Eigenschaften häufig verwendeter zusammengesetzter Stäbe verwendet werden. Das Add-On Stahlbemessung berechnet die Bemessungsfestigkeiten des Stabes und führt die Normprüfung durch.