Community
    Sign in to your account

    Sign up for the Dlubal Extranet to get most of the software and have exclusive access to your personal data.

    Create Account
    By signing-in you agree to Dlubal Conditions of Use & Sale. Please see our Privacy Notice, our Cookies Notice.
    0
    Webshop
    Contact Sales Team
    Language
    • Deutsch
    • English
    • Français
    • Español
    • Português
    • Italiano
    • Česky
    • Polski
    • Pусский
    • 中文(简体)
    • Industries
      • Reinforced Concrete Structures
      • Prestressed Concrete Structures
      • Steel Structures
      • Wood & Mass Timber Structures
      • Masonry Structures
      • Aluminum and Lightweight Structures
      • Buildings
      • Industrial Structures and Plants
      • Pipelines
      • Bridge Structures
      • Cranes and Craneways
      • Towers and Masts
      • Glass Structures
      • Tensile Membrane Structures
      • Cable and Tensile Structures
      • Laminate and Sandwich Structures
      • Temporary Structures
      • Scaffolding and Rack Structures
      • Offshore Structures
      • Silos and Storage Tanks
      • Renewable Energy Plants
      • Solar Structures & Mounting Systems
      • Shipbuilding and Floating Bodies
      • Conveyor Structures
      • Drilling Structures
      • Swimming Pools and Water Parks
      • Container Structures
      • Drilled Pile Foundations
      • Staircase Structures
      • Power Plants
      • Hydraulic Steel Engineering
      • Mechanical Engineering
      • Pneumatic Structures
      Application Areas
      • Structural Engineering
      • Finite Element Analysis (FEA)
      • Wind Simulation and Wind Load Generation
      • Stress Analysis
      • Nonlinear Analysis
      • Stability Analysis
      • Nonlinear Buckling Analysis
      • Warping Torsion Analysis
      • Dynamic and Seismic Analysis
      • Nonlinear Dynamic Analysis
      • Pushover Analysis
      • Form-Finding and Cutting Patterns
      • Steel Joints
      • BIM Planning
      • Cold-Formed Sections
      • Soil-Structure Interaction
      • Facade Analysis
      • Foundations and Foundation Engineering
      • Construction Stages
      • Fire Resistance
      Standards
      • Eurocodes (EC)
      • German Standards (DIN)
      • British Standards (BS EN, BS)
      • Italian Standards (NTC)
      • US Standards
      • Canadian Standards (CSA)
      • Australian Standards (AS)
      • Swiss Standards (SIA)
      • Chinese Standards (GB, HK)
      • Indian Standards (IS)
      • Mexican Standards (RCDF, CFE Sismo 15)
      • Russian Standards (SP)
      • South African Standards (SANS)
      • Brazilian Standards (NBR)
      Online Services
      • Geo-Zone Tool Top Menu Icon Snow Load, Wind Speed, and Seismic Load Maps
      • Cloud Calculation Icon Cloud Calculations
      • Structural Analysis Wiki Icon Structural Analysis Wiki
      • Cross-Section Properties of Steel and Timber Sections Icon Cross-Section Properties of Steel Cross-Sections
      Structural Design for Solar Systems

      Dlubal Software helps you create and verify any solar mounting system. Work efficiently with steel, aluminum, and concrete structures in a single environment.

      Explore Tools
      Solar Structures Solar Structures | Mobile Version
      Dlubal API

      The new Dlubal API service (gRPC) provides you with a flexible interface to the structural analysis software based on Python and C#, with direct access to the entire Dlubal product range.

      Start With API
      Background for the main menu banner API Background for the main menu banner API
    • Icon representing RFEM 6, a finite element analysis software application. RFEM 6 Only Structural Analysis and Design Software You Need for Your Projects

      RFEM 6 serves as the basis of the modular program family and is used to define structures, materials, and actions for plate, wall, shell, and beam structures, as well as for solids and contact elements.

      More Information
      Add-on Switch Icon Add-ons
      • Additional Analyses
      • Dynamic Analysis
      • Special Solutions
      • Design
      • Connections
      RSTAB 9 Icon without borders RSTAB 9 Iconic Frame and Truss Analysis Software

      RSTAB 9 is a powerful analysis and design software for 3D beam, frame, or truss structure calculations, reflecting the current state of the art and helping structural engineers meet requirements in modern civil engineering.

      More Information
      Add-on Switch Icon Add-ons
      • Additional Analysis
      • Dynamic Analysis
      • Special Solutions
      • Design
      RSECTION 1 Icon without borders RSECTION 1 User-Defined Cross-Section Properties

      RSECTION supports structural engineers by determining cross-section properties for a wide variety of cross-sections and allowing for subsequent stress analysis.

      More Information
      RWIND 3 Icon without borders RWIND 3 CFD Software for Digital Wind Tunnels

      RWIND 3 is a digital wind tunnel for simulating wind flows around any building geometry and for the calculation of the wind loads on their surfaces.

      More Information
      API Icon Dlubal API Your Gateway to Parametric Modeling and Automation

      The new Dlubal API service (gRPC) provides you with a flexible interface to the structural analysis software based on Python and C#, with direct access to the entire Dlubal product range. Benefit from seamless and powerful integration into your Dlubal software—ideal for parametric modeling and complex optimization tasks.

      Discover API
      API Documentation API Documentation
      • Index
      • Getting Started
      • Applications
      • Model Objects
      • Subscriptions & Pricing
      • Examples
      FEA for Steel Connections

      Design and analyze steel connections using CBFEM, compliant with EN 1993‑1‑8 and AISC 360, fully integrated in RFEM 6 for faster, more accurate structural workflows.

      Learn More
      Steel Connections Steel Connections
      Geo-Zone Tool

      The Dlubal online service provides zone maps for quick determination of snow loads, wind speeds, and seismic data.

      CHECK LOAD ZONES
      Geo-zone tool visual displaying snow, wind, and seismic maps with illustrations for environmental load assessments. Illustration of snow, wind, and seismic geo-zone maps on a mobile version showing various regions and data.
      Outdated Products
    • Support
      • Frequently Asked Questions (FAQ)
      • Knowledge Base
      • Product Features
      • Licensing
      • Ask Individual Question
      • Our Support Team
      • Submit Program Feature or Idea
      • FAQ for Licensing & Authorization 
      • Report Problem or Program Issue
      • Program Updates
      • Program Issues
      • Formulas | Math is fun!
      Training
      • First Steps with RFEM
      • First Steps with RSTAB
      • Online Training
      • Training at Dlubal
      • Individual Training
      • Videos
      • E-Learning Videos
      • Webinars – Learn Online
      • Online Courses
      Service
      • Free Support / Service
      • Extranet | My Account
      • Project Support
      • Service Contract
      • Geo-Zone Tool for Load Determination
      • Updates & Upgrades
      • Previous Program Versions
      Sales
      • Webshop
      • Our Sales Team
      • Contact Our Sales Team
      • Schedule an online product demo
      • Why Dlubal Software
      AI Support Assistant
      • Mia – Your 24/7 AI Assistant
      • Discover Your Personal AI Assistant
      Free Support & Service

      Need help? Access free support options including 24/7 AI assistance, email support, and webinars.

      Learn More
      Free Support & Service Free Support & Service
      Find Answers Fast

      Find quick answers to common questions about Dlubal Software. Search or filter hundreds of FAQ to solve issues in no time.

      View FAQ
      Frequently Asked Questions (FAQ) FAQ | Mobile Version
    • News
      • Current News
      • New Product Features
      • Subscribe to Newsletter
      • New Programs
      • Dlubal Blog
      Training
      • Online Training
      • Individual Training
      Events
      • Event Overview
      • Trade Fairs and Conferences
      • Webinars
      Master Engineering with Webinars

      Join industry leaders and explore solutions in structural engineering and software. Enhance your skills with our live sessions!

      See Next Webinars
      3D FEA Software RFEM 6 | First Steps Menu Banner Image | News Webinars | Mobile Version
      Unlock the Power of Innovation

      Discover cutting-edge tools and enhancements designed to boost your engineering workflow.

      Explore New Features
      Explore New Features Menu Banner Image | News_ProductFeatures | Mobile Version
    • Download Full Version

      Would you like to try out the capabilities of the Dlubal Software programs? You have the opportunity to do so! With the free 90-day full version you can thoroughly test all our programs.

      Start Trial Version Now
      Dlubal Free Zone

      In the Dlubal free zone, you can access webinars, articles, and software trial versions—all free of charge and conveniently located in one place.

      More Information
      Examples
      • Structural Analysis Models to Download
      • Submit Structural Analysis Model
      • Introductory Examples and Tutorials
      • Verification Examples
      • Image Overview
      Documents
      • Online Manuals
      • Manuals
      • Leaflets, Brochures, and Certificates
      References
      • Customer Projects
      • Why Submit Your Customer Project?
      • How to Submit Customer Project?
      • Submit Customer Project
      Free Models to Download

      Explore thousands of ready-to-use structural models. Download, adapt, and use them as templates to accelerate your design process.

      Discover Models
      Structural Analysis Models to Download Free Models to Download | Mobile Version
      Dlubal Free Zone

      Get expert help whenever you need it. Enjoy free AI assistance, email support, live webinars, and premium services for Service Contract Pro users.

      Get Support
      Free Support & Service Free Support & Service | Mobile Version
    • E-Learning
      • RFEM 6 for Beginners
      • RFEM 6 for Students
      • Programming with RFEM 6 and Python
      • RFEM 6 with Rhino & Grasshopper
      • RFEM 5 for Beginners
      • Modeling with RFEM 5
      • Structural Analysis Learning Videos for Students
      • Quick Tutorials for Dlubal Programs
      • Best Tips and Tricks in RFEM
      • Dlubal Online Training Recordings
      • Recorded Dlubal Webinars
      Students and Schools
      • Free Structural Analysis Software for Students
      • Request or Renew Free Student License
      • Request for Free Instructor License
      • Submit Thesis
      • Why Submit Your Thesis?
      • Graduation Theses with Dlubal Structural Analysis Software
      • Free Structural Analysis Software for Educational Institutions
      • Request School Package
      • Free Introductory Training at Your University
      • Request Training Date
      Knowledge Platform
      • First Steps with RFEM
      • Videos
      • Online Manuals
      • Structural Analysis Wiki
      • Knowledge Base
      • Frequently Asked Questions (FAQ)
      Infotainment
      • Podcast
      • Dlubal Blog
      • Introduction to Structural Analysis and Design
      First Steps with RFEM 6

      Take your first steps with RFEM 6 and discover how quickly you can model and calculate. Customize with add-ons for even more possibilities.

      Get Started
      3D FEA Software RFEM 6 | First Steps Menu Banner Image | News Webinars | Mobile Version
      Free Structural Analysis Software for Students

      Thousands of students worldwide already benefit from Dlubal Software. Enjoy free access, training, and expert support throughout your studies.

      Get Free License
      Free Structural Analysis Software for Students Free Structural Analysis Software for Students
    • About Us
      • History and Facts
      • Company Philosophy
      • Why Dlubal Software?
      • Product Comparison
      • Quality Policy
      • Our Team
      Contact
      • Dlubal Locations Worldwide
      • Authorized Dlubal Resellers
      References
      • Customer Reviews
      • Customer Projects
      • Case Studies
      • Why submit your customer project?
      • Verification Examples
      • Your Review
      • Participation in Research Projects
      Our Customers

      We present our customers who realize their projects with Dlubal Software. Learn how our customers worldwide implement innovative solutions in construction and engineering using advanced tools for structural analysis and dynamic analysis.

      View Our Customers
      Building Success Together

      Discover how leading engineers around the world trust our solutions to elevate their projects with us.

      See Our Customers
      See Our Customers Menu Banner Image | Company_OurCustomers_Mobile
      Meet the Experts

      Our dedicated engineers are here to assist you with modeling, design, and technical challenges—anytime, anywhere.

      Connect with Support
      Our Team Menu Banner Image | Company_OurTeam | Mobile Version
    • Career
      • Jobs
      • Teams
      • Colleague Blog
      • Insights
      Jobs
      • All Open Positions
      • Product Development
      • Customer Support
      • Sales
      • Marketing
      • Software Development
      • Administration
      • Interns
      • Others
      Teams
      • Product Development
      • Customer Service
      • Sales
      • Marketing
      • Software Development
      • Administration
      Why Dlubal?
      • Company Culture
      • Employee Benefits
      Build Your Future with Us

      Reveal how our team shapes the future of engineering. Experience innovation, growth, and exciting challenges.

      Your Career Opportunities
      Career at Dlubal Menu Banner Image | Career at Dlubal Mobile
      Find Your Dream Job

      Join a global leader in engineering software and take your career to new heights.

      Explore Open Positions
      All Open Positions Menu Banner Image | Open Positions Mobile
    • Webshop
    Main Products
    Icon representing RFEM 6, a finite element analysis software application.
    RFEM 6
    RSTAB 9 Icon without borders
    RSTAB 9
    RWIND 3 Icon without borders
    RWIND 3
    RSECTION 1 Icon without borders
    RSECTION
    Online Services
    Geo-Zone Tool icon
    Geo-Zone Tool
    Cross-section Properties
    Cross-Section Properties
    API Icon
    API
    Cloud Calculation Icon
    Cloud Calculation
    Downloadable Models
    Downloadable Models
    Dlubal Community Icon
    Dlubal Community
    Knowledge Base Articles Icon
    Knowledge Base
    Online Webinars
    Webinars
    Sign in to your account

    Sign up for the Dlubal Extranet to get most of the software and have exclusive access to your personal data.

    Login Create Account
    90-Day Free Trial
    Sign in to your account

    Sign up for the Dlubal Extranet to get most of the software and have exclusive access to your personal data.

    Login Create Account
    • Products
    • Structural Frame & Truss Analysis
    • Add-ons for RSTAB 9
    • Design
    • Concrete Design for RSTAB 9
    • Concrete Design for RSTAB 9 | Features
    RSTAB 9 Icon | Dlubal Software Concrete Design
    Online Manuals
    • Manual | Concrete Design
    • RFEM 6/RSTAB 9 | First Steps
    }
    HeiligA | Contact Box Image
    How may I help you?

    Do you have any questions about Dlubal products or need assistance in selecting the right one for your project?

    I'm here to help. You can easily reach me through the contact options provided below.

    Looking forward to hearing from you!

    Amy Heilig, PE
    CEO – USA Subsidiary | Sales Engineer

    Working hours are from 9:00 AM to 3:00 PM Philadelphia time (EST)

    +1 267 702 2815
    [email protected]
    Ask Individual Question
    • Mia – Your AI Expert
    • Frequently Asked Questions (FAQ)
    • Why Dlubal Software?
    calculator icon
    Pricing
    Concrete Design for RSTAB 9 | Features

    Concrete Design for RSTAB 9 | Features

    The Concrete Design add-on offers a wide range of features for designing reinforced concrete members. We have provided a more detailed description of selected features here.

    Banner | Concrete Design for RSTAB 9 | Members and Surfaces
    Subnavigation
    01
    Members
    02
    Columns
    03
    Deformation
    04
    Standards
    05
    Features

    Powerful Features in Concrete Design Add-on

    The Concrete Design add-on has numerous helpful features that support you in structural and dynamic analysis.

    Intuitive Design of Concrete Structures

    Design and verify reinforced concrete structures – including deformation analysis, bending design, and cross-section stresses.

    • Graphical Display of Cross-Section Stresses

      The Concrete Design add-on allows you to display the stresses and strains of a concrete cross-section and reinforcement as either a 3D stress image or a 2D graphic. Depending on the selected results in the design details, the stresses or strains are shown in the defined longitudinal reinforcement under load actions or limit internal forces.

    • 3D My-Mz-N Interaction Diagram

      The Concrete Design add-on offers a 3D My-Mz-N interaction diagram for reinforced concrete cross-sections, helping visualize the ultimate limit state. You can easily check whether the limit resistance is exceeded and customize the diagram's appearance to suit your needs.

    • Punching Shear Reinforcement

      In the Concrete Design add-on, you have the option to define an existing vertically oriented punching shear reinforcement. They can consist of stirrups or headed studs. The punching reinforcement is then taken into account in the punching shear design.

      Go to Explanatory Video

    • Deformation Analyses

      The Concrete Design add-on provides deformation analyses for reinforced concrete surfaces, including cracked ones (state II), using methods like ACI 318-19 and EN 1992-1-1. It accounts for tension stiffening between cracks and can include creep and shrinkage. The results are displayed graphically and numerically, with full integration into the RFEM printout report.

    Visual representation of stress and strain in concrete cross-section with reinforcement under load conditions.
    3D interaction diagram displaying the ultimate load-bearing capacity of reinforced concrete cross-sections with moments and axial force.
    View of vertical punching shear reinforcement setup in concrete design add-on ensuring safety against structural failures.
    Graphical display of concrete member reinforcement and deformations for structural analysis.
    Customer Reviews Icon

    Check out What Our Customers Say About Dlubal Products!

    Support Icon

    Experience Dlubal Live: Schedule Your Online Product Demo Today!

    Download Icon

    Try Full Version 90 Days for Free

    Recommended Features and Services

    White vector icon used to represent a community symbol on a dark background.

    Dlubal Community

    Join a vibrant community of engineers and designers. Ask questions, share ideas, suggest features, and connect with others facing similar challenges.

    Icon symbolizing application programming interface, designed with white graphics suitable for dark backgrounds.

    API

    Use the Dlubal API to automate processes, integrate with external tools, and build custom workflows tailored to your specific project needs.

    White icon of a learning platform on a dark background, suitable for Dlubal training content.

    Learning & Knowledge Base

    Start quickly with step-by-step video tutorials and helpful guides. Find answers, tips, and learning content for all experience levels.

    White cloud computing icon designed for use on a dark background.

    Cloud Calculations

    Run your analyses in the cloud – without hardware limits. Save local resources, process complex models, and work anywhere, any time.

    Detailed Documentation of Design Checks

    Concrete design is clear and structured, with all relevant design checks displayed according to the design standard. For each design, it is necessary to define specific utilization criteria. In addition to the classic ultimate and serviceability design checks, the program also takes into account the structural requirements of the standard.

    Each design contains detailed design information that presents the input values, intermediate results, and final results in a clear way. An additional overview in the info window shows the complete calculation process, including the formulas used, standard sources, and the corresponding results.

    More Information
    Detailed display of concrete design with design checks, input data and results, ultimate and serviceability design checks.
    Clear display of design check details with input values, intermediate results, and final results for concrete design.

    Design of RSECTION Cross-Sections

    In the Concrete Design add-on, you can design any RSECTION cross-sections. You define the concrete cover, shear force, and longitudinal reinforcement directly in RSECTION.

    After importing the reinforced RSECTION cross-section into RFEM 6 or RSTAB 9, you can use it for the design in the Concrete Design add-on. All necessary concrete design checks are performed.

    More Information
    Reinforced concrete cross-section visualization in RSECTION with details of concrete cover as well as shear and longitudinal reinforcement settings.

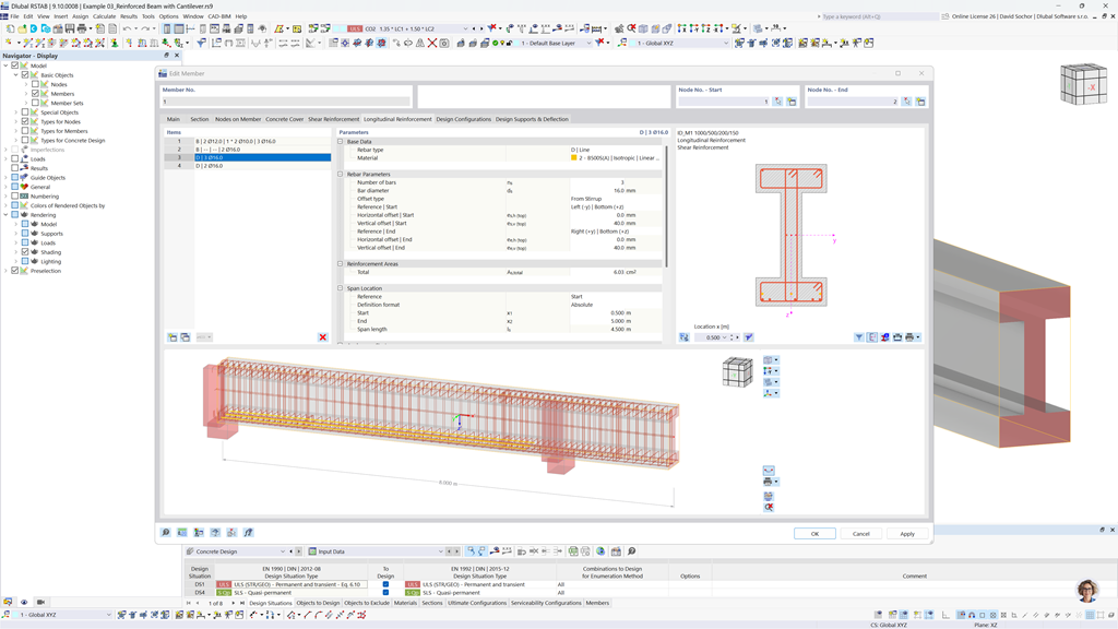
    Definition of Member Reinforcement

    You can specify the shear and longitudinal reinforcement individually for each member. In this case, there are various templates available for entering the reinforcement.

    For similar rebars, you can define which reinforcement types and descriptions should be displayed, with the positions numbered consecutively. The reinforcement layout is visualized both in the section and in a 3D view, where you can easily inspect the arrangement and check the exact coordinates of each rebar relative to the centroid of the cross-section.

    More Information
    Cross-section and 3D view display rebar layout for individual elements.

    Automatic Function of Longitudinal Reinforcement for Members

    When designing reinforced concrete members, you can optionally determine the number of members or the rebar diameter automatically.

    In this example, we enter the number of members, and the program determines the rebar diameters. You can specify the minimum and maximum diameters. Diameter 12 was automatically determined at the top and Diameter 18 at the bottom.

    Go to Explanation Video
    Illustration showcasing automatic calculation of bar diameters for reinforced concrete beams based on defined bar count, displaying diameters of 12 and 18.

    What other features would you expect?

    The Concrete Design add-on is constantly being developed and expanded with new features. Discover what else it can provide and take your projects to a new level!

    Feature 002280 | Graphical display of the time-dependent properties of concrete; for example, creep and shrinkage, in an input dialog box.

    Considering Creep and Shrinkage

    Time-dependent concrete properties, such as creep and shrinkage, can be defined for the material in the structural analysis program. The input dialog box shows the distribution over time graphically, and the concrete age can be easily modified, for example, by temperature treatment.

    Display of linear elastic and cracked deformation of reinforced concrete sections with focus on State I and II

    Determination of Deformation in Cracked State

    Determine the deformation for members and surfaces by considering the cracked (state II) or uncracked (state I) reinforced concrete cross-section. When determining the stiffness, you can consider the tension stiffening between the cracks according to the design standard used.

    Fiber-reinforced concrete design using DAfStb guidelines and EN 1992-1-1.

    Fiber-Reinforced Concrete Design

    In the Concrete Design add-on, you can design structural components made of fiber-reinforced concrete according to the “DAfStb Steel Fiber Concrete” guideline. This option is available for design according to EN 1992-1-1. The design according to the DAfStb guideline is performed once you assign concrete of the “fiber concrete” type to a reinforced structural component.

    Discover All Features of Concrete Design Add-on

    The Concrete Design add-on has numerous useful features that support you in structural and dynamic analysis.

    See what’s Inside

    Webshop

    Customize your individual program package and find out all the prices online!

    • RFEM 6 Family
    • RSTAB 9 Family
    Go to the webshop

    Calculate Your Price

    3,300.00 USD
    +110.00 USD
    Rendering Reinforcement Bars
    Total Amount 3,410.00 USD
    Structural Analysis and Design Software
    Dlubal Software, Inc.

    30 South 15th Street, 15th Floor
    PA 19103 Philadelphia
    United States

    +1 (267) 702-2815 [email protected]
    Dlubal Software GmbH

    Am Zellweg 2
    93464 Tiefenbach
    Germany

    +49 9673 9203-0 [email protected]
    Solutions
    • Reinforced Concrete Structures
    • Steel Structures
    • Wood & Mass Timber Structures
    • Steel Joints
    Products
    • RFEM 6
    • RSTAB 9
    • RSECTION 1
    • RWIND 3
    Support
    • Frequently Asked Questions (FAQ)
    • Ask Individual Question
    • Snow Load, Wind Speed, and Seismic Load Maps
    • Contact Our Sales Team
    News
    • Subscribe to Newsletter
    • Current News
    • Event Overview
    • Online Training
    Resources
    • Free Full Trial Version
    • Submit Customer Project
    • Customer Projects
    • Online Manuals
    Join Dlubal
    Dlubal Community YouTube Facebook LinkedIn Twitter Instagram Pinterest TikTok
    © 2001-2026 Dlubal Software GmbH | All Rights Reserved
    Legal Notice
    About Us
    Sitemap
    Language
    • Deutsch
    • English
    • Français
    • Español
    • Português
    • Italiano
    • Česky
    • Polski
    • Pусский
    • 中文(简体)