1459x
004921
2021-01-26

Deactivating Inertia Ellipse and Area Bisecting Axes in Cross-Section

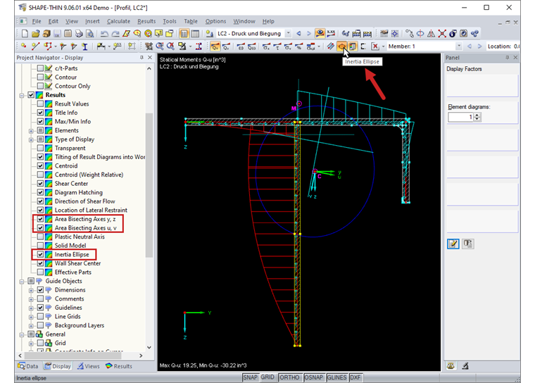
After calculating the cross-section data, an ellipse is displayed in the cross-section. In addition, wide lines above the x- and y-axis can be seen next to the coordinate system. Which displays are we talking about here? How can I deactivate it?


Answer:

The ellipse is the inertia ellipse, which is used to display the radius of gyration. This can be deactivated or activated as shown in Image 01.

Both additional lines are used to display the area bisection axes for y and z, as well as for the principal axes u and v. These bisectors can also be deactivated in the Display navigator (see Image 01).


Author

Thomas handles technical inquiries about the software in Customer Support. He reliably familiarizes himself with various topics and develops appropriate solutions.

Links


;