1675x
005311
2022-09-15

Cross-Section Parameter Modifications

How can I edit the parameters of an existing cross-section in the RFEM 6 / RSTAB 9 library?


Answer:

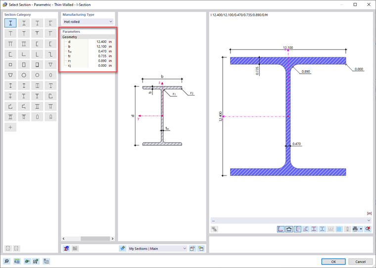
It's possible to select an existing cross-section from the program library and edit the parameters with the "convert into parametric section" option.

This will prompt the section dialog box to directly input the modified dimensions.

It's further possible to use this member in the model for the static analysis as well as design according to the various standards in the design add-ons.


Author

Amy Heilig is the CEO of the USA Subsidiary and responsible for sales and continued program development for the North American market.



;