1994x
003432
27.7.2021

Zobrazení vzpěru zkroucením v programech RFEM a RSTAB: Výběr referenčních os

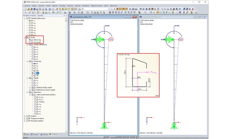
Jak mohu zobrazit vnitřní síly v globálním souřadném systému a ne v hlavním souřadném systému průřezu?


Odpověď:

RFEM a RSTAB mají dvě osy pro asymetrické, otevřené a běžné průřezy. Po výpočtu se zobrazí výsledky pro hlavní osy. Pro zobrazení vektorů lze ovšem zadat libovolný hlavní souřadný systém. Stačí v navigátoru projektu - Výsledky vybrat jednu z obou možností "Hlavní osy" nebo "Osy prutu".


Autor

Cosme Asseya je jednatelem pobočky společnosti Dlubal Software v Paříži. Je odpovědný za koordinaci aktivit souvisejících s prodejem, marketingem a technickou podporou pro francouzsky mluvící země.



;