1554x
000645
24.2.2021

Skupiny oblíbených v databázi průřezů

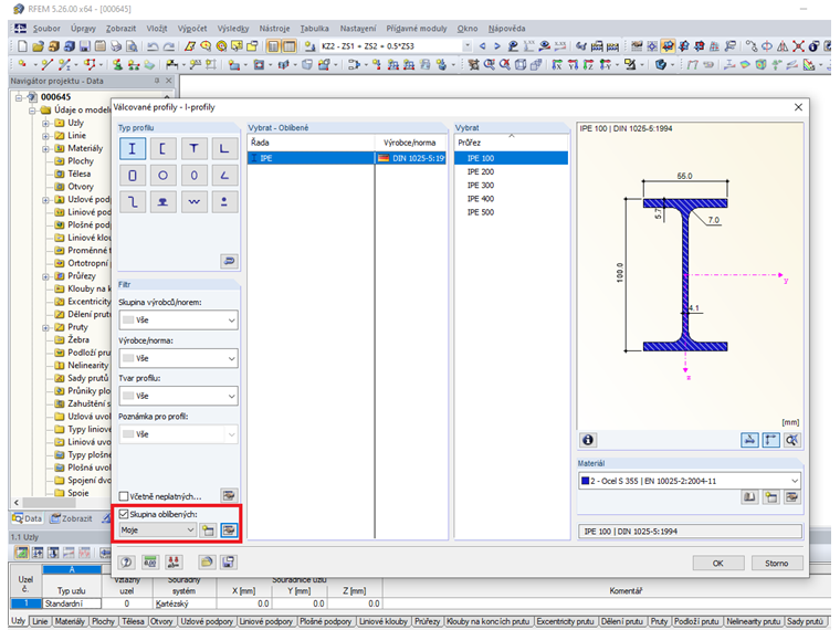
Databáze průřezů v programech RFEM 5 a RSTAB 8 nabízí možnost ukládat vybrané průřezy do různých skupin oblíbených průřezů.

Vybráním těchto oblíbených skupin v databázi průřezů lze zobrazit pouze průřezy uložené ve skupině.

Tyto seznamy průřezů lze dále použít pro optimalizaci v návrhových modulech. Návrhové moduly pak vyzkouší pro vybrané pruty všechny průřezy z přiřazené skupiny oblíbených a vyberou průřez s nejlepším možným využitím.

Vzhledem k tomu, že někteří uživatelé pracují pouze s určitými katalogy profilů, mají skupiny oblíbených rozhraní pro výměnu dat.

Lze tak hromadně připravit seznam pro skupinu uživatelů a sdílet jej mezi sebou ve formátu *.fav.


Autor

Andreas odpovídá za vývoj RSTAB, RFEM a RWIND Simulation a také za oblast membránových konstrukcí. Kromě toho koordinuje procesy zajišťování kvality a podporuje při technických dotazech v zákaznické podpoře.

Odkazy


;