129x
001967
23.4.2026

Stočená výšková budova za zatížení větrem a zemětřesením s 2D reprezentací podloží

Tento odborný článek popisuje modelování výškové budovy se zkroucenou konstrukcí s ohledem na zatížení větrem z větrné simulace. Ukládání probíhá podle metody pevnostního modulu, přičemž příslušná základová masivní konstrukce má nakloněné vrstevnaté podloží. Dále je popsána simulace zatížení zemětřesením pomocí metody odezvového spektra se z tohoto spojení vyplývajícími předpoklady, respektive zjednodušeními.

Úvod

Následující text představuje možnosti simulace vzájemného působení větru, zemětřesení a interakce stavby s podložím na příkladu mrakodrapu.

Popis modelu

V tomto odborném článku je zkoumán fiktivní 20patrový mrakodrap se spirálovitou konstrukcí. Stropní desky, sloupy a jádro pro vyztužení jsou vyrobeny z železobetonu. Vnější plochy jsou pokryty sklem. Podloží s nerovnoměrným zvrstvením je zohledněno prostřednictvím vrtů. Toto podloží je od povrchu tvořeno pískem, štěrky a zvětralými horninami na dolní straně zkoumaného výřezu terénu.
Zatížení zahrnovalo vlastní tíhu, užitná zatížení na podlahách 2 kN/m², zatížení větrem v jednom směru z RWIND 3 a zatížení zemětřesením z metody odpovědních spekter.
Model je k dispozici ke stažení na následujícím odkazu.

Interakce podloží a stavby

Podloží je v tomto příkladu simulováno metodou tuhostního modulu. Ze tří zadaných vrtů se na každém prvku základové desky vypočítá tuhost odpovídající reakci podloží na aplikované Napětí na základě.
Zde se vliv zvoleného zohlednění podloží projevuje nejprve na velikosti souboru, a tedy i na výkonu. Největší podíl má výpočet podloží pomocí dvojrozměrného modelu oproti výpočtu jako 3D objemového tělesa. Zohlednění zvrstvení přímo z vrtů, bez generování objemových těles, rovněž snižuje požadavky na paměť modelu a zlepšuje výkon.
Další informace o zadání a dostupných možnostech jsou k dispozici v online manuálu na následujícím odkazu:

Na následujícím obrázku jsou porovnány poklesy pod vlastní tíhou (nahoře) s těmi z charakteristické kombinace zatížení s užitným zatížením (uprostřed) a doprovodným vlivem větru (dole). Je zde vidět, jak se vytváří silnější pokles pod železobetonovým jádrem budovy, který se rozpouští směrem k okraji základové desky. Ve srovnání poklesů vyplývajících z kombinace s větrem (dole) se sedimentací bez něj (uprostřed) vede zatížení větrem ve směru pozitivní x-osi očekávaně k menšímu poklesu na levé a k většímu poklesu na pravé straně.

Při porovnání koeficientů elastické podpory se zase ukazuje, že obě charakteristické kombinace zatížení se neliší. To je způsobeno tím, že byly automaticky importovány z pomocníka pro kombinace z příslušné kvazipermanentní návrhové kombinace. To nejen šetří čas, ale mělo by také lépe odpovídat pomalé reakci podložky. Další informace o převzetí elastické podpory jsou k dispozici na následujícím odkazu na manuál.


Simulace větru

Následující animace ukazuje výsledky simulace větru z RWIND. Jak je zde vidět, struktura je obtékána ve směru osy X.

Torzní zatížení větrem vyplývající z točité konstrukce vede také k zatočení mrakodrapu kolem své svislé osy. Toto je ukázáno na následujícím obrázku pomocí charakteristické kombinace zatížení s vedoucím zatížením větrem (nahoře v izometrickém pohledu a dole v půdorysu).

Zemětřesení

Vzhledem k tomu, že modální analýza jako základ pro návrh na zemětřesení pomocí odpovědních spekter nevnáší do úvahy nelinearity, je v případě, který je zde zkoumán, třeba klást zvýšenou pozornost na stanovenou podporu. Podloží většinou nedokáže přenést tahové síly. To platí zejména pro ploché základy, které jsou zde plánovány. Toto chování je rovněž znázorněno metodou tuhostního modulu. Výsledky modální analýzy jsou například ukázány na následujícím obrázku pro první vlastní mód.

Existují různé přístupy pro zjednodušený návrh na zemětřesení. Německý národní příloha k Eurokódu 8 například odkazuje na porovnání poměru zatížení větrem a zatížení zemětřesením. Pokud je zatížení větrem více než 1,5krát vyšší než zatížení zemětřesením, lze upustit od zvláštního přístupu. V tomto příkladu lze toto určit ze součtu podpěrných reakcí charakteristické kombinace zatížení 9 (vlastní tíha a vítr v X) a z akcelerace první vlastní formy odvozené z odpovědního spektra ve směru X. Zde je však výsledný poměr vyšší, jak ukazuje následující rovnice. Přístup k této limitní hodnotě pro 70m vysoký mrakodrap by však byl v každém případě pochybný.

ASCE 7 poskytuje dobrý referenční bod pro přípustné základní vlastní období. Podle vzorce 12.8-8 pro tento příklad vyplývá přípustné vlastní období 2,13 s. Jelikož však první vlastní období určené modální analýzou činí 2,24 s, nelze ani zde provést zjednodušený důkaz.

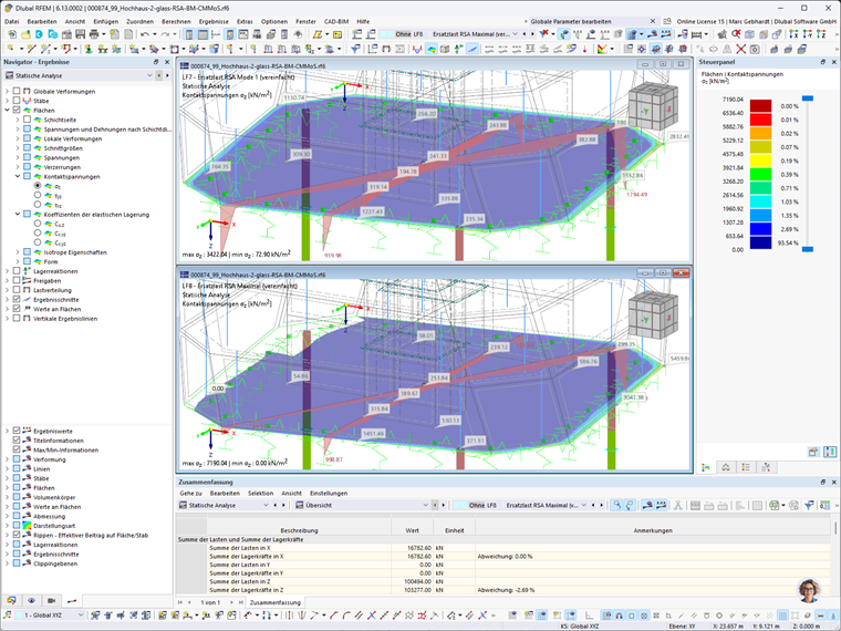
Nicméně, zde byl zvažován případ zatížení, který zjednodušeně aplikuje horizontální akceleraci první vlastní formy zjednodušeně jako faktor k zemské akceleraci v každém hmotovém bodě. Dále se počítá hodnota náhorní plošiny 1,67 m/s². Správnější by bylo přistoupit podle vlastní formy, spíše než rovnoměrně v každém hmotovém bodě. Přesto tato úvaha jednoduše umožňuje zkontrolovat výsledné napětí na základě a vyloučit štěpení. Nastavení zatížení a výsledné kontaktní napětí jsou ukázány na následujících obrázcích.


Jak je zde vidět, při aplikaci plateau akcelerace dochází ke štěpení pouze na základové desce. V tomto případě by tedy plošná podpora při zatížení vlastní tíhou a horizontálním zemětřesením selhala.


Autor

Marc působí v Product Engineering se zaměřením na geotechniku a navíc podporuje i Customer Support. Své odborné znalosti cíleně uplatňuje při řešení složitých otázek.

Odkazy


;